Продается 3-комн. квартира, 78.3 м²
Россия, Санкт-Петербург, Пушкинский район, посёлок Шушары, Соколиная улица, 5
Шушары
13 мин.
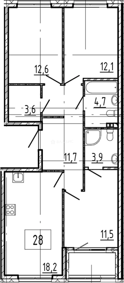
78.3 м²
Общая площадь
36.2 м²
Жилая площадь
18.2 м²
Площадь кухни
1 из 4
Этаж
Описание
В проекте предусмотрено множество планировочных решений — от студий до 3х-комнатных квартир с мастер-спальнями, гардеробными, мансардами и террасами. Высота потолков — до 5,73 метров. Сдаются они без отделки. Для части квартир предоставляется возможность дозаказа чистовой отделки.
Территория комплекса закрытая. Проект предусматривает игровые места для детей, участки для отдыха, пешеходные дорожки и озеленение участка разнообразными растительными посадками. Для автомобилистов имеется парковка на 96 мест, включая места для зарядки электромобилей.
ЖК расположен в Пушкинском райне. В шаровой доступности имеется все необходимое — продовольственные магазины, медицинские учреждения, детские сады и школы, рестораны и кафе.
О квартире
Общая площадь
78.3 м²
Жилая площадь
36.2 м²
Площадь кухни
18.2 м²
Площадь комнат
12.6+12.1+11.5 м²
Высота потолков
3.9 м
Этаж
1
Окна выходят
На улицу
О доме
Год постройки
2025
Этажность
4
Материал постройки
Монолитный
Материал перекрытий
Монолитные
Отопление
Своя котельная
Расположение
Россия, Санкт-Петербург, Пушкинский район, посёлок Шушары, Соколиная улица, 5
Шушары
13 мин.
Купчино
14 мин.
Звёздная
14 мин.
Дунайская
16 мин.
Московская
17 мин.
Рыбацкое
18 мин.
Проспект Славы
19 мин.
Проспект Ветеранов
19 мин.
Ипотечный калькулятор
Заполните 1 анкету — получите предложения от десятков банков на специальных условиях
Программа ипотеки
Стоимость жилья, ₽
Первый взнос, ₽
Срок кредита
от 5.75%
Ставка
от 137 213 ₽
Платеж в месяц
Расчёт носит информационный характер и не является публичной офертой
Похожие объекты






4-комн. квартира, 74,6 м², 3/4 эт.
Купчино
12 мин.








4-комн. квартира, 74,6 м², 3/4 эт.
Купчино
12 мин.








3-комн. квартира, 71,1 м², 4/4 эт.
Купчино
12 мин.








4-комн. квартира, 73,8 м², 3/4 эт.
Купчино
12 мин.
Консультант по новостройкам
21 810 629 ₽
278 553 ₽/м²








