Продается 2-комн. квартира, 48.2 м²
Россия, Санкт-Петербург, Планерная улица, 99
Комендантский проспект
7 мин.
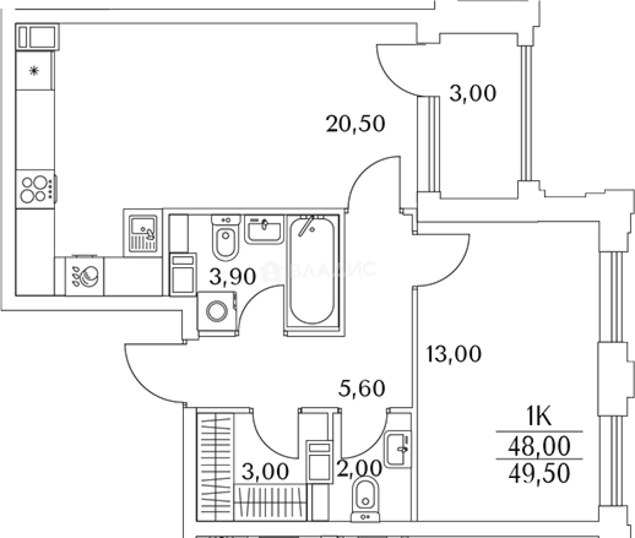
48.2 м²
Общая площадь
13 м²
Жилая площадь
20.5 м²
Площадь кухни
3 из 13
Этаж
Описание
В комплексе предложено множество планировочных решений: в наличии квартиры, как классического типа, так и европланировки. Квартиры имеют несколько вариантов отделки.
Территория комплекса благоустроена, на ней выполнено озеленение. Во дворах спроектированы детские и спортивные площадки для разного возраста, установлены скамейки для отдыха. По периметру комплекса и в местах общего пользования ведется круглосуточное видеонаблюдение. На первых этажах расположились коммерческие помещения. Для владельцев автомобилей предусмотрены подземный и наземный паркинги.
Жилой комплекс расположен в Приморском районе. В пешей доступности находится Юнтоловский лесопарк. Метро «Комендантский проспект» – в 25 минутах транспортом.
О квартире
Общая площадь
48.2 м²
Жилая площадь
13 м²
Площадь кухни
20.5 м²
Площадь комнат
13 м²
Высота потолков
2.74 м
Этаж
3
Окна выходят
На улицу
О доме
Год постройки
2025
Этажность
13
Материал постройки
Монолитный
Материал перекрытий
Монолитные
Отопление
Центральное
Расположение
Россия, Санкт-Петербург, Планерная улица, 99
Комендантский проспект
7 мин.
Беговая
8 мин.
Старая Деревня
9 мин.
Пионерская
10 мин.
Зенит
11 мин.
Удельная
11 мин.
Озерки
11 мин.
Проспект Просвещения
12 мин.
Ипотечный калькулятор
Заполните 1 анкету — получите предложения от десятков банков на специальных условиях
Программа ипотеки
Стоимость жилья, ₽
Первый взнос, ₽
Срок кредита
от 5.75%
Ставка
от 74 022 ₽
Платеж в месяц
Расчёт носит информационный характер и не является публичной офертой
Похожие объекты







2-комн. квартира, 42,2 м², 9/17 эт.
Комендантский проспект
6 мин.







2-комн. квартира, 42,2 м², 13/17 эт.
Комендантский проспект
6 мин.







2-комн. квартира, 42,2 м², 11/17 эт.
Комендантский проспект
6 мин.







2-комн. квартира, 42,2 м², 10/17 эт.
Комендантский проспект
6 мин.
Консультант по новостройкам
11 766 170 ₽
244 112 ₽/м²










