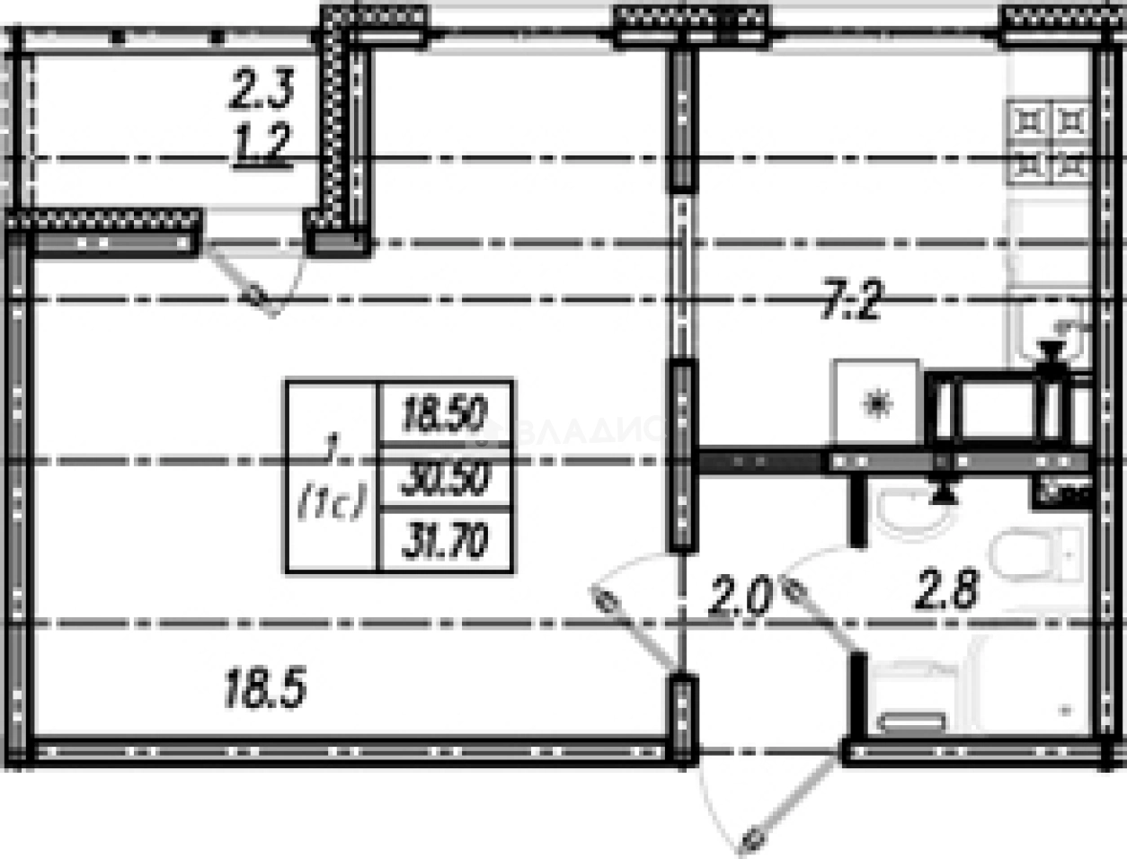
Продается 1-комн. квартира, 30.5 м²
Россия, Санкт-Петербург, Муринская дорога, 2
Академическая
8 мин.
30.5 м²
Общая площадь
18.5 м²
Жилая площадь
7.2 м²
Площадь кухни
9 из 25
Этаж
Описание
В проекте представлены квартиры от студий до пятикомнатных с различными вариантами планировок. В многокомнатных квартирах предусмотрены гардеробные и раздельные санузлы. Они передаются дольщикам с чистовой отделкой, высотой потолков от 2.55 до 2.68 метров и стандартными окнами.
На территории комплекса спроектированы школы и детские сады. На первых этажах оборудованы коммерческие помещения. Во дворах установлены детские и спортивные площадки. Для автовладельцев спроектированы наземный паркинг и гостевые парковки.
В районе развита торговая и социальная инфраструктура, работают государственные и частные детские сады, поликлиника, три стоматологии и ветеринарная клиника. Метро «Гражданский проспект» расположено в 15 минутах транспортом, а метро «Академическая» — в 20 минутах. Жилой комплекс находится на пересечении Муринской дороги и Пискаревского проспекта, которые соединяют проект с центром города. Выезд на развязку КАД расположен в 3 минутах транспортом.
О квартире
Общая площадь
30.5 м²
Жилая площадь
18.5 м²
Площадь кухни
7.2 м²
Площадь комнат
18.5 м²
Высота потолков
2.55 м
Этаж
9
Окна выходят
На улицу
О доме
Год постройки
2026
Этажность
25
Материал постройки
Панельный
Материал перекрытий
Монолитные
Отопление
Центральное
Парковка
Многоуровневая
Расположение
Россия, Санкт-Петербург, Муринская дорога, 2
Академическая
8 мин.
Гражданский проспект
8 мин.
Девяткино
10 мин.
Политехническая
10 мин.
Площадь Мужества
10 мин.
Ладожская
12 мин.
Лесная
12 мин.
Выборгская
12 мин.
Ипотечный калькулятор
Заполните 1 анкету — получите предложения от десятков банков на специальных условиях
Программа ипотеки
Стоимость жилья, ₽
Первый взнос, ₽
Срок кредита
от 5.75%
Ставка
от 34 612 ₽
Платеж в месяц
Расчёт носит информационный характер и не является публичной офертой
Похожие объекты









2-комн. квартира, 31 м², 18/25 эт.
Гражданский проспект
5 мин.









2-комн. квартира, 31,4 м², 19/25 эт.
Гражданский проспект
5 мин.








2-комн. квартира, 33,6 м², 6/25 эт.
Гражданский проспект
5 мин.





2-комн. квартира, 31,9 м², 18/25 эт.
Гражданский проспект
5 мин.
Консультант по новостройкам
5 501 693 ₽
180 384 ₽/м²



















