Продается 2-комн. квартира, 37.3 м²
Россия, Санкт-Петербург, Муринская дорога, 2
Академическая
8 мин.
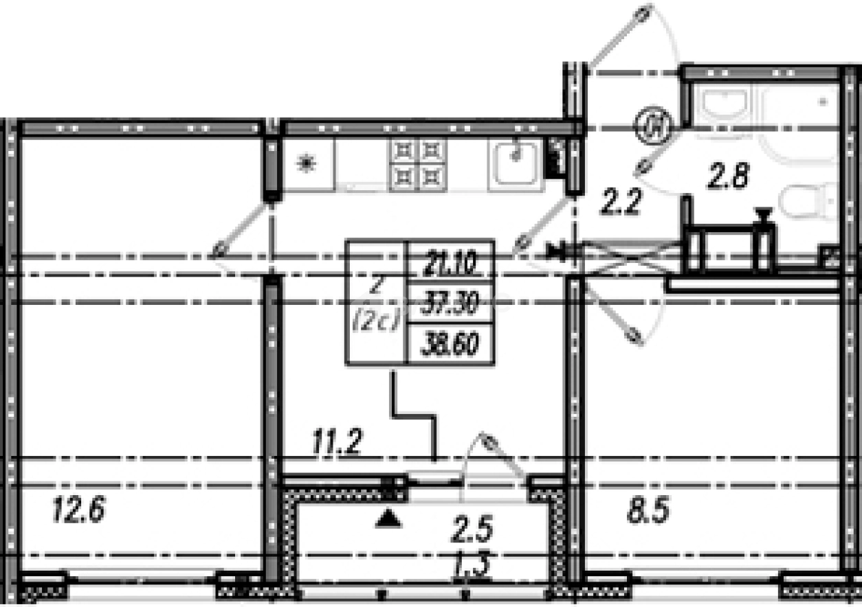
37.3 м²
Общая площадь
21.1 м²
Жилая площадь
11.2 м²
Площадь кухни
14 из 25
Этаж
Описание
В проекте представлены квартиры от студий до пятикомнатных с различными вариантами планировок. В многокомнатных квартирах предусмотрены гардеробные и раздельные санузлы. Они передаются дольщикам с чистовой отделкой, высотой потолков от 2.55 до 2.68 метров и стандартными окнами.
На территории комплекса спроектированы школы и детские сады. На первых этажах оборудованы коммерческие помещения. Во дворах установлены детские и спортивные площадки. Для автовладельцев спроектированы наземный паркинг и гостевые парковки.
В районе развита торговая и социальная инфраструктура, работают государственные и частные детские сады, поликлиника, три стоматологии и ветеринарная клиника. Метро «Гражданский проспект» расположено в 15 минутах транспортом, а метро «Академическая» — в 20 минутах. Жилой комплекс находится на пересечении Муринской дороги и Пискаревского проспекта, которые соединяют проект с центром города. Выезд на развязку КАД расположен в 3 минутах транспортом.
О квартире
Общая площадь
37.3 м²
Жилая площадь
21.1 м²
Площадь кухни
11.2 м²
Площадь комнат
12.6+8.5 м²
Высота потолков
2.55 м
Этаж
14
Окна выходят
На улицу
О доме
Год постройки
2026
Этажность
25
Материал постройки
Панельный
Материал перекрытий
Монолитные
Отопление
Центральное
Парковка
Многоуровневая
Расположение
Россия, Санкт-Петербург, Муринская дорога, 2
Академическая
8 мин.
Гражданский проспект
8 мин.
Девяткино
10 мин.
Политехническая
10 мин.
Площадь Мужества
10 мин.
Ладожская
12 мин.
Лесная
12 мин.
Выборгская
12 мин.
Ипотечный калькулятор
Заполните 1 анкету — получите предложения от десятков банков на специальных условиях
Программа ипотеки
Стоимость жилья, ₽
Первый взнос, ₽
Срок кредита
от 5.75%
Ставка
от 43 071 ₽
Платеж в месяц
Расчёт носит информационный характер и не является публичной офертой
Похожие объекты








2-комн. квартира, 32,5 м², 14/25 эт.
Академическая
6 мин.








2-комн. квартира, 36,1 м², 13/25 эт.
Академическая
6 мин.







1-комн. квартира, 34,7 м², 15/25 эт.
Академическая
6 мин.








2-комн. квартира, 32,5 м², 12/25 эт.
Академическая
6 мин.
Консультант по новостройкам
6 846 327 ₽
183 548 ₽/м²





