Продается 4-комн. квартира, 75.48 м²
Россия, Санкт-Петербург, Пушкинский район, посёлок Шушары, жилой комплекс ЮгТаун
Купчино
14 мин.
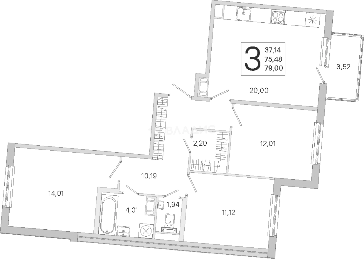
75.48 м²
Общая площадь
37.14 м²
Жилая площадь
20 м²
Площадь кухни
5 из 5
Этаж
Описание
Покупателям предложено множество планировочных решений: в наличии квартиры, как классического типа, так и европланировки. Все квартиры передаются с чистовой отделкой.
В состав комплекса входит 7 детских садов и 3 школы. Во встроенных помещениях расположен государственный медицинский центр, а на первых этажах предусмотрены коммерческие помещения. Дворы закрыты для автомобилей и случайных прохожих. Предусмотрено круглосуточное видеонаблюдение, а за порядком следят сотрудники компании «КВС.Безопасность». На территории проекта спроектирован парк «Олимпийские надежды». По центру расположен павильон в античном стиле и амфитеатр. Неподалеку — зоны отдыха, украшенные фрагментами колонн. Также предусмотрены поля для командных игр, тренажеры и детские площадки.
ЖК возводится в Пушкинском районе, на пересечении Пулковского и Волхонского шоссе. В 10 минутах транспортом находится «Экспофорум», в 15 минутах — аэропорт. Метро «Купчино» — 15 минут транспортом, а до дворцово-парковых ансамблей Пушкина и Павловска — полчаса.
О квартире
Общая площадь
75.48 м²
Жилая площадь
37.14 м²
Площадь кухни
20 м²
Площадь комнат
14.01+11.12+12.01 м²
Высота потолков
2.76 м
Этаж
5
Окна выходят
На улицу
О доме
Год постройки
2027
Этажность
5
Материал постройки
Газобетонный блок
Материал перекрытий
Монолитные
Отопление
Центральное
Парковка
Многоуровневая
Расположение
Россия, Санкт-Петербург, Пушкинский район, посёлок Шушары, жилой комплекс ЮгТаун
Купчино
14 мин.
Звёздная
14 мин.
Шушары
15 мин.
Московская
17 мин.
Дунайская
17 мин.
Проспект Ветеранов
17 мин.
Ленинский проспект
18 мин.
Проспект Славы
19 мин.
Ипотечный калькулятор
Заполните 1 анкету — получите предложения от десятков банков на специальных условиях
Программа ипотеки
Стоимость жилья, ₽
Первый взнос, ₽
Срок кредита
от 5.75%
Ставка
от 107 649 ₽
Платеж в месяц
Расчёт носит информационный характер и не является публичной офертой
Похожие объекты








4-комн. квартира, 64,6 м², 3/4 эт.
Купчино
12 мин.




2-комн. квартира, 64,4 м², 4/4 эт.
Шушары
13 мин.




2-комн. квартира, 65,4 м², 4/4 эт.
Шушары
13 мин.






4-комн. квартира, 64,2 м², 4/4 эт.
Купчино
13 мин.
Консультант по новостройкам
17 111 316 ₽
226 700 ₽/м²











