Продается 2-комн. квартира, 45 м²
Россия, Санкт-Петербург, Гранитная улица, 32
Новочеркасская
13 мин.
45 м²
Общая площадь
27.8 м²
Жилая площадь
6.4 м²
Площадь кухни
5 из 5
Этаж
Описание
Цена и условия
Эта двухкомнатная квартира — отличное предложение по доступной цене. Быстрое оформление сделки и привлекательные условия ипотеки делают покупку удобной и выгодной.
Расположение
Квартира расположена на пятом этаже пятиэтажного панельного дома, построенного в 1960 году. Гранитная улица — это удобное место для жизни, где вы найдёте всё необходимое для комфортной жизни. Близость к общественному транспорту позволит вам быстро добраться до любой точки города.
Инфраструктура
В радиусе 1000 метров от дома находятся магазины, школы, детские сады, аптеки и спортивные клубы. Это идеальное место для семей с детьми, студентов и молодых специалистов.
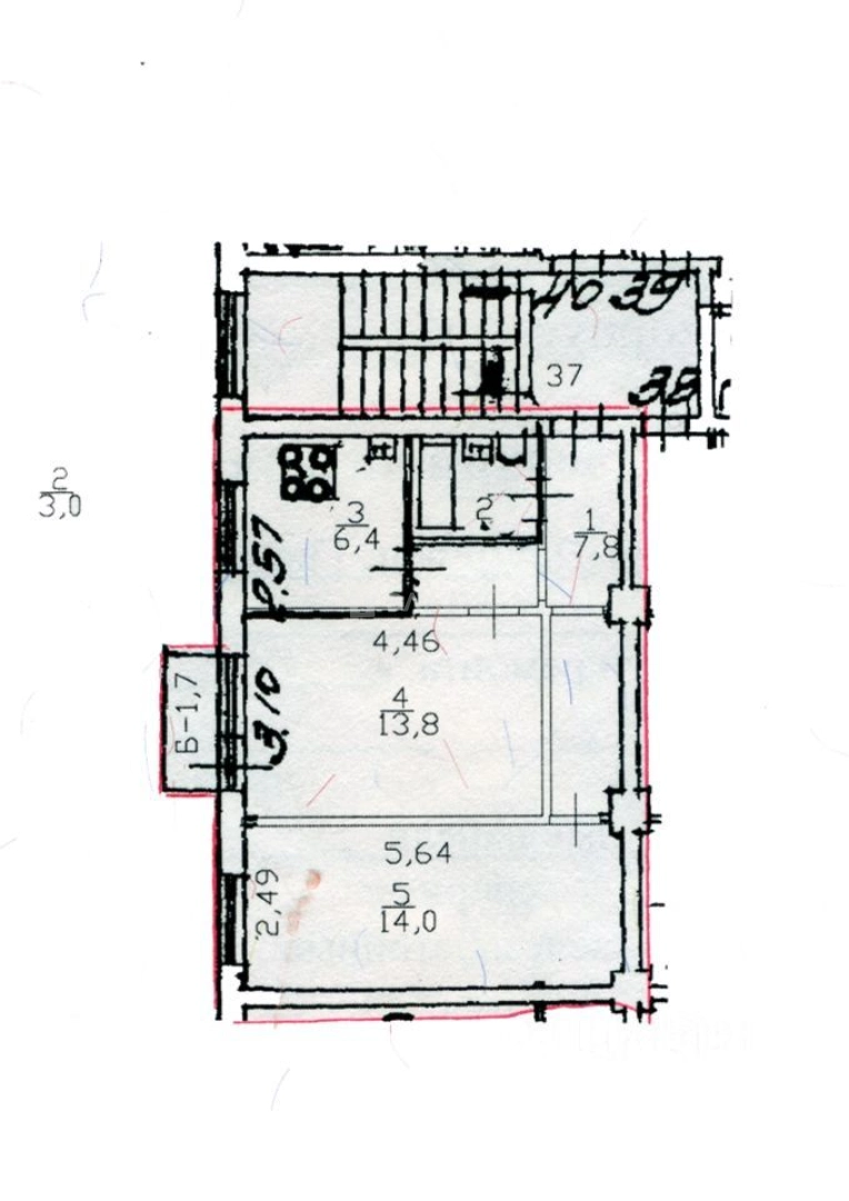
Основные характеристики
- Общая площадь: 45 кв. м
- Жилая площадь: 27,8 кв. м
- Площадь кухни: 6,4 кв. м
- Высота потолков: 2,52 м
- Косметический ремонт
- Совмещённый санузел
Звоните нам прямо сейчас, чтобы узнать больше и записаться на просмотр. Мы гарантируем безопасную сделку и юридическую поддержку нашим клиентам. Поможем одобрить ипотеку с сниженной ставкой.
О квартире
Общая площадь
45 м²
Жилая площадь
27.8 м²
Площадь кухни
6.4 м²
Высота потолков
2.52 м
Этаж
5
Расположение квартиры
не угловая
Окна выходят
На улицу
Совмещенных санузлов
1
Ремонт
Косметический
Комнаты изолированныe
Да
О доме
Год постройки
1960
Этажность
5
Материал постройки
Панельный
Материал перекрытий
Ж/б плиты
Отопление
Центральное
Расположение
Россия, Санкт-Петербург, Гранитная улица, 32
Новочеркасская
13 мин.
Ладожская
17 мин.
Проспект Большевиков
28 мин.
Елизаровская
4 мин.
Улица Дыбенко
5 мин.
Площадь Восстания
5 мин.
Ипотечный калькулятор
Заполните 1 анкету — получите предложения от десятков банков на специальных условиях
Программа ипотеки
Стоимость жилья, ₽
Первый взнос, ₽
Срок кредита
от 5.75%
Ставка
от 49 071 ₽
Платеж в месяц
Расчёт носит информационный характер и не является публичной офертой
Предложите свою цену
7 800 000 ₽
173 333 ₽/м²






























































