Продается 1-комн. квартира, 34.5 м²
Россия, Санкт-Петербург, бульвар Александра Грина, 3
Приморская
29 мин.
34.5 м²
Общая площадь
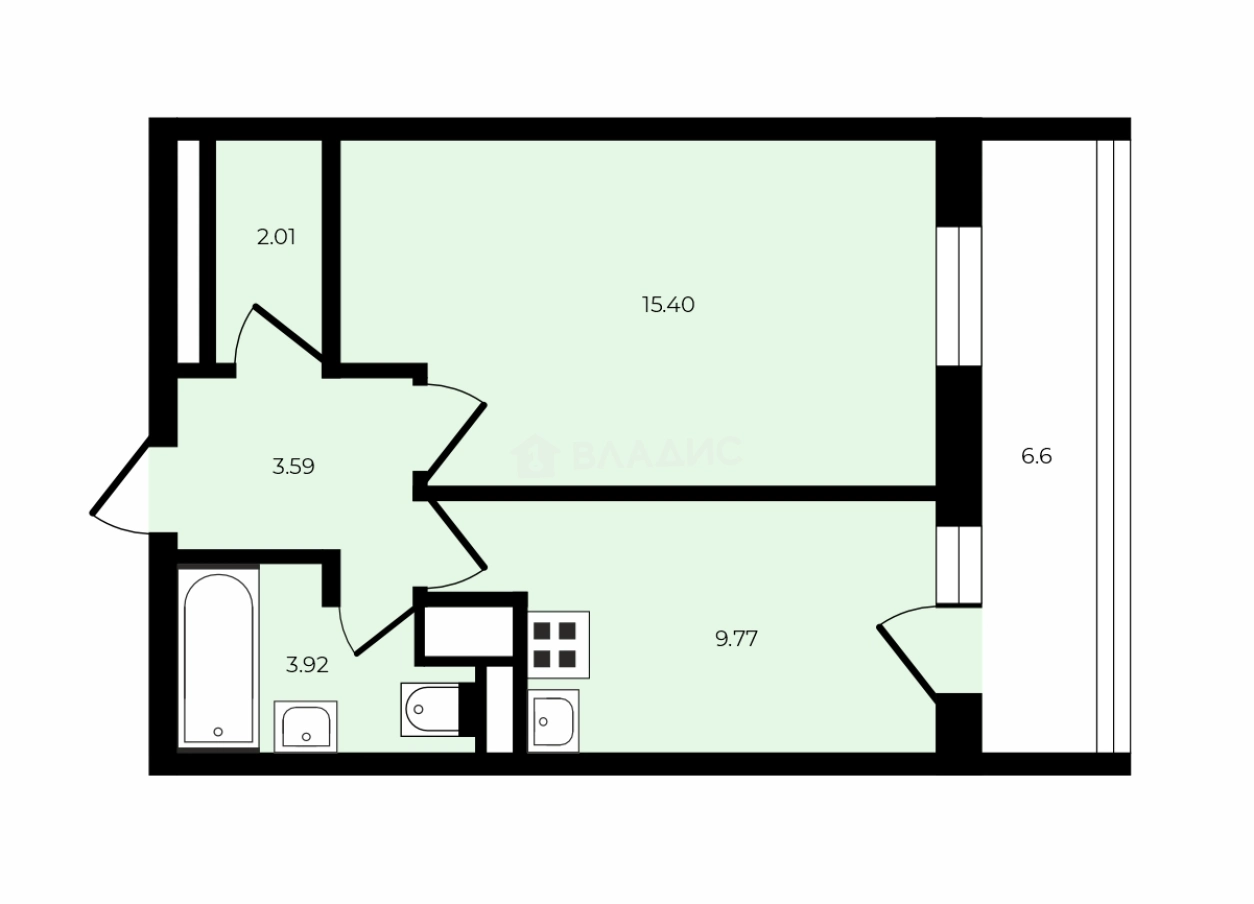
15.4 м²
Жилая площадь
9.77 м²
Площадь кухни
5 из 19
Этаж
Описание
ПРО ДОКУМЕНТЫ
У квартиры 1 СОВЕРШЕННОЛЕТНИЙ собственник, который будет на сделке ЛИЧНО (а не по доверенности).
Полная цена в договоре.
Идеальный вариант для пары или семьи, которая ценит комфорт и уют в отличной локации Санкт-Петербурга!
ОБ АПАРТАМЕНТАХ:
- Cветлые апарты площадью 34.5м2 с окнами на приятный бульвар;
- Просторная кухня 9.77м2. Достаточно пространства, чтобы проводить время с семьей и друзьями;
- На полу ламинат, на стенах обои под покраску, матовые натяжные потолки;
- Большая спальня прямоугольной формы 15.4м2, которую можно прекрасно зонировать;
- Панорамная лоджия 6.6м2 с видом на юг, а также утепленная с инфракрасным полом. Используется как отдельная комната;
- Хорошая прихожая со встроенным гардеробом 2м2, которая вмещает много вещей;
- Вместительный санузел 3.9м2;
О ЖИЛОМ КОМПЛЕКСЕ:
- Большая огороженая территория, которую держат в отличном состояниие. Ежедневно вывозят мусор, каждую весну реставрируют и заливают водой бассейны во дворах, садовники ухаживают за красивыми растениями.;
- Отличная Управляющая компания, которая решает все вопросы хорошо и оперативно по телефону или через приложение;
- Видеонаблюдение по всей территории;
- Множество современных детских площадок, которые можно посещать на всей территории жк.
Инфраструктура идеально подходит для максимально комфортного проживания.
ПРО ИНФРАСТРУКТУРУ
В шаговой доступности:
- Государственный детский сад 37 в 5ти минутах ходьбы;
- Газпром школа с бассейном и Государственная школа 700 в 10ти минутах пешком;
- Детская поликлиника в 20ти минутах пешком, взрослая поликлиника в 10ти минутах на машине;
- Магазины (сетевые и локальные), хорошие рестораны, пункты выдачи заказов;
- Недалеко хороший торговый центр "Шкиперский Молл" с кинозалом и фитнес клубом;
- Cкверы вокруг дома для прогулок с собаками;
- Набережная у Финского залива с прекрасным видом в 5ти минутах пешком;
Удобная транспортная доступность: до Невского проспекта 25 минут на машине, а на транспорте - 45 минут.
Звоните и я отвечу на все ваши вопросы, а также оперативно организую показ!
О квартире
Общая площадь
34.5 м²
Жилая площадь
15.4 м²
Площадь кухни
9.77 м²
Площадь комнат
15.4 м²
Высота потолков
2.65 м
Этаж
5
Расположение квартиры
не угловая
Окна выходят
На улицу
Совмещенных санузлов
1
Мебель
Да
О доме
Год постройки
2019
Этажность
19
Количество подъездов
5
Материал постройки
Монолитный
Материал перекрытий
Ж/б плиты
Отопление
Центральное
Парковка
Наземная
Огороженная территория
Да
Расположение
Россия, Санкт-Петербург, бульвар Александра Грина, 3
Приморская
29 мин.
Горный институт
5 мин.
Зенит
6 мин.
Василеостровская
6 мин.
Крестовский остров
8 мин.
Спортивная
8 мин.
Нарвская
9 мин.
Беговая
9 мин.
Ипотечный калькулятор
Заполните 1 анкету — получите предложения от десятков банков на специальных условиях
Программа ипотеки
Стоимость жилья, ₽
Первый взнос, ₽
Срок кредита
от 5.75%
Ставка
от 48 442 ₽
Платеж в месяц
Расчёт носит информационный характер и не является публичной офертой
Предложите свою цену
7 700 000 ₽
223 188 ₽/м²









































