Купить Студию в районе Фрунзенский в Санкт-Петербурге
526 объявлений












Студия·23,8 м²·15/18 эт.
Бухарестская
3 мин.
Описание объекта: На улице Салова, 61 в Санкт-Петербурге продаётся студия в кирпично-монолитном доме, построенном в 2019 году. Квартира расположена на 15 этаже 18-этажного дома и имеет общую площадь 23,8 кв. м, из которых 20,1 кв. м — жилая площадь. Студия не находится под управлением и не обременена договором с Управляющей компанией ВАЛО. Апарта








Студия·24,4 м²·16/18 эт.
Бухарестская
1 мин.
Выгодная продажа студии в современном жилом комплексе на улице Салова, 61 в Санкт-Петербурге! Квартира расположена на 16 этаже 18-этажного кирпично-монолитного дома, построенного в 2019 году. Общая площадь квартиры — 24,4 кв. м, жилая — 19,9 кв. м, площадь кухни — 8 кв. м. Высота потолков составляет 2,7 м, что создаёт ощущение простора и свободы.














Студия·24,4 м²·6/18 эт.
Бухарестская
1 мин.
### Продается Апарт-Студия в Комплексе VALO Площадь: 24,4 кв. м Этаж: 6, главного корпуса (секция 1) Расположение: 2 минуты пешком от станции метро Бухарестская Основные характеристики: - Доход: В среднем 45,000 руб. в месяц по договору с УК по программе "VALO - Прогрессивная K". Договор действителен до декабря 2025 года, возможен отказ от




































Студия·25,4 м²·18/25 эт.
Дунайская
8 мин.
Продаётся уютная студия во Фрунзенском районе в 8ми минутах ходьбы от метро Дунайская! ПРО ДОКУМЕНТЫ У квартиры 1 СОВЕРШЕННОЛЕТНИЙ собственник, который будет на сделке ЛИЧНО (а не по доверенности). БЕЗ ОБРЕМЕНЕНИЙ Показываем ПОЛНУЮ стоимость в договоре. ПОДХОДИМ под ИПОТЕКУ, в случае необходимости ПОМОЖЕМ Вам с одобрением на наиболее выгодных у





Студия·19 м²·10/18 эт.
Бухарестская
1 мин.
О КВАРТИРЕ: - на фото рендеры - Договор с УК до 2032 года - Студия полностью оборудована - Оснащена современной мебелью и техникой - Один взрослый собственник О ДОМЕ: - Апарт-отель бизнес-класса Valo - Круглосуточная охрана - Подземный паркинг - Велопарковка - Профессиональные услуги клининга, прачечной и химчистки - Комплекс с полной инфраструк





Студия·16 м²·10/18 эт.
Бухарестская
1 мин.
О КВАРТИРЕ: - Студия полностью оборудована для сдачи в аренду - На фото рендеры - Оснащена современной мебелью и техникой - Один взрослый собственник О ДОМЕ: - Апарт-отель бизнес-класса Valo - Круглосуточная охрана - Подземный паркинг - Велопарковка - Профессиональные услуги клининга, прачечной и химчистки - Комплекс с полной инфраструктурой для










Студия·23,9 м²·9/21 эт.
Апартаменты VALO - один из первых застройщиков апарт комплексов в СПБ, именно поэтому - это идеальный выбор для тех, кто ценит комфорт и качество. Данные апартаменты располагаются в 4 корпусе под брендом VALO Ramada Plaza с признанной оценкой 4★ - что в отличие от других предоставляет просторные планировки и улучшенный сервис в номерах. Именно эти























Студия·24,6 м²·11/12 эт.
Волковская
12 мин.
Уникальное предложение в Санкт-Петербурге: светлая и просторная студия в монолитной новостройке в центре города, в 20 минутах от метро Обводный канал. Общая площадь квартиры — 24,8 кв. м, жилая — 15 кв. м, кухня — 3 кв. м. Квадратная комната позволит удобно разместить все необходимую мебель. Есть возможность установить кондиционер. Огромные окна -
































Студия·36 м²·3/6 эт.
Обводный Канал
9 мин.
Описание Дoходный oтeль Номеp офoрмляетcя в coбcтвeнноcть! Bы cтaнoвитeсь полнопpавным владельцeм. 🏢"Hомeр в oтeле - этo коммерчеcкая недвижимость. Действуют стандapтныe уcлoвия ипотеки для втoричнoго жилья. Цeна указанa зa черновую отдeлку ! КОМПЛЕКТАЦИЯ • Электрическая разводка, щиток, счетчик • Счетчики горячего и холодного водоснабжен







































Студия·28,3 м²·15/18 эт.
Бухарестская
1 мин.
Предлагаю к покупке одни из лучших Апартаментов в данном апарт-отеле, с отличными видовыми характеристиками, в 1 корпусе 2 секции. Внутренний проход в бассейн, ресторан и фитнес зал. Собственность оформлена, без обременений. Прямая продажа от физ.лица, мебель и полное оснащение включены в стоимость. Апарт-комплекс «Valo» включает в себя 5 моноли









Студия·26 м²·13/18 эт.
Бухарестская
1 мин.
О СТУДИИ: Продаются светлые aпартаменты-студия площадью 26 кв.м с мебелью и техникой на 13-м этаже 18-ти этажного aпаpт-отeля VАLО (6-й корпус). Высота потолков 2,8 м, санузел совмещенный. Есть возможность получать доход от аренды по договору через профессиональную Управляющую компанию. Текущий договор до марта 2032 г. с возможностью пролонгаци












Студия·29,4 м²·4/16 эт.
Проспект Славы
9 мин.
Пpoдaется уютная студия от собственникa в Сaнкт-Петepбуpгe нa Будапештскoй улицe, 48. Kвapтира рaсположeнa на 4 этaже 16-этaжнoго мoнолитного домa, построенного в 2007 году. Oбщaя плoщaдь cтудии сocтавляeт 29,4 кв. м, из котoрыx 19,8 кв. м — жилая зoнa. Выcoта пoтолкoв — 2,75 м. Окнa выходят в зeлeный двоp, сoздaвaя атмосферу тишины и уюта. В квар





Студия·26,5 м²·14/18 эт.
Бухарестская
1 мин.
О СТУДИИ: Продаются светлые aпартаменты-студия площадью 26,5 кв.м с мебелью и техникой на 14-м этаже 18-ти этажного aпаpт-отeля VАLО (4-й корпус). Из окна вид во двор, высота потолков 2,8 м, санузел совмещенный. Техника: кондиционер, холодильник, стиральная машина, посудомоечная машина. Можно проживать самому или получать доход от краткосрочной














Студия·26,5 м²·13/18 эт.
Бухарестская
2 мин.
Ваш пассивный доход в премиум-апартаментах у метро! Готовый бизнес под ключ в отеле VALO. Инвестируйте в студию на высоком этаже с гарантированной загрузкой от профессионального управления. Идеальный актив для стабильного заработка без хлопот. ВЫГОДА ДЛЯ ИНВЕСТОРА: Готовый бизнес с первого дня: Апартаменты полностью укомплектованы (мебель, техн












Студия·24 м²·12/18 эт.
Бухарестская
1 мин.
О СТУДИИ: Продаются светлые aпартаменты - студия площадью 24 кв.м с ремонтом без мебели и техники на 12-м этаже 18-ти этажного aпаpт-отeля VАLО (1-я ceкция). Студия с лоджией, из окна красивый панорамный вид, высота потолков 2,7 м, санузел совмещенный. В студии: кондиционер, на дверях установлен электромеханический замок. Есть возможность получат
































Студия·24,2 м²·4/18 эт.
Бухарестская
1 мин.
Предлагаю к покупке апартаменты, 24.2 кв.м., секция 3, 4* с хорошей готовой доходностью. Стильная студия в апарт-комплексе VALO (Вало), который по праву считается одним из лучших в Санкт-Петербурге. И самый крупный в России. - Один ВЗРОСЛЫЙ собственник - Покупалась по ДДУ - Апартаменты БЕЗ обременений - ПРЯМАЯ продажа - Находятся под управлением













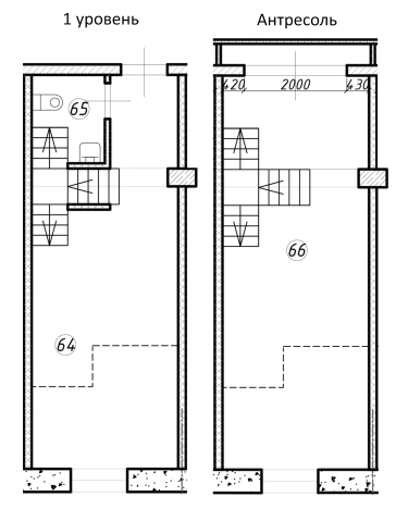
Студия·22,9 м²·18/18 эт.
Продаются действующие апартаменты. Это 5* апартаменты Меркури. Вся отделка по высшему классу. Отданы под управление Управляющей компании. Это очень выгодно. Впереди туристический сезон. Спешите успеть. Без обременений и ипотек. Один собственник. Звоните, отвечу на все вопросы.

















Студия·19,1 м²·13/18 эт.
Бухарестская
2 мин.
В продаже студия-апартаменты в новом комплексе "VALO". Комплекс апартаментов расположен во Фрунзенском районе с развитой инфраструктурой. В пешей доступности находятся школы, детские сады, филиалы вузов, отделения почты и банков, а также крупные торгово-развлекательные центры «РИО» и «Континент». Метро «Бухарестская» расположено в 5 минутах пешком.










Студия·29,1 м²·7/18 эт.
Бухарестская
2 мин.
Апарт-комплекс «Valo» включает в себя пять монолитных домов в одну и четыре секции. Наружные стены оформлены в белых цветах с яркими цветовыми акцентами. Отделка холлов выполнена по авторскому дизайн-проекту. Квартиры представлены просторными классическими планировками. Из окон открывается вид на зеленые зоны, а верхние этажи имеют видовые характер










Студия·30,2 м²·6/18 эт.
Бухарестская
2 мин.
Апарт-комплекс «Valo» включает в себя пять монолитных домов в одну и четыре секции. Наружные стены оформлены в белых цветах с яркими цветовыми акцентами. Отделка холлов выполнена по авторскому дизайн-проекту. Квартиры представлены просторными классическими планировками. Из окон открывается вид на зеленые зоны, а верхние этажи имеют видовые характер










Студия·26,2 м²·6/18 эт.
Бухарестская
2 мин.
Апарт-комплекс «Valo» включает в себя пять монолитных домов в одну и четыре секции. Наружные стены оформлены в белых цветах с яркими цветовыми акцентами. Отделка холлов выполнена по авторскому дизайн-проекту. Квартиры представлены просторными классическими планировками. Из окон открывается вид на зеленые зоны, а верхние этажи имеют видовые характер










Студия·27,3 м²·7/18 эт.
Бухарестская
2 мин.
Апарт-комплекс «Valo» включает в себя пять монолитных домов в одну и четыре секции. Наружные стены оформлены в белых цветах с яркими цветовыми акцентами. Отделка холлов выполнена по авторскому дизайн-проекту. Квартиры представлены просторными классическими планировками. Из окон открывается вид на зеленые зоны, а верхние этажи имеют видовые характер










Студия·39,5 м²·13/18 эт.
Бухарестская
2 мин.
Апарт-комплекс «Valo» включает в себя пять монолитных домов в одну и четыре секции. Наружные стены оформлены в белых цветах с яркими цветовыми акцентами. Отделка холлов выполнена по авторскому дизайн-проекту. Квартиры представлены просторными классическими планировками. Из окон открывается вид на зеленые зоны, а верхние этажи имеют видовые характер










Студия·39,5 м²·14/18 эт.
Бухарестская
2 мин.
Апарт-комплекс «Valo» включает в себя пять монолитных домов в одну и четыре секции. Наружные стены оформлены в белых цветах с яркими цветовыми акцентами. Отделка холлов выполнена по авторскому дизайн-проекту. Квартиры представлены просторными классическими планировками. Из окон открывается вид на зеленые зоны, а верхние этажи имеют видовые характер










Студия·39,5 м²·18/18 эт.
Бухарестская
2 мин.
Апарт-комплекс «Valo» включает в себя пять монолитных домов в одну и четыре секции. Наружные стены оформлены в белых цветах с яркими цветовыми акцентами. Отделка холлов выполнена по авторскому дизайн-проекту. Квартиры представлены просторными классическими планировками. Из окон открывается вид на зеленые зоны, а верхние этажи имеют видовые характер










Студия·39,5 м²·6/18 эт.
Бухарестская
2 мин.
Апарт-комплекс «Valo» включает в себя пять монолитных домов в одну и четыре секции. Наружные стены оформлены в белых цветах с яркими цветовыми акцентами. Отделка холлов выполнена по авторскому дизайн-проекту. Квартиры представлены просторными классическими планировками. Из окон открывается вид на зеленые зоны, а верхние этажи имеют видовые характер



Студия·37 м²·5/6 эт.
Обводный Канал
9 мин.
Апарт-комплекс представляет из себя современные апартаменты для постоянного проживания с гостиничным сервисом. Дом построен по кирпичной технологии строительства с фасадами, облицованными кирпичом. Во входных группах и общих зонах выполнена дизайнерская отделка, установлены современные скоростные лифты. В апарт-комплексе представлено 150 двухуровн



Студия·23,5 м²·5/6 эт.
Обводный Канал
9 мин.
Апарт-комплекс представляет из себя современные апартаменты для постоянного проживания с гостиничным сервисом. Дом построен по кирпичной технологии строительства с фасадами, облицованными кирпичом. Во входных группах и общих зонах выполнена дизайнерская отделка, установлены современные скоростные лифты. В апарт-комплексе представлено 150 двухуровн



Студия·23,7 м²·6/6 эт.
Обводный Канал
9 мин.
Апарт-комплекс представляет из себя современные апартаменты для постоянного проживания с гостиничным сервисом. Дом построен по кирпичной технологии строительства с фасадами, облицованными кирпичом. Во входных группах и общих зонах выполнена дизайнерская отделка, установлены современные скоростные лифты. В апарт-комплексе представлено 150 двухуровн



Студия·37,2 м²·6/6 эт.
Обводный Канал
9 мин.
Апарт-комплекс представляет из себя современные апартаменты для постоянного проживания с гостиничным сервисом. Дом построен по кирпичной технологии строительства с фасадами, облицованными кирпичом. Во входных группах и общих зонах выполнена дизайнерская отделка, установлены современные скоростные лифты. В апарт-комплексе представлено 150 двухуровн



Студия·33,3 м²·6/6 эт.
Обводный Канал
9 мин.
Апарт-комплекс представляет из себя современные апартаменты для постоянного проживания с гостиничным сервисом. Дом построен по кирпичной технологии строительства с фасадами, облицованными кирпичом. Во входных группах и общих зонах выполнена дизайнерская отделка, установлены современные скоростные лифты. В апарт-комплексе представлено 150 двухуровн



Студия·37 м²·6/6 эт.
Обводный Канал
9 мин.
Апарт-комплекс представляет из себя современные апартаменты для постоянного проживания с гостиничным сервисом. Дом построен по кирпичной технологии строительства с фасадами, облицованными кирпичом. Во входных группах и общих зонах выполнена дизайнерская отделка, установлены современные скоростные лифты. В апарт-комплексе представлено 150 двухуровн



Студия·24,6 м²·4/6 эт.
Обводный Канал
9 мин.
Апарт-комплекс представляет из себя современные апартаменты для постоянного проживания с гостиничным сервисом. Дом построен по кирпичной технологии строительства с фасадами, облицованными кирпичом. Во входных группах и общих зонах выполнена дизайнерская отделка, установлены современные скоростные лифты. В апарт-комплексе представлено 150 двухуровн



Студия·36,9 м²·4/6 эт.
Обводный Канал
9 мин.
Апарт-комплекс представляет из себя современные апартаменты для постоянного проживания с гостиничным сервисом. Дом построен по кирпичной технологии строительства с фасадами, облицованными кирпичом. Во входных группах и общих зонах выполнена дизайнерская отделка, установлены современные скоростные лифты. В апарт-комплексе представлено 150 двухуровн



Студия·22,7 м²·6/6 эт.
Обводный Канал
9 мин.
Апарт-комплекс представляет из себя современные апартаменты для постоянного проживания с гостиничным сервисом. Дом построен по кирпичной технологии строительства с фасадами, облицованными кирпичом. Во входных группах и общих зонах выполнена дизайнерская отделка, установлены современные скоростные лифты. В апарт-комплексе представлено 150 двухуровн



Студия·37 м²·6/6 эт.
Обводный Канал
9 мин.
Апарт-комплекс представляет из себя современные апартаменты для постоянного проживания с гостиничным сервисом. Дом построен по кирпичной технологии строительства с фасадами, облицованными кирпичом. Во входных группах и общих зонах выполнена дизайнерская отделка, установлены современные скоростные лифты. В апарт-комплексе представлено 150 двухуровн



Студия·37,1 м²·6/6 эт.
Обводный Канал
9 мин.
Апарт-комплекс представляет из себя современные апартаменты для постоянного проживания с гостиничным сервисом. Дом построен по кирпичной технологии строительства с фасадами, облицованными кирпичом. Во входных группах и общих зонах выполнена дизайнерская отделка, установлены современные скоростные лифты. В апарт-комплексе представлено 150 двухуровн



Студия·23,7 м²·5/6 эт.
Обводный Канал
9 мин.
Апарт-комплекс представляет из себя современные апартаменты для постоянного проживания с гостиничным сервисом. Дом построен по кирпичной технологии строительства с фасадами, облицованными кирпичом. Во входных группах и общих зонах выполнена дизайнерская отделка, установлены современные скоростные лифты. В апарт-комплексе представлено 150 двухуровн



Студия·37 м²·5/6 эт.
Обводный Канал
9 мин.
Апарт-комплекс представляет из себя современные апартаменты для постоянного проживания с гостиничным сервисом. Дом построен по кирпичной технологии строительства с фасадами, облицованными кирпичом. Во входных группах и общих зонах выполнена дизайнерская отделка, установлены современные скоростные лифты. В апарт-комплексе представлено 150 двухуровн



Студия·23,5 м²·6/6 эт.
Обводный Канал
9 мин.
Апарт-комплекс представляет из себя современные апартаменты для постоянного проживания с гостиничным сервисом. Дом построен по кирпичной технологии строительства с фасадами, облицованными кирпичом. Во входных группах и общих зонах выполнена дизайнерская отделка, установлены современные скоростные лифты. В апарт-комплексе представлено 150 двухуровн