Купить дом на улице Магистральная в Микрорайоне Солнечный в Стерлитамаке
Россия, Республика Башкортостан, Стерлитамак, Магистральная улица, 44
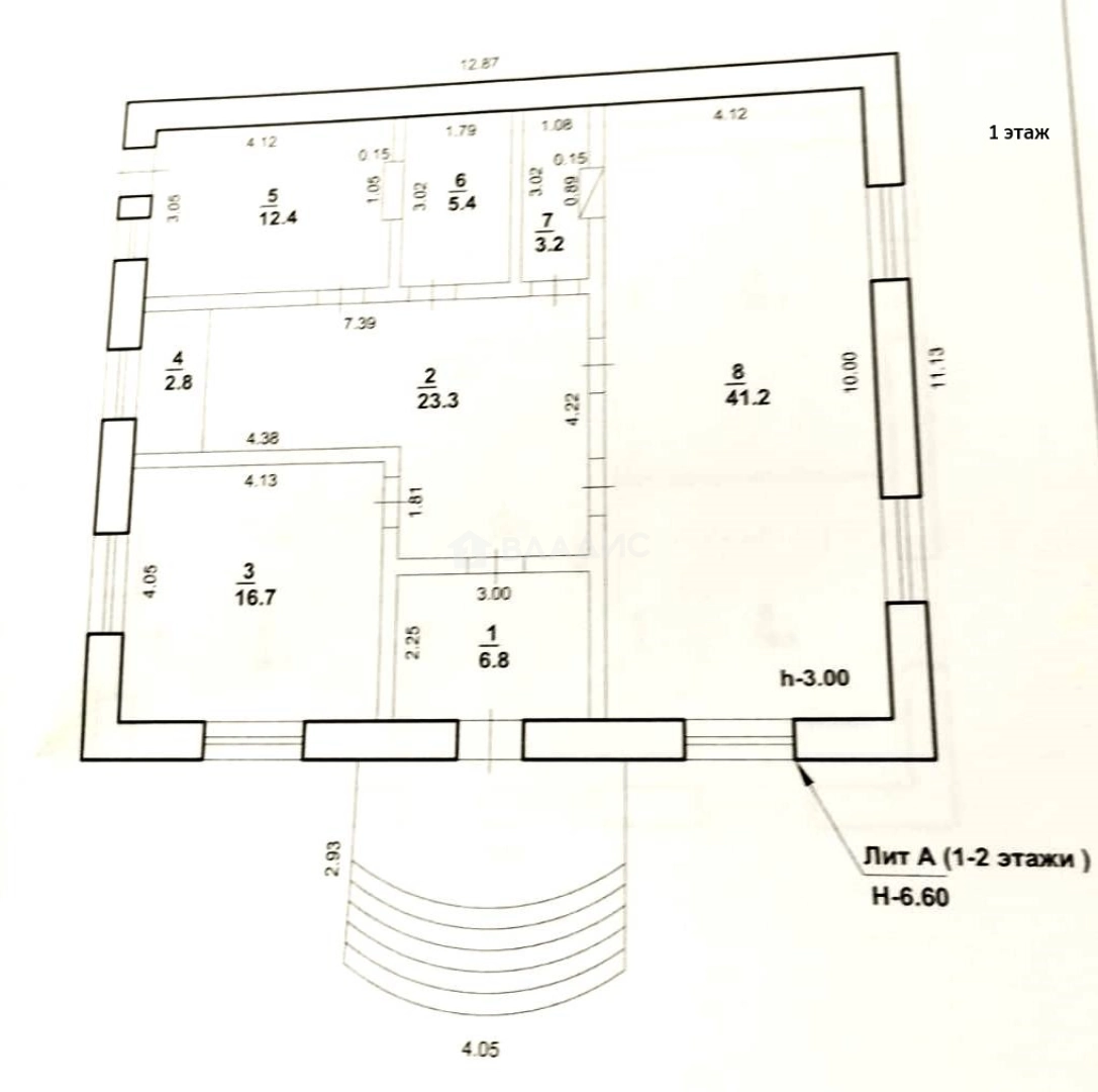
217.3 м²
Площадь дома
8 сот
Площадь участка
Кирпичный
Материал постройки
2
Этажей
Описание
Участок 8 соток, чернозем, много плодово-ягодных насаждений. На территории участка есть гараж(отштукатурен, с погребом и стеллажами). Есть баня из кругляка в сказочной тематике, выполнен дизайнером. Имеется ландшафтный дизайн, газонная трава по всей территории.
Дом продается в связи с переездом в другой город, документы чистые, 1 взрослый собственник.
Рассмотрим все варианты расчёта.
О доме
Год постройки
2017
Этажей в доме
2
Общая площадь
217.3 м²
Жилая площадь
87.5 м²
Площадь кухни
41.2 м²
Площадь комнат
16,7+22,8+12,4+18,9+ 16,7 м²
Материал постройки
Кирпичный
Материал перекрытий
Ж/б плиты
Материал кровли
Профнастил
Раздельных санузлов
2
Об участке
Площадь участка
8 сот.
Статус участка
Индивидуальное жилищное строительство
Электричество
Есть
Водоснабжение
Есть
Гараж
Есть
Подъезд к участку
Асфальт
Расположение
Россия, Республика Башкортостан, Стерлитамак, Магистральная улица, 44
Ипотечный калькулятор
Заполните 1 анкету — получите предложения от десятков банков на специальных условиях
Программа ипотеки
Стоимость жилья, ₽
Первый взнос, ₽
Срок кредита
от 5.75%
Ставка
от 149 099 ₽
Платеж в месяц
Расчёт носит информационный характер и не является публичной офертой
Предложите свою цену
23 700 000 ₽
109 066 ₽/м²































