Продается 2-комн. квартира, 44 м²
Россия, Республика Башкортостан, Стерлитамак, улица Артёма, 15
44 м²
Общая площадь
27.4 м²
Жилая площадь
7 м²
Площадь кухни
4 из 5
Этаж
Описание
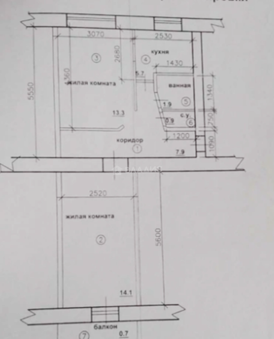
Квартира расположена на 4 этаже 5-этажного дома. Общая площадь составляет 44 кв. м, из которых 27,4 кв. м — жилая площадь, 7 кв. м — кухня. В квартире старый ремонт, но это даёт возможность новым владельцам воплотить свои дизайнерские идеи. 🖼️
Окна выходят на улицу, а балкон предоставляет дополнительное пространство для отдыха.
Мы гарантируем безопасную сделку и юридическую поддержку нашим Клиентам. Поможем одобрить ипотеку с сниженной ставкой.
О квартире
Общая площадь
44 м²
Жилая площадь
27.4 м²
Площадь кухни
7 м²
Площадь комнат
13,3+14,1 м²
Этаж
4
Расположение квартиры
не угловая
Окна выходят
На улицу
Раздельных санузлов
1
Ремонт
Старый ремонт
Балкон
Есть
О доме
Год постройки
1974
Этажность
5
Количество подъездов
11
Материал постройки
Кирпичный
Материал перекрытий
Ж/б плиты
Отопление
Центральное
Парковка
Наземная
Расположение
Россия, Республика Башкортостан, Стерлитамак, улица Артёма, 15
Ипотечный калькулятор
Заполните 1 анкету — получите предложения от десятков банков на специальных условиях
Программа ипотеки
Стоимость жилья, ₽
Первый взнос, ₽
Срок кредита
от 5.75%
Ставка
от 18 874 ₽
Платеж в месяц
Расчёт носит информационный характер и не является публичной офертой
Похожие объекты







2-комн. квартира, 47,5 м², 5/5 эт.









2-комн. квартира, 47,4 м², 4/4 эт.
















1-комн. квартира, 37,8 м², 1/9 эт.



















2-комн. квартира, 40,5 м², 4/5 эт.
Предложите свою цену
2 999 999 ₽
68 182 ₽/м²














































