Купить дом на улице Алтынникова в Микрорайоне Глушинский в Строителе
Россия, Белгородская область, Яковлевский муниципальный округ, Строитель, улица Алтынникова, 38
100 м²
Площадь дома
15 сот
Площадь участка
Блочный
Материал постройки
2
Этажей
Описание
В тихом, уютном, месте, в городе Строитель (мкр. Глушинский) продаётся дом!
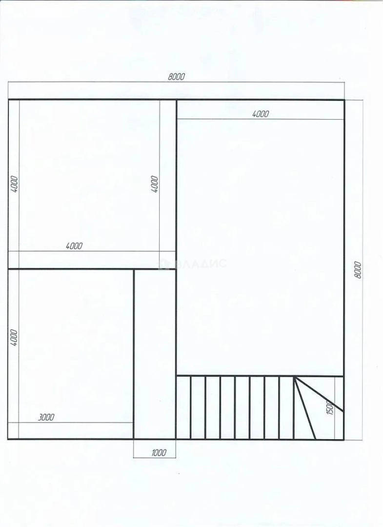
Просторный, двухэтажный, площадью 100м2, на ровном участке в 15 соток. По классификации - ИЖС!
Это идеальное место для семей с детьми и молодых пар, которые ценят уют и комфорт. Высота потолков — 3 метра, что создаёт ощущение простора и свободы. Вам не придётся переплачивать за чужой ремонт. Каков будет Ваш дом изнутри - зависит только от Вашей фантазии. По плану в доме предусмотрено 4е комнаты.
- фундамент ленточный, глубиной 1,2м .
- стены из пеноблока,
- высота потолков 3 метра,
- крыша металлочерепица 0.65мм.
Расположение дома особенно привлекательно - всего в 3 км от города, что обеспечивает удобство и доступность городской инфраструктуры. Подъезд к участку асфальтированный, приехать и уехать можно в любое время, не обращая внимания на погоду. Все коммуникации (электричество, водоснабжение, газ, канализация) уже заведены в дом.
Цена этого замечательного дома очень привлекательна - ВЫ ПРИОБРЕТАЕТЕ ДВУХ ЭТАЖНЫЙ ДОМ ПО ЦЕНЕ ОДНО КОМНАТНОЙ КВАРТИРЫ!!!
НЕ УПУСТИТЕ СВОЙ ШАНС!!!
ФОРМА ОПЛАТЫ ЛЮБАЯ :
Ипотека, наличные, военная ипотека, материнский капитал, жилищный сертификат, "курский" сертификат, специальный счет, постановление 555.
Без долгов и обременений.
Позвоните прямо сейчас, чтобы узнать больше о доме и договориться о просмотре!
О доме
Год постройки
2020
Этажей в доме
2
Общая площадь
100 м²
Жилая площадь
80 м²
Площадь кухни
18 м²
Площадь комнат
16+32+12+20 м²
Материал постройки
Блочный
Материал перекрытий
Ж/б плиты
Материал кровли
Металлочерепица
Высота потолков
3 м
Об участке
Площадь участка
15 сот.
Статус участка
Индивидуальное жилищное строительство
Электричество
Есть
Газ
Есть
Водоснабжение
Есть
Канализация
Есть
Без благоустройства участка
Есть
Подъезд к участку
Асфальт
Расположение
Россия, Белгородская область, Яковлевский муниципальный округ, Строитель, улица Алтынникова, 38
Ипотечный калькулятор
Заполните 1 анкету — получите предложения от десятков банков на специальных условиях
Программа ипотеки
Стоимость жилья, ₽
Первый взнос, ₽
Срок кредита
от 5.75%
Ставка
от 20 132 ₽
Платеж в месяц
Расчёт носит информационный характер и не является публичной офертой
Предложите свою цену
3 200 000 ₽
32 000 ₽/м²
















