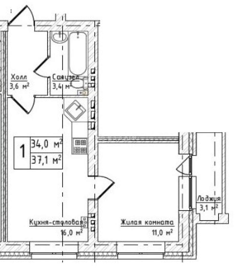
Продается 1-комн. квартира, 37.1 м²
Россия, Владимирская область, Суздаль, Советская улица, 33
37.1 м²
Общая площадь
11 м²
Жилая площадь
16 м²
Площадь кухни
2 из 3
Этаж
Описание
Квартира расположена на втором этаже трёхэтажного дома. Окна выходят на улицу, что обеспечивает хорошее естественное освещение и приятный вид из окна. Общая площадь квартиры составляет 37,1 квадратных метра, из которых 11 квадратных метров приходится на жилую площадь, а 16 квадратных метров — на кухню.
В квартире нет ремонта, что даёт новым владельцам возможность обустроить её по своему вкусу и предпочтениям. Индивидуальный котёл отопления обеспечивает комфорт и тепло в холодное время года. Железобетонные перекрытия гарантируют прочность и надёжность конструкции.
Эта квартира идеально подойдёт тем, кто ценит комфорт, уют и свободу выбора в оформлении своего жилья. Удобное расположение в историческом городе Суздаль делает это предложение особенно привлекательным для ценителей культурного наследия и живописных пейзажей.
Мы гарантируем безопасную сделку и юридическую поддержку нашим Клиентам. Поможем одобрить ипотеку с сниженной ставкой.
О квартире
Общая площадь
37.1 м²
Жилая площадь
11 м²
Площадь кухни
16 м²
Площадь комнат
11 м²
Подъезд
1
Этаж
2
Расположение квартиры
не угловая
Окна выходят
На улицу
Совмещенных санузлов
1
Ремонт
Без отделки
О доме
Год постройки
2025
Этажность
3
Количество подъездов
2
Материал постройки
Кирпичный
Материал перекрытий
Ж/б плиты
Отопление
Индивидуальный котел
Расположение
Россия, Владимирская область, Суздаль, Советская улица, 33
Ипотечный калькулятор
Заполните 1 анкету — получите предложения от десятков банков на специальных условиях
Программа ипотеки
Стоимость жилья, ₽
Первый взнос, ₽
Срок кредита
от 5.75%
Ставка
от 25 674 ₽
Платеж в месяц
Расчёт носит информационный характер и не является публичной офертой
Похожие объекты










1-комн. квартира, 37,4 м², 2/3 эт.























1-комн. квартира, 35,9 м², 2/3 эт.
































1-комн. квартира, 37,2 м², 2/3 эт.











1-комн. квартира, 36,6 м², 2/3 эт.
Предложите свою цену
4 081 000 ₽
110 000 ₽/м²


























