Купить дом в Микрорайоне 11-й в Тобольске
Россия, Тюменская область, Тобольск, 11-й микрорайон
242 м²
Площадь дома
10 сот
Площадь участка
Блочный
Материал постройки
2
Этажей
Описание
Отличное месторасположение, прямо в черте города, в самом популярном 11 микрорайоне. Коттедж 2х этажный, общей площадью 242 кв.м. расположен на земельном участке площадью почти 10 соток. Участок отсыпан и выровнен.
Дом построен полностью из керамзитоблоков, утеплитель Технониколь, облицовка современный керамический кирпич. Установлены пятикамерные стеклопакеты отличного качества, а также супер прочная входная сейф дверь. Под домом и верандой полностью залита монолитная плита с монтажом и выводом канализации под ней. На 1м и 2м этаже железобетонные плиты перекрытия. В доме выполнена черновая отделка, что дает вам возможность реализовать свои дизайнерские идеи и создать пространство своей мечты.
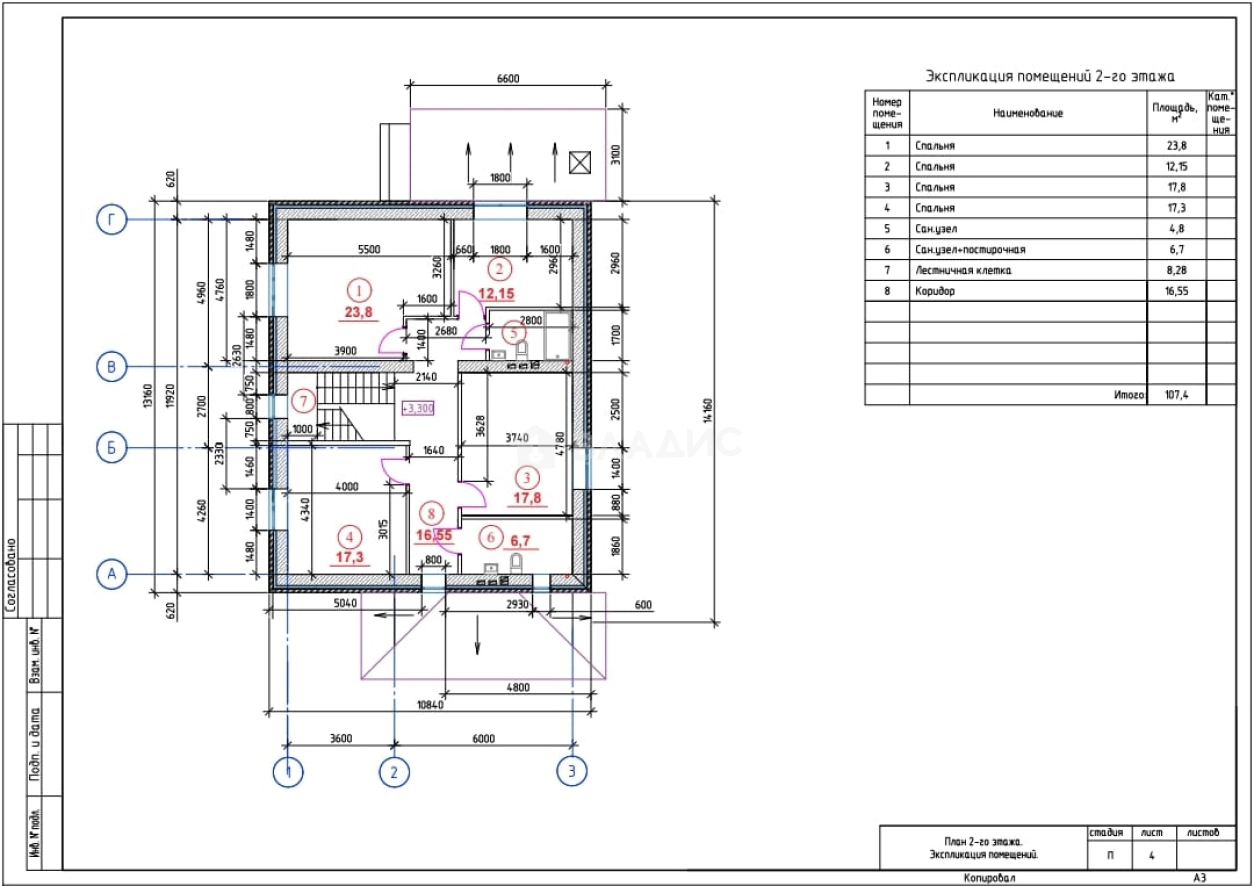
Удачная планировка включает в себя на 1м этаже: просторную кухню-гостиную с выходом на закрытую веранду, где вы сможете наслаждаться утренним кофе или вечерними встречами с друзьями, 2 санузла, один из которых можно легко превратить в гардеробную и 2 спальни. На 2м этаже расположены 3 просторные спальни, 2 санузла и кабинет.
Все необходимые коммуникации присутствуют: централизованный водопровод заведен в дом, электричество подключено, газификация возле дома и даже есть централизованная канализация, что редкость для многих микрорайонов.
Коттедж для настоящих ценителей качества и удобства! Находится он в благополучном, спокойном и безопасном районе. Не упустите шанс стать владельцем этого замечательного коттеджа!
О доме
Год постройки
2024
Этажей в доме
2
Общая площадь
242 м²
Жилая площадь
180 м²
Площадь кухни
30 м²
Площадь комнат
30+30+30+30+ 30+30 м²
Материал постройки
Блочный
Материал перекрытий
Ж/б плиты
Материал кровли
Металлочерепица
Высота потолков
2.7 м
Об участке
Площадь участка
10 сот.
Статус участка
Индивидуальное жилищное строительство
Электричество
Есть
Газ
Есть
Водоснабжение
Есть
Канализация
Есть
Гараж
Есть
Подъезд к участку
Асфальт
Расположение
Россия, Тюменская область, Тобольск, 11-й микрорайон
Ипотечный калькулятор
Заполните 1 анкету — получите предложения от десятков банков на специальных условиях
Программа ипотеки
Стоимость жилья, ₽
Первый взнос, ₽
Срок кредита
от 5.75%
Ставка
от 119 216 ₽
Платеж в месяц
Расчёт носит информационный характер и не является публичной офертой
Предложите свою цену
18 950 000 ₽
78 306 ₽/м²


































































