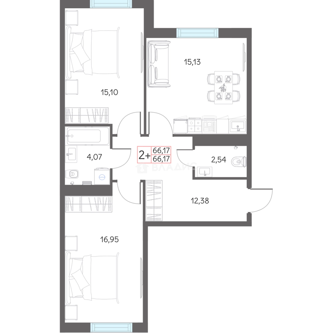
Продается 2-комн. квартира, 66.17 м²
Россия, Тюменская область, Тобольск, микрорайон 7А, 29
66.17 м²
Общая площадь
2 из 8
Этаж
Описание
О квартире
Общая площадь
66.17 м²
Площадь комнат
15,10+16,95 м²
Подъезд
3
Этаж
2
Окна выходят
На улицу
Раздельных санузлов
1
Ремонт
White box
О доме
Год постройки
2026
Этажность
8
Количество подъездов
4
Материал постройки
Монолитный
Материал перекрытий
Ж/б плиты
Отопление
Центральное
Парковка
Наземная
Расположение
Россия, Тюменская область, Тобольск, микрорайон 7А, 29
Ипотечный калькулятор
Заполните 1 анкету — получите предложения от десятков банков на специальных условиях
Программа ипотеки
Стоимость жилья, ₽
Первый взнос, ₽
Срок кредита
от 5.75%
Ставка
от 42 465 ₽
Платеж в месяц
Расчёт носит информационный характер и не является публичной офертой
Похожие объекты
Консультант по новостройкам
6 750 000 ₽
102 010 ₽/м²








