Продается 4-комн. квартира, 72.8 м²
Россия, Тюменская область, Тобольск, микрорайон Иртышский, 18
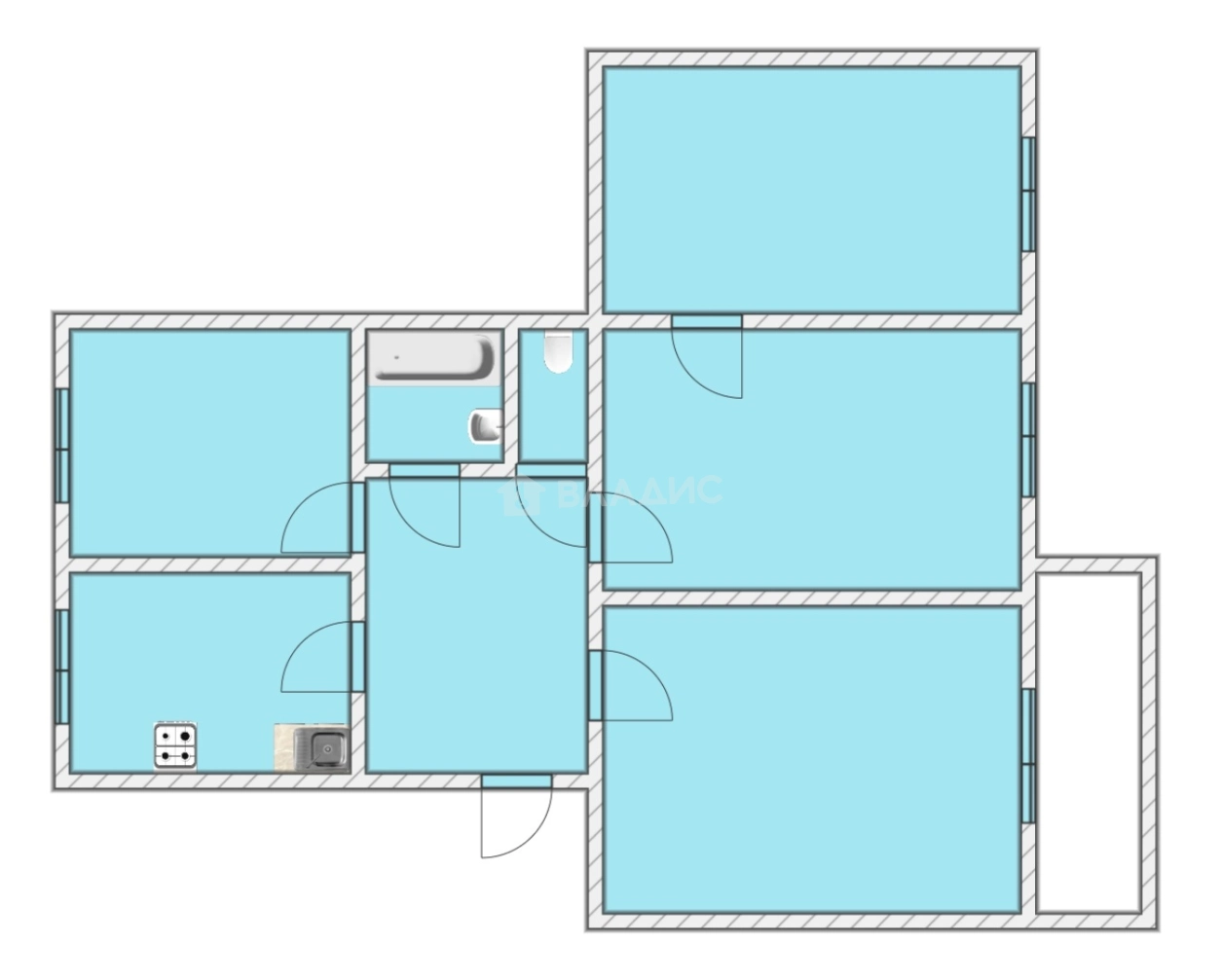
72.8 м²
Общая площадь
55 м²
Жилая площадь
8 м²
Площадь кухни
5 из 5
Этаж
Описание
Квартира светлая, чистая, ухоженная с косметическим ремонтом. Окна частично заменены на пластиковые, есть и деревянные в хорошем состоянии, балкон застеклен пластиком и обшит вагонкой. В зале натяжной матовый потолок. Напольное покрытие комбинированное: линолеум и ламинат. В ванной ремонт был сделан совсем недавно, стены выложена керамической плиткой от пола до потолка, установлена новая ванна и сантехника. Во дворе большая детская площадка на несколько домов и удобная стоянка. Квартира в кирпичном доме ,как известно кирпичные дома обладают хорошей звуко- и теплоизоляцией, зимой сохраняют тепло, а летом защищают от жары. Прекрасный спокойный микрорайон ,своя поликлиника и больница, дом культуры, летом чудесный пляж на берегу Иртыша. Удобная транспортная развязка,остановки все близко. В шаговой доступности садик и школа.
Заинтересовало предложение звоните и пишите, всегда рады помочь вам!
О квартире
Общая площадь
72.8 м²
Жилая площадь
55 м²
Площадь кухни
8 м²
Площадь комнат
15+10+15+15 м²
Этаж
5
Расположение квартиры
угловая
Окна выходят
На улицу, Во двор
Раздельных санузлов
1
Ремонт
Косметический
Балкон
Есть
О доме
Год постройки
1994
Этажность
5
Количество подъездов
10
Материал постройки
Кирпичный
Материал перекрытий
Ж/б плиты
Отопление
Центральное
Парковка
Наземная
Расположение
Россия, Тюменская область, Тобольск, микрорайон Иртышский, 18
Ипотечный калькулятор
Заполните 1 анкету — получите предложения от десятков банков на специальных условиях
Программа ипотеки
Стоимость жилья, ₽
Первый взнос, ₽
Срок кредита
от 5.75%
Ставка
от 23 592 ₽
Платеж в месяц
Расчёт носит информационный характер и не является публичной офертой
Предложите свою цену
3 750 000 ₽
51 511 ₽/м²












