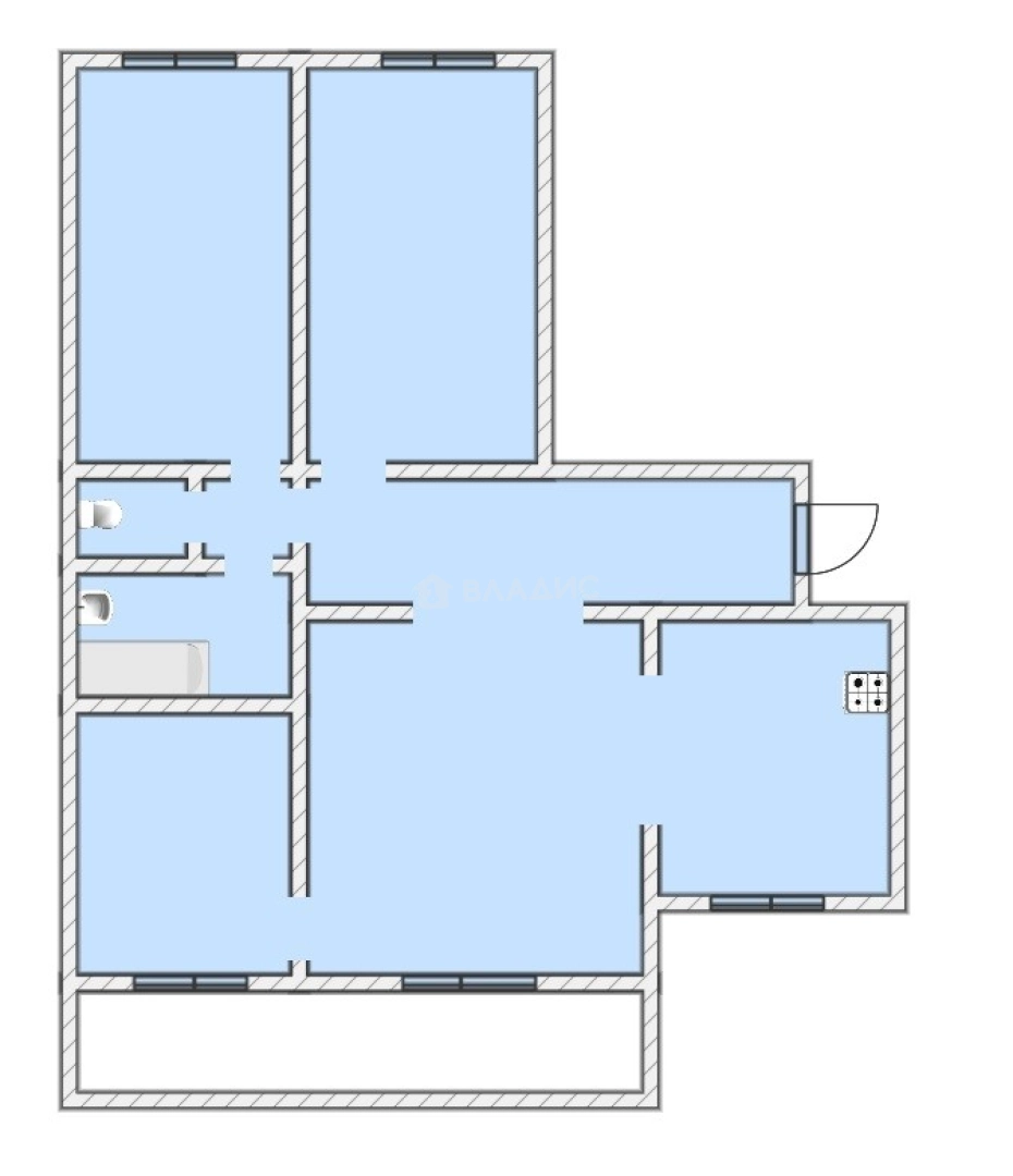
Продается 4-комн. квартира, 80 м²
Россия, Тюменская область, Тобольск, 4-й микрорайон, 13
80 м²
Общая площадь
55 м²
Жилая площадь
12 м²
Площадь кухни
3 из 9
Этаж
Описание
О квартире
Общая площадь
80 м²
Жилая площадь
55 м²
Площадь кухни
12 м²
Площадь комнат
10+15+20+10 м²
Этаж
3
Расположение квартиры
угловая
Окна выходят
На улицу, Во двор
Раздельных санузлов
1
Ремонт
Евро
Лоджия
Есть
О доме
Год постройки
1988
Этажность
9
Количество подъездов
4
Материал постройки
Кирпичный
Материал перекрытий
Ж/б плиты
Отопление
Центральное
Пассажирских лифтов
1
Парковка
Наземная
Расположение
Россия, Тюменская область, Тобольск, 4-й микрорайон, 13
Ипотечный калькулятор
Заполните 1 анкету — получите предложения от десятков банков на специальных условиях
Программа ипотеки
Стоимость жилья, ₽
Первый взнос, ₽
Срок кредита
от 5.75%
Ставка
от 39 320 ₽
Платеж в месяц
Расчёт носит информационный характер и не является публичной офертой
Похожие объекты
Предложите свою цену
6 250 000 ₽
78 125 ₽/м²






































































































































