Продается 4-комн. квартира, 87 м²
Россия, Тюменская область, Тобольск, микрорайон Иртышский, 18
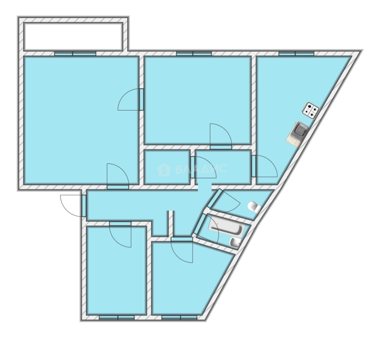
87 м²
Общая площадь
50 м²
Жилая площадь
12 м²
Площадь кухни
4 из 5
Этаж
Описание
Общая площадь квартиры составляет 87 квадратных метров. Просторная кухня площадью 12 квадратных метров станет отличным местом для ваших кулинарных экспериментов. Комнаты хорошо зонированны, что позволяет создать уютное и функциональное пространство для всей семьи.
Косметический ремонт позволяет вам легко адаптировать квартиру под свои предпочтения и стиль. Высота потолков в 2.6 метра делает пространство более светлым и воздушным. Окна выходят на улицу, что обеспечит вам хорошую вентиляцию и возможность наслаждаться видами.
Квартире также доступны наземные парковочные места, что крайне удобно для владельцев автомобилей. Одним из преимуществ данного объекта является центральное отопление, которое обеспечит тепло и комфорт в холодное время года.
Не упустите шанс стать владельцем этой замечательной квартиры! Мы гарантируем безопасную сделку и юридическую поддержку нашим Клиентам. Поможем одобрить ипотеку с сниженной ставкой. Позвоните нам прямо сейчас!
О квартире
Общая площадь
87 м²
Жилая площадь
50 м²
Площадь кухни
12 м²
Площадь комнат
20+10+10+10 м²
Высота потолков
2.6 м
Подъезд
3
Этаж
4
Расположение квартиры
не угловая
Окна выходят
На улицу
Раздельных санузлов
1
О доме
Год постройки
1994
Этажность
5
Количество подъездов
10
Материал постройки
Кирпичный
Материал перекрытий
Ж/б плиты
Отопление
Центральное
Парковка
Наземная
Расположение
Россия, Тюменская область, Тобольск, микрорайон Иртышский, 18
Ипотечный калькулятор
Заполните 1 анкету — получите предложения от десятков банков на специальных условиях
Программа ипотеки
Стоимость жилья, ₽
Первый взнос, ₽
Срок кредита
от 5.75%
Ставка
от 23 907 ₽
Платеж в месяц
Расчёт носит информационный характер и не является публичной офертой
Предложите свою цену
3 800 000 ₽
43 678 ₽/м²















