Продается 3-комн. квартира, 60.9 м²
Россия, Тюменская область, Тобольск, 6-й микрорайон, 17А
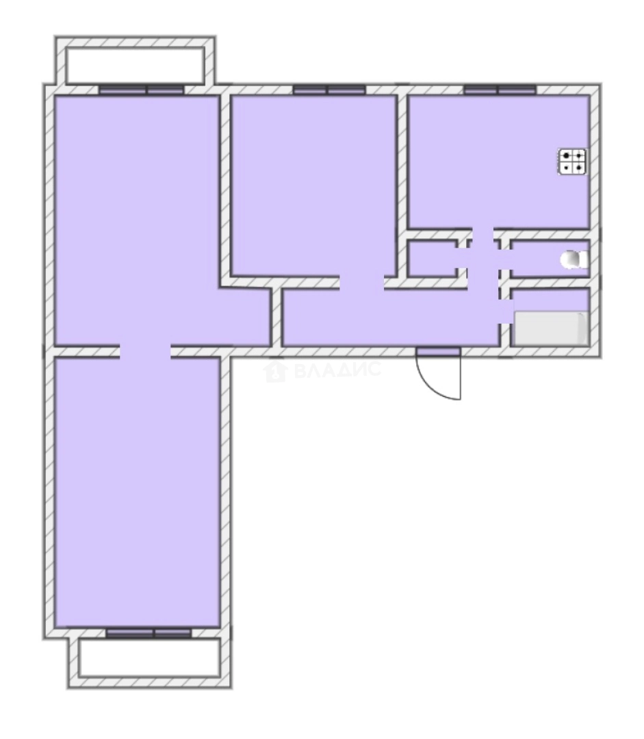
60.9 м²
Общая площадь
40 м²
Жилая площадь
7.2 м²
Площадь кухни
2 из 9
Этаж
Описание
О квартире
Общая площадь
60.9 м²
Жилая площадь
40 м²
Площадь кухни
7.2 м²
Площадь комнат
18+13+9 м²
Высота потолков
2.5 м
Этаж
2
Расположение квартиры
не угловая
Окна выходят
На улицу, Во двор
Раздельных санузлов
1
Ремонт
Косметический
О доме
Год постройки
1986
Этажность
9
Материал постройки
Панельный
Материал перекрытий
Ж/б плиты
Отопление
Центральное
Пассажирских лифтов
1
Расположение
Россия, Тюменская область, Тобольск, 6-й микрорайон, 17А
Ипотечный калькулятор
Заполните 1 анкету — получите предложения от десятков банков на специальных условиях
Программа ипотеки
Стоимость жилья, ₽
Первый взнос, ₽
Срок кредита
от 5.75%
Ставка
от 32 714 ₽
Платеж в месяц
Расчёт носит информационный характер и не является публичной офертой
Похожие объекты
Предложите свою цену
5 200 000 ₽
85 386 ₽/м²




































































































