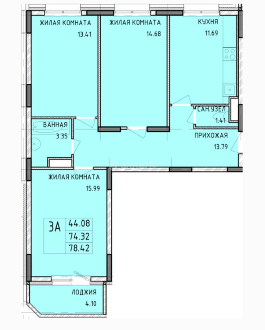
Продается 3-комн. квартира, 78.42 м²
Россия, Тула, Юго-Восточный микрорайон, 8
78.42 м²
Общая площадь
10 из 14
Этаж
Описание
Преимущества
🔥 Комплекс построен вблизи крупных магистралей города Тулы;
🔥 Развитая инфраструктура: транспорт, поликлиники, детские и школьные учреждения;
🔥 Удобные планировки;
🔥 Безопасное пространство на территории.
Придомовая территория
Детские площадки: Обустроены современные и безопасные детские площадки.
Озеленение: Устройство газонов и цветников.
Благоустройство территории: Обустроены зоны отдыха и прогулок, современная спортивная площадка с безопасным прорезиненным покрытием и спортивными тренажерами.
Паркинг: Многоуровневая парковка.
О квартире
Общая площадь
78.42 м²
Подъезд
1
Этаж
10
Окна выходят
На улицу
О доме
Год постройки
2023
Этажность
14
Количество подъездов
2
Материал постройки
Кирпичный
Материал перекрытий
Ж/б плиты
Отопление
Центральное
Пассажирских лифтов
1
Грузовых лифтов
1
Парковка
Многоуровневая
Расположение
Россия, Тула, Юго-Восточный микрорайон, 8
Ипотечный калькулятор
Заполните 1 анкету — получите предложения от десятков банков на специальных условиях
Программа ипотеки
Стоимость жилья, ₽
Первый взнос, ₽
Срок кредита
от 5.75%
Ставка
от 40 892 ₽
Платеж в месяц
Расчёт носит информационный характер и не является публичной офертой
Похожие объекты
Консультант по новостройкам
6 500 000 ₽
82 888 ₽/м²

















