Продается 2-комн. квартира, 42.5 м²
Россия, Республика Башкортостан, Уфа, улица Салавата, 13
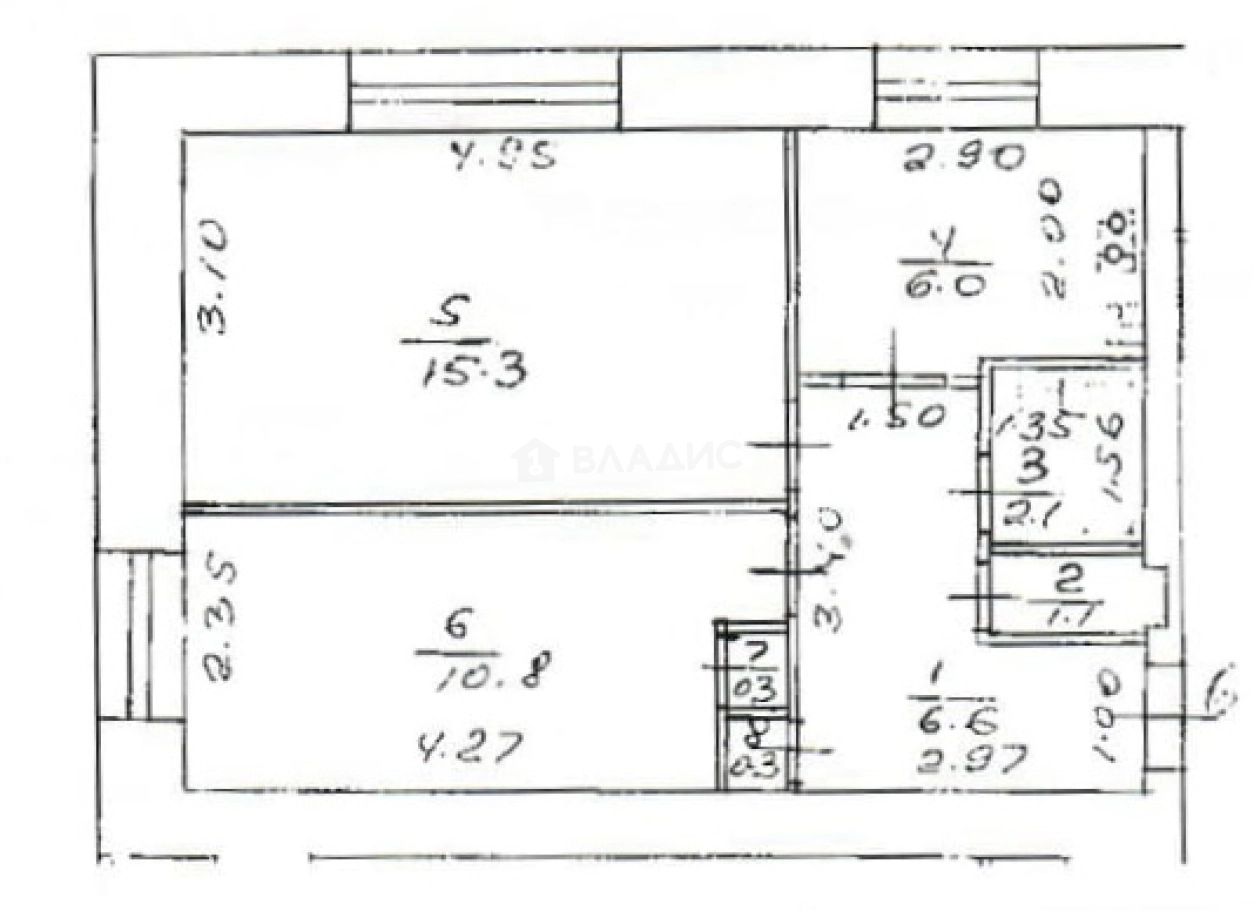
42.5 м²
Общая площадь
26.1 м²
Жилая площадь
6.6 м²
Площадь кухни
1 из 9
Этаж
Описание
Продам квартиру в парковой зоне в локации известной Софьюшкиной аллее 🌳 ☀️ Отделка в выполнена в светлых нейтральных тонах, поэтому в квартире ощущаешь себя легко и комфортно.
Благодаря тому, что стены дома из кирпича, в квартире хорошо сохраняется микроклимат: летом защита от перегрева, зимой - от морозов на улице.
Большой плюс в планировке - кухня почти квадратной формы, поэтому в ней просторно, даже если вся семья собирается за обедом.
Новый кухонный гарнитур остается новому собственнику ❇️
Для удобства хранения вещей в спальной комнате обустроена ниша ❇️
Соседи спокойные, тихие. Во дворе безопасно оставлять автомобиль.
Инфраструктура в районе развита на 5+:
✔️ Сетевые магазины
✔️ Детский сад 260
✔️Школа 14
✔️Почтовые отделения, МФЦ
✔️Лучшие университеты Уфы
Для прогулок:
Парк-сад имени Салавата Юлаева, парк имени Крупской, Софьюшкина аллея, Набережная реки Белая, в пешей доступности, дом-музей С.Т. Аксакова 👍
Изюминка локации - шикарнейший барбершоп с мастером от Бога ✨
Остановка транспорта в 5 минутах от дома.
Удобный и быстрый выезд на Проспект Салавата Юлаева, Оренбургский тракт.
В 20ти минутах езды аэропорт, ж/д вокзал.
Для дополнительной информации и записи на просмотр звоните!
Гарантируем безопасную сделку и юридическую поддержку ✨
О квартире
Общая площадь
42.5 м²
Жилая площадь
26.1 м²
Площадь кухни
6.6 м²
Площадь комнат
15.3+10.8 м²
Высота потолков
2.5 м
Подъезд
1
Этаж
1
Расположение квартиры
угловая
Окна выходят
На улицу, Во двор
Раздельных санузлов
2
О доме
Год постройки
1970
Этажность
9
Количество подъездов
1
Материал постройки
Кирпичный
Материал перекрытий
Ж/б плиты
Отопление
Центральное
Пассажирских лифтов
1
Парковка
Наземная
Расположение
Россия, Республика Башкортостан, Уфа, улица Салавата, 13
Ипотечный калькулятор
Заполните 1 анкету — получите предложения от десятков банков на специальных условиях
Программа ипотеки
Стоимость жилья, ₽
Первый взнос, ₽
Срок кредита
от 5.75%
Ставка
от 34 664 ₽
Платеж в месяц
Расчёт носит информационный характер и не является публичной офертой
Предложите свою цену
5 510 000 ₽
129 647 ₽/м²



































