Продается Недвижимость Свободного Назначения, 221 м²
Россия, Владимир, улица Гагарина, 1
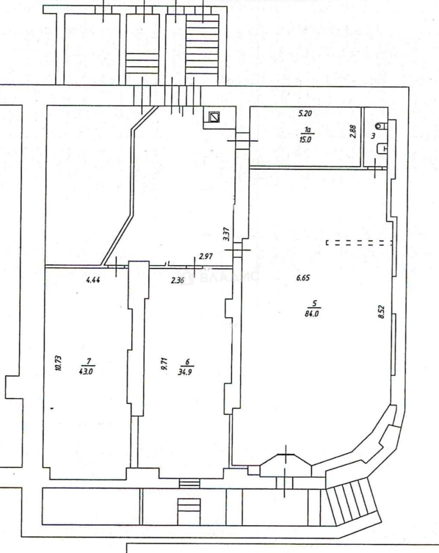
221 м²
Общая площадь
Отдельный
Вход в помещение
Свободный
Доступ в помещение
1 из 4
Этаж
Описание
Здание восточного крыла «Торговых Рядов» по адресу город Владимир улица Гагарина дом 1 было построено в стиле Неоклассицизма по заказу купцов Платонова И. И. и Ионова В. А. в 1913 году по проекту архитектора Жарова С. М..
Во времена СССР до 1945 года здесь размещался магазин «Круглый ГУМ», затем «Главунивермаг» Главное управление торговли города Владимира.
г. Владимира ул. Гагарина д.1, адрес этого помещения говорит сам за себя!
В самом сердце исторического центра!
Лучший пешеходный и автомобильный трафик, рядом остановки общественного транспорта, северные торговые ряды, рестораны KFC, Вкусно и Точка, торговый центр
Гагаринский, продуктовые магазины, пешеходные переходы.
Удобный подъезд, наличие парковки для разгрузки.
Собственный вход на центральную улицу Гагарина, наличие второго входа со двора для погрузки, разгрузки.
Наличие действующих договоров с арендаторами.
В части помещения уже более 20 лет расположена аптека.
Кофейня которая активно ведет свою деятельность, уже, год!
Возможность перепланировки, сегментирование помещения.
На данной площади идеально впишется предприятие общепита, компьютерный клуб, стоматологический центр, небольшая частная клиника и много другое...
Это и типично Питерский вариант общепита: кафе- бар, арт- кофе, кафе Zoom.
А также быстро, торговые площади, услуги,
всё на что хватит фантазии.
Проходимость и наличие туристического потока отличная.
В общем данное помещение можно использовать, как АРЕНДНЫЙ БИЗНЕС, так и, как под собственные нужды, рядом улицы: Большая Московская, Ильича, Ерофеевский спуск, 2-я Никольская, Никитская, Девическая и другие...
Об объекте
Общая площадь
221 м²
Этаж
1
Электрическая мощность
15 кВт
Раздельных санузлов
2
Ремонт
Косметический
Вход в помещение
Отдельный
Доступ в помещение
Свободный
Удобства
Интернет
Кондиционер
Вентиляция
О здании
Тип коммерции
Торговый центр
Год постройки
1913
Материал постройки
Кирпичный
Отопление
Центральное
Этажей в доме
4
Парковка
Наземная
Расположение
Россия, Владимир, улица Гагарина, 1
Ипотечный калькулятор
Заполните 1 анкету — получите предложения от десятков банков на специальных условиях
Программа ипотеки
Стоимость жилья, ₽
Первый взнос, ₽
Срок кредита
от 5.75%
Ставка
от 163 568 ₽
Платеж в месяц
Расчёт носит информационный характер и не является публичной офертой
Предложите свою цену
26 000 000 ₽
117 647 ₽/м²


























