Купить дом на улице Селецкий Вал в районе Октябрьский в Владимире
Россия, Владимир, улица Селецкий Вал, 9
106 м²
Площадь дома
12 сот
Площадь участка
Блочный
Материал постройки
1
Этажей
Описание
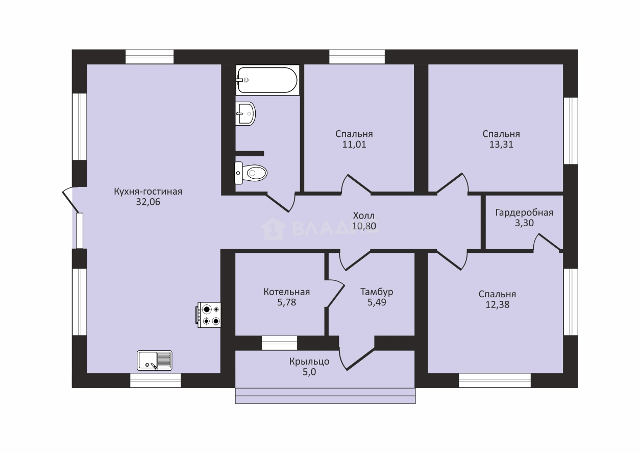
Дом общей площадью 106 кв. м. построен из качественного блочного материала, а перекрытия выполнены из ж/б плит. Высота потолков — 3 метра, что создаёт ощущение простора и свободы. Жилая площадь составляет 37 кв. м., а кухня — 32 кв. м., что идеально подходит для семейных ужинов и дружеских посиделок. Три комнаты площадью 13, 13 и 11 кв. м. позволяют организовать пространство с учётом потребностей всех членов семьи. Объект находится в стадии строительства.
На участке площадью 12 соток есть всё необходимое для комфортного проживания: водоснабжение (скважина), канализация будут подведены, а газ и электричество можно подвести. Дом подходит для круглогодичного проживания, а индивидуальный котёл обеспечивает эффективное отопление.
Особое внимание стоит уделить привлекательной цене, которая делает этот дом доступным для многих семей. Отличное соотношение цены и качества, а также удачная планировка делают этот объект недвижимости идеальным выбором для тех, кто ищет собственное жильё.
Возможно этот дом купить по семейной ипотеке 6 %.
Не упустите шанс стать владельцем этого уютного дома! Позвоните нам прямо сейчас, чтобы узнать больше и записаться на просмотр.
Мы гарантируем безопасную сделку и юридическую поддержку нашим клиентам. Поможем одобрить ипотеку с сниженной ставкой.
О доме
Год постройки
2025
Этажей в доме
1
Общая площадь
106 м²
Жилая площадь
37 м²
Площадь кухни
32 м²
Площадь комнат
13+13+11 м²
Материал постройки
Блочный
Материал перекрытий
Ж/б плиты
Материал кровли
Металлочерепица
Высота потолков
3 м
Об участке
Площадь участка
12 сот.
Статус участка
Индивидуальное жилищное строительство
Электричество
Есть
Газ
Есть
Водоснабжение
Есть
Канализация
Есть
Без благоустройства участка
Есть
Подъезд к участку
Щебенка
Расположение
Россия, Владимир, улица Селецкий Вал, 9
Ипотечный калькулятор
Заполните 1 анкету — получите предложения от десятков банков на специальных условиях
Программа ипотеки
Стоимость жилья, ₽
Первый взнос, ₽
Срок кредита
от 5.75%
Ставка
от 40 892 ₽
Платеж в месяц
Расчёт носит информационный характер и не является публичной офертой
Предложите свою цену
6 500 000 ₽
61 321 ₽/м²



































