Новое предложение
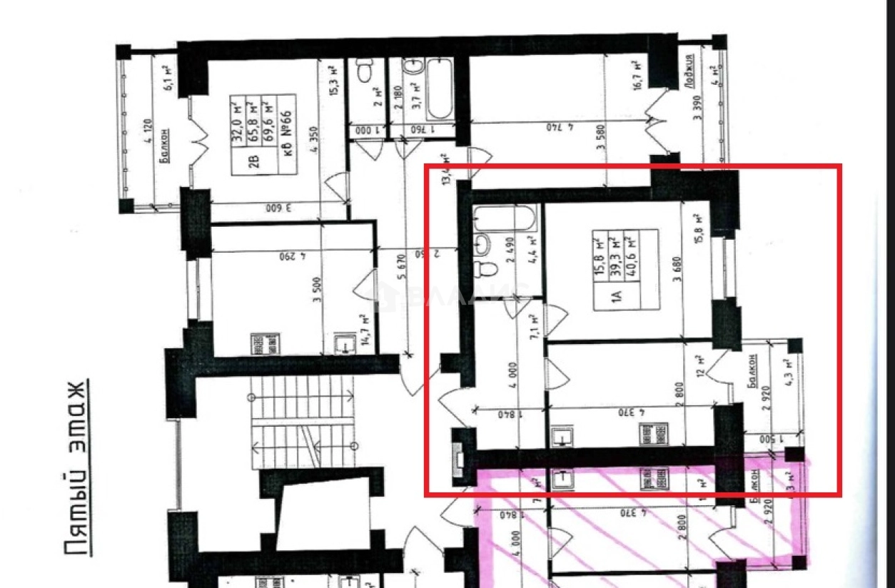
Продается 1-комн. квартира, 40.3 м²
Россия, Владимир, микрорайон Коммунар, Центральная улица, 17Б
40.3 м²
Общая площадь
16 м²
Жилая площадь
12 м²
Площадь кухни
7 из 8
Этаж
Описание
В продаже однокомнатная квартира в новом современном жилом комплексе 2022 года постройки.
Квартира с черновой строительной отделкой: стяжка пола, стояки горячего и холодного водоснабжения, радиаторы отопления, окна ПВХ, застекленные панорамные лоджии, временная входная дверь.
Кухня 12кв.м., комната 16 кв. м., просторный санузел, остекленная панорамой лоджия, вместительная прихожая, высокие потолки 2,75 м. Закрытая придомовая территория.
Дом расположен в непосредственной близости от исторического центра города, в шаговой доступности продовольственные магазины и супермаркеты, новая школа и детский сад, парковая зона и все объекты социального значения.
Возможны различные варианты оплаты, звоните, буду рад помочь с покупкой!
О квартире
Общая площадь
40.3 м²
Жилая площадь
16 м²
Площадь кухни
12 м²
Площадь комнат
16 м²
Высота потолков
2.75 м
Подъезд
4
Этаж
7
Расположение квартиры
не угловая
Окна выходят
На улицу
Совмещенных санузлов
1
О доме
Год постройки
2022
Этажность
8
Количество подъездов
1
Материал постройки
Кирпичный
Материал перекрытий
Ж/б плиты
Отопление
Центральное
Парковка
Наземная
Расположение
Россия, Владимир, микрорайон Коммунар, Центральная улица, 17Б
Ипотечный калькулятор
Заполните 1 анкету — получите предложения от десятков банков на специальных условиях
Программа ипотеки
Стоимость жилья, ₽
Первый взнос, ₽
Срок кредита
от 5.75%
Ставка
от 36 174 ₽
Платеж в месяц
Расчёт носит информационный характер и не является публичной офертой
Похожие объекты













1-комн. квартира, 40,3 м², 5/7 эт.














1-комн. квартира, 38,4 м², 4/6 эт.












1-комн. квартира, 39,8 м², 4/5 эт.





















1-комн. квартира, 41,4 м², 6/7 эт.
Предложите свою цену
5 750 000 ₽
142 680 ₽/м²





























































































