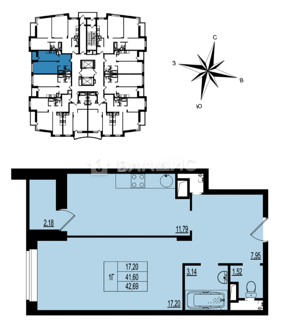
Продается 1-комн. квартира, 42.69 м²
Россия, Владимир, Всесвятская улица, 3к2
42.69 м²
Общая площадь
13 из 17
Этаж
Описание
О квартире
Общая площадь
42.69 м²
Подъезд
1
Этаж
13
Окна выходят
На улицу
Ремонт
Без отделки
О доме
Год постройки
2026
Этажность
17
Количество подъездов
1
Материал постройки
Кирпично-монолитный
Материал перекрытий
Монолитные
Отопление
Своя котельная
Пассажирских лифтов
1
Грузовых лифтов
1
Парковка
Наземная
Расположение
Россия, Владимир, Всесвятская улица, 3к2
Ипотечный калькулятор
Заполните 1 анкету — получите предложения от десятков банков на специальных условиях
Программа ипотеки
Стоимость жилья, ₽
Первый взнос, ₽
Срок кредита
от 5.75%
Ставка
от 27 663 ₽
Платеж в месяц
Расчёт носит информационный характер и не является публичной офертой
Похожие объекты
Консультант по новостройкам
4 397 070 ₽
103 000 ₽/м²






































