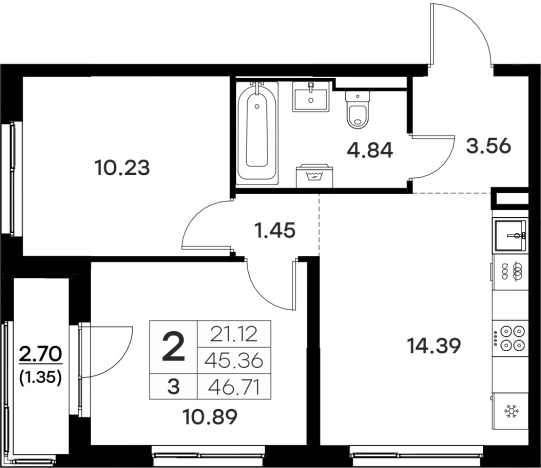
Продается 1-комн. квартира, 41.7 м²
Россия, Владимир, улица Чайковского, 7
41.7 м²
Общая площадь
2 из 18
Этаж
Описание
Корпус 3 - 3 подъезда, 1 подъезд - 17 этаже, 2 подъезд - 13 этажей, 3 подъезд - 10 этажей, всего 269 квартир, 1 этаж - нежилые помещения.В каждом подъезде 2 лифта, на 1 этаже располагаются колясочные
Выбор квартир от студий до 3-комнатных квартир
Квартиры сдаются без отделки, высота потолков 3-3.04 м
Лифты спускаются в подземный паркинг
Срок окончания строительства 4 квартал 2030 года
Использование эскроу-счетов,открываемых в Сбербанке
О квартире
Общая площадь
41.7 м²
Подъезд
1
Этаж
2
Окна выходят
На улицу
Ремонт
Без отделки
О доме
Год постройки
2030
Этажность
18
Количество подъездов
3
Материал постройки
Кирпично-монолитный
Материал перекрытий
Монолитные
Отопление
Своя котельная
Пассажирских лифтов
1
Грузовых лифтов
1
Парковка
Подземная
Расположение
Россия, Владимир, улица Чайковского, 7
Ипотечный калькулятор
Заполните 1 анкету — получите предложения от десятков банков на специальных условиях
Программа ипотеки
Стоимость жилья, ₽
Первый взнос, ₽
Срок кредита
от 5.75%
Ставка
от 40 138 ₽
Платеж в месяц
Расчёт носит информационный характер и не является публичной офертой
Похожие объекты
Консультант по новостройкам
6 380 100 ₽
153 000 ₽/м²



































































