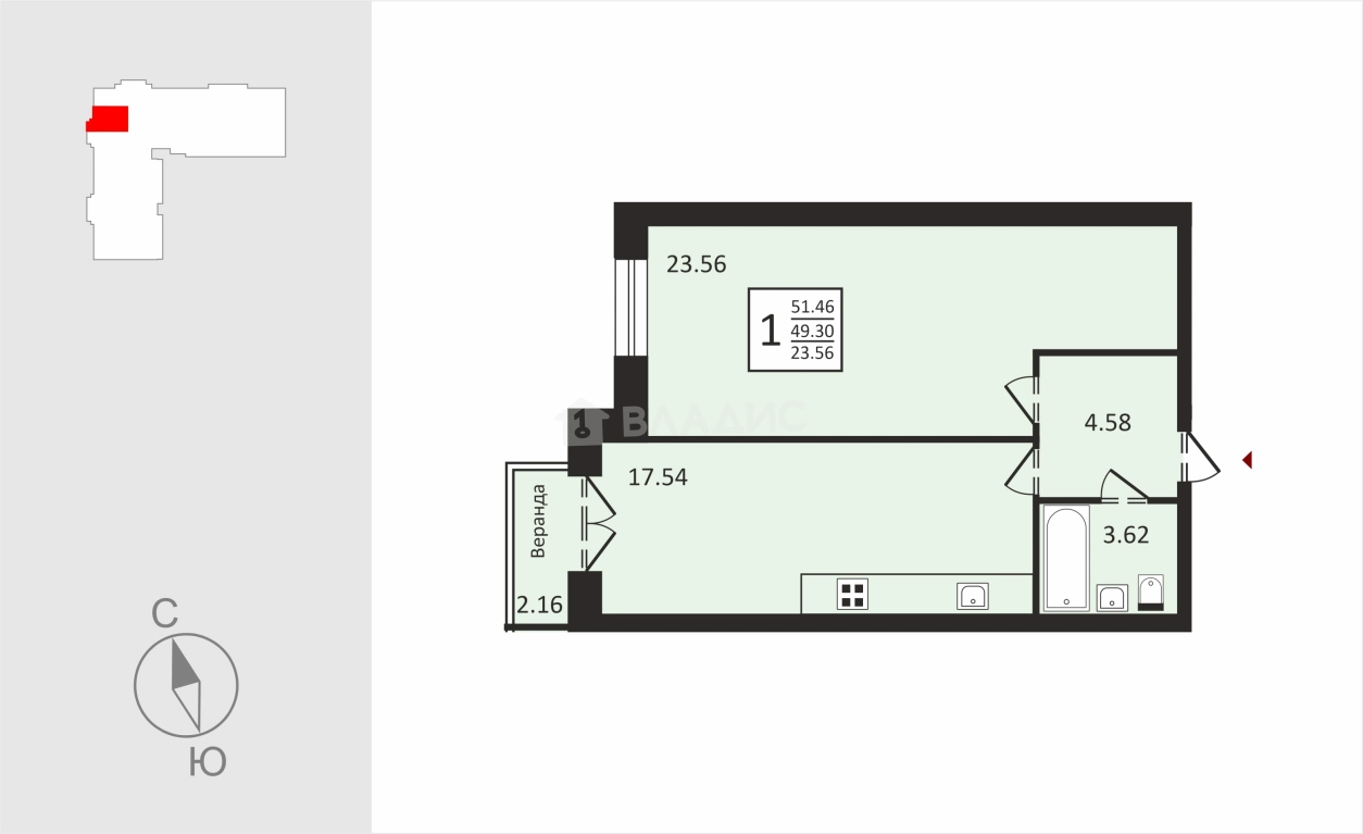
Продается 1-комн. квартира, 51.46 м²
Россия, Владимир, улица Батурина, 10
51.46 м²
Общая площадь
2 из 3
Этаж
Описание
- наружные и внутренние стены из кирпича, с внешним утеплением сенерджи,
- остекление веранд в едином стиле,
- паркинг вокруг дома.
- детская площадка, зона отдыха взрослого населения
-развитая инфраструктура: в шаговой доступности центральный рынок,школы, детские сады, парк, магазины, остановка общественного транспорта.
О квартире
Общая площадь
51.46 м²
Подъезд
2
Этаж
2
Окна выходят
На улицу
Ремонт
Без отделки
О доме
Год постройки
2025
Этажность
3
Количество подъездов
3
Материал постройки
Кирпичный
Материал перекрытий
Ж/б плиты
Отопление
Центральное
Парковка
Наземная
Расположение
Россия, Владимир, улица Батурина, 10
Ипотечный калькулятор
Заполните 1 анкету — получите предложения от десятков банков на специальных условиях
Программа ипотеки
Стоимость жилья, ₽
Первый взнос, ₽
Срок кредита
от 5.75%
Ставка
от 41 115 ₽
Платеж в месяц
Расчёт носит информационный характер и не является публичной офертой
Похожие объекты
Консультант по новостройкам
6 535 420 ₽
127 000 ₽/м²



























