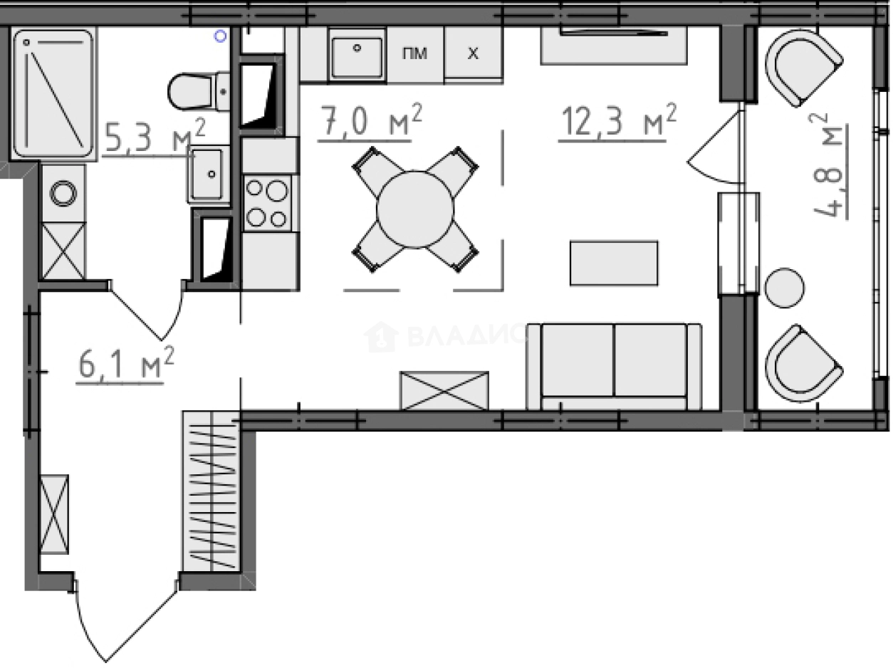
Продается Студия, 33.2 м²
Россия, Владимир, микрорайон Сновицы-Веризино
33.2 м²
Общая площадь
19.3 м²
Жилая площадь
6 из 9
Этаж
Описание
Новый детский сад, школу построят к 1 сентября 2025 года. Поблизости расположены крупные торговые центры Тандем, Глобус, Ивановские мануфактуры. В шаговой доступности, активно строится большой торговый комплекс нового формата “street retail” с развлекательной инфраструктурой «Веризино-Цвет-Сквер».
Квартиры будут сдаваться с предчистовой отделкой: механизированная стяжка пола, гипсовая штукатурка стен, электроразводка по квартире (доступые два варианта разводки на выбор), остекление лоджий, качественная входная дверь. Отделка не выполняется в сан.узлах и на лоджиях.
О квартире
Общая площадь
33.2 м²
Жилая площадь
19.3 м²
Этаж
6
Окна выходят
На улицу
Ремонт
White box
О доме
Год постройки
2027
Этажность
9
Количество подъездов
2
Материал постройки
Монолитный
Материал перекрытий
Монолитные
Отопление
Своя котельная
Грузовых лифтов
1
Парковка
Наземная
Расположение
Россия, Владимир, микрорайон Сновицы-Веризино
Ипотечный калькулятор
Заполните 1 анкету — получите предложения от десятков банков на специальных условиях
Программа ипотеки
Стоимость жилья, ₽
Первый взнос, ₽
Срок кредита
от 5.75%
Ставка
от 24 020 ₽
Платеж в месяц
Расчёт носит информационный характер и не является публичной офертой
Похожие объекты
Консультант по новостройкам
3 818 000 ₽
115 000 ₽/м²






















































