Продается 1-комн. квартира, 33.3 м²
Россия, Владимир, улица Соколова-Соколёнка, 23
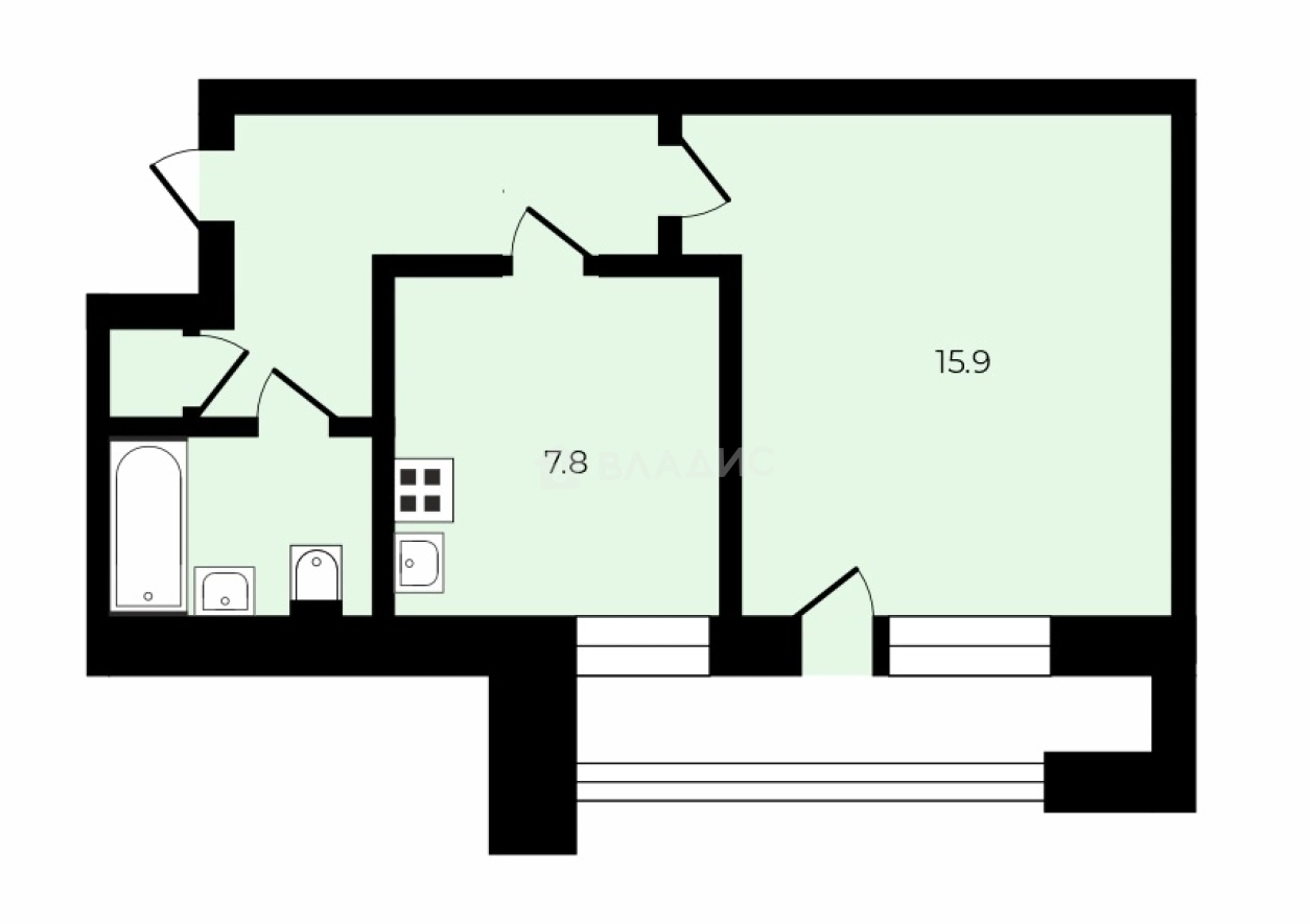
33.3 м²
Общая площадь
16 м²
Жилая площадь
7 м²
Площадь кухни
3 из 9
Этаж
Описание
Что вас ждёт:
идеальное состояние — никаких ремонтов, заезжайте и живите;
продуманная планировка: просторная прихожая, светлая квадратная комната, уютная утеплённая лоджия;
спокойный двор и вежливые соседи — атмосфера домашнего тепла.
Всё под рукой: школы, детские сады, магазины и остановки в пешей доступности. Удобное расположение рядом с ул. Комиссарова, Безыменского и Юбилейной делает жизнь ещё комфортнее.
Мебель и техника по договоренности.
Юридически чисто: один собственник, полная стоимость в договоре. Идеальный выбор для жизни или инвестиций!
О квартире
Общая площадь
33.3 м²
Жилая площадь
16 м²
Площадь кухни
7 м²
Площадь комнат
16 м²
Этаж
3
Расположение квартиры
не угловая
Окна выходят
На улицу
Совмещенных санузлов
1
Ремонт
Евро
Лоджия
Есть
О доме
Год постройки
1996
Этажность
9
Количество подъездов
1
Материал постройки
Кирпичный
Материал перекрытий
Ж/б плиты
Отопление
Центральное
Парковка
Наземная
Расположение
Россия, Владимир, улица Соколова-Соколёнка, 23
Ипотечный калькулятор
Заполните 1 анкету — получите предложения от десятков банков на специальных условиях
Программа ипотеки
Стоимость жилья, ₽
Первый взнос, ₽
Срок кредита
от 5.75%
Ставка
от 29 569 ₽
Платеж в месяц
Расчёт носит информационный характер и не является публичной офертой
Похожие объекты
Предложите свою цену
4 700 000 ₽
141 141 ₽/м²























































































































