Продается 3-комн. квартира, 75.5 м²
Россия, Владимир, улица Мира, 74
75.5 м²
Общая площадь
53 м²
Жилая площадь
9 м²
Площадь кухни
3 из 4
Этаж
Описание
Продаю 3-комнатную квартиру высокого габарита в кирпичном доме на ул. Мира, д. 74. Квартира расположена на 3 этаже 4-этажного дома. Дом с эстетическим фасадом расположен в самом удобном районе города, где много зелени летом.
Из главных достоинств дома - толстые стены, которые прекрасно сохраняют тепло и снижают шумность. Пешком легко попасть в центр города всего за 10 минут!
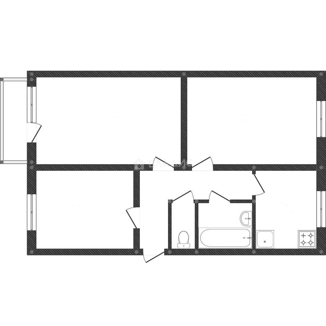
Площадь квартиры 75,5 кв. м., жилая площадь - 53 (20+19+14) кв.м. Кухня 9 кв.м. Высота - 3,2 м. Планировка - распашонка. После косметического ремонта эта квартира будет восхищать ваш взор!
Квартира в жилом состоянии: Окна - ПВХ, балкон застеклен. На полу кухни, коридора и комнат постелен линолеум. В квартире останется кухонный гарнитур.
Очень уютный подъезд и чистый ухоженный двор. Отличная УК, частая уборка территории (в том числе зимой) и подъезда. Прекрасные, тихие соседи!
Отличное месторасположение: для Вас всё в шаговой доступности. Очень развитая инфраструктура крупные сетевые магазины, школы, детсады, больницы, парковая зона, ДК Молодежи. Рядом с домом находится остановка.
Близлежащие улицы Усти-на-Лабе, Северная, Каманина, 1я Пионерская.
.
Взрослые собственники. Оперативный показ.
Вы нашли самое отличное предложение в этом районе по соотношению цена – качество! Звоните сейчас! Приезжайте сегодня!
О квартире
Общая площадь
75.5 м²
Жилая площадь
53 м²
Площадь кухни
9 м²
Площадь комнат
20+19+14 м²
Подъезд
2
Этаж
3
Расположение квартиры
не угловая
Окна выходят
На улицу, Во двор
Раздельных санузлов
1
Ремонт
Старый ремонт
О доме
Год постройки
1959
Этажность
4
Материал постройки
Кирпичный
Материал перекрытий
Ж/б плиты
Отопление
Центральное
Расположение
Россия, Владимир, улица Мира, 74
Ипотечный калькулятор
Заполните 1 анкету — получите предложения от десятков банков на специальных условиях
Программа ипотеки
Стоимость жилья, ₽
Первый взнос, ₽
Срок кредита
от 5.75%
Ставка
от 43 094 ₽
Платеж в месяц
Расчёт носит информационный характер и не является публичной офертой
Похожие объекты
Предложите свою цену
6 850 000 ₽
90 728 ₽/м²















































































































































































