Продается 2-комн. квартира, 66 м²
Россия, Владимир, улица Крайнова, 4
66 м²
Общая площадь
33.5 м²
Жилая площадь
12.7 м²
Площадь кухни
7 из 17
Этаж
Описание
Площадь указана без учета холодных помещений!
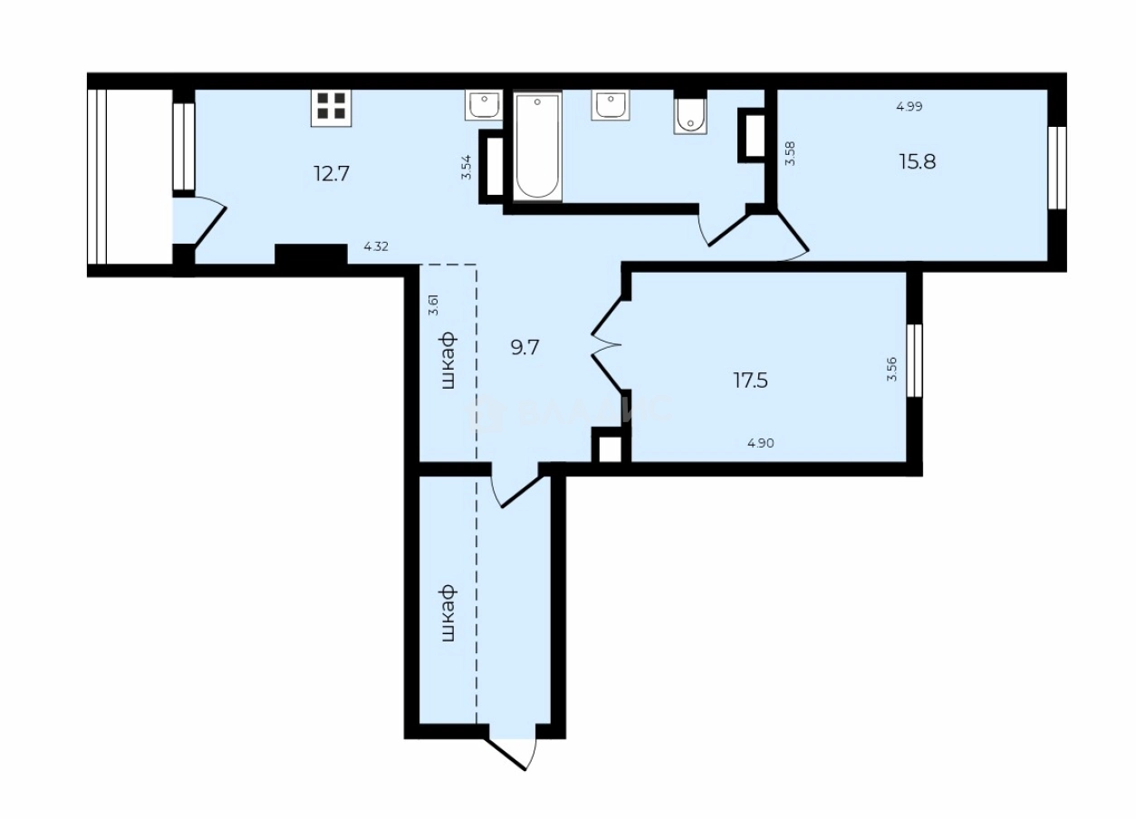
Квартира расположена на 7 этаже 17 этажного дома 2008 года постройки. Дом переменной этажности. Общая площадь — 66 кв. м, из которых 33.5 кв. м — жилая площадь. Две изолированные комнаты (17.5 и 16 кв. м), функциональная кухня - с выходом на лоджию (12.7 кв. м) и евроремонт, который позволит вам сразу заселиться
Отличные условия покупки: 2 взрослых собственника, без долгов и обременений! Вся сумма в Договоре!
Основные преимущества:
- Высокие потолки (2,8 м) воплощают ощущение простора и свободы в помещении.
- В доме предусмотрены как пассажирский, так и грузовой лифт, что делает перемещение по этажам удобным для всех жильцов.
- Смежный просторный с/у, с электрическими теплыми полами.
- На кухне также реализована система теплых полов
- Имеется остекленная лоджия, обшитая и утепленная. Дополнительное место в квартире
Расположение квартиры также нельзя не отметить: вы окажетесь в шаговой доступности от магазинов, аптек, кафе и общественного транспорта. Престижный район с развитой инфраструктурой идеально подойдёт для семей и молодых специалистов.
У дома закрытая парковка, машиноместа в подземном паркинге покупаются/арендуются отдельно. Хорошее расположение - вторая линия, рядом проспект Ленина, ул. Разина, Чапаева, Солнечная; в шаговой доступности магазины, остановки общественного транспорта, школы, детские сады.
Не упустите шанс стать владельцем этой замечательной квартиры и создать здесь свое пространство для счастья и уюта! Идеальное сочетание комфорта, локации и перспектив. Ваша новая жизнь начинается здесь — звоните, чтобы назначить просмотр!
О квартире
Общая площадь
66 м²
Жилая площадь
33.5 м²
Площадь кухни
12.7 м²
Площадь комнат
16+17.5 м²
Высота потолков
2.8 м
Подъезд
3
Этаж
7
Расположение квартиры
не угловая
Окна выходят
На улицу
Совмещенных санузлов
1
О доме
Год постройки
2008
Этажность
17
Количество подъездов
1
Материал постройки
Кирпичный
Материал перекрытий
Монолитные
Отопление
Центральное
Парковка
Подземная
Расположение
Россия, Владимир, улица Крайнова, 4
Ипотечный калькулятор
Заполните 1 анкету — получите предложения от десятков банков на специальных условиях
Программа ипотеки
Стоимость жилья, ₽
Первый взнос, ₽
Срок кредита
от 5.75%
Ставка
от 61 590 ₽
Платеж в месяц
Расчёт носит информационный характер и не является публичной офертой
Похожие объекты
Предложите свою цену
9 790 000 ₽
148 333 ₽/м²



































































































































































































