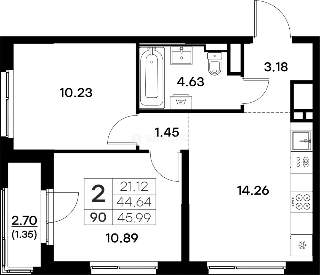
2-комн. квартира · 46.0 pм² · 9/17 эт.
Россия, Владимир
45.99 м²
Общая площадь
21.12 м²
Жилая площадь
14.26 м²
Площадь кухни
9 из 17
Этаж
Описание
GloraX Октябрьский — масштабный проект комфорт-класса, в 2-х минутах от ул. Горького. На территории 40 Га появятся 9 очередей жилого строительства, 3 детских садика, школа на 1500 учеников. Все квартиры сдаются с предчистовой отделкой white box.
На территории бывшего тракторного завода появятся центральная площадь, плейхабы и игровые площадки, а также благоустроенные бульвары и сквер! На внутренней территории мы реализуем концепцию «тихих дворов». Под озеленение выделено 7,31 Га под зелёные территории, что в 1,5 раза выше положенных нормативов.
О квартире
Общая площадь
45.99 м²
Жилая площадь
21.12 м²
Площадь кухни
14.26 м²
Подъезд
1
Этаж
9
Окна выходят
На улицу
Ремонт
White box
О доме
Год постройки
2027
Этажность
17
Количество подъездов
5
Материал постройки
Кирпично-монолитный
Материал перекрытий
Монолитные
Отопление
Центральное
Пассажирских лифтов
1
Грузовых лифтов
1
Парковка
Многоуровневая
Расположение
Россия, Владимир
Ипотечный калькулятор
Заполните 1 анкету — получите предложения от десятков банков на специальных условиях
Программа ипотеки
Стоимость жилья, ₽
Первый взнос, ₽
Срок кредита
от 5.75%
Ставка
от 44 164 ₽
Платеж в месяц
Расчёт носит информационный характер и не является публичной офертой
Похожие объекты
Консультант по новостройкам
7 019 999 ₽
152 642 ₽/м²




































