Продается Готовый Бизнес, 200 м²
Россия, Владимирская область, Суздальский район, муниципальное образование Боголюбовское, село Ославское, Прибрежная улица, 5
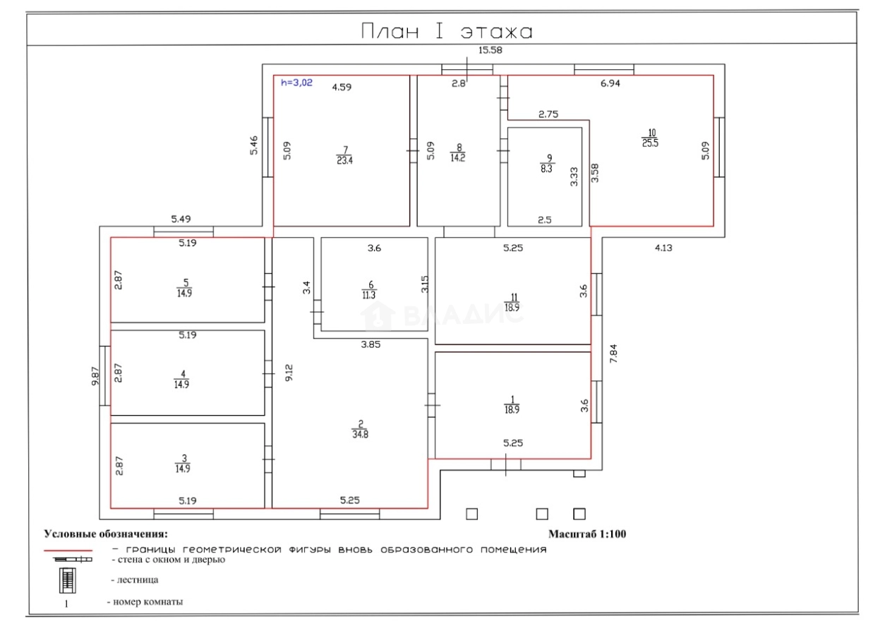
200 м²
Общая площадь
Отдельный
Вход в помещение
Свободный
Доступ в помещение
1 из 1
Этаж
Описание
на участке 13,5 соток.
с. Ославское ( рядом с.Новое, Боголюбово, Суромна), ул. Прибрежная.
Дом в живописном экологически чистом месте, рядом с береговой линией р. Нерль, в 10 км. от города Владимир. Район с развитой инфраструктурой, до остановки общественного транспорта 150 м маршрут №152, 150, школа и детский сад в с.Новое (1 км).
Дом с отделкой и коммуникациями.
В доме 2 отдельных входа и две половины.
В доме одна половина 120 кв.м - 3 комнаты + просторная кухня гостиная, коридор, сан.узел с ванной и душевой, бойлерная.
Во второй половине 80 кв.м - 2 комнаты + кухня гостинная, сан.узел, коридор.
В доме, есть все работающие коммуникации - газ. котел, канализация, вода из своего колодца, электричество, теплые полы, тарелка спутникового телевидения. Участок огорожен забором. Мебель в доме остается частично и бытовая техника.
Доход от 100 т.р в месяц, при долгосрочной аренде, можно сдавать по суточно, доход будет больше.
Все документы в порядке, дом оформлен как гостевой.
Данный объект можно приобрести за наличные средства или кредитные,
Звоните отвечу на все вопросы.
Об объекте
Общая площадь
200 м²
Этаж
1
Высота потолков
2.8 м
Электрическая мощность
15 кВт
Совмещенных санузлов
2
Ремонт
Евро
Вход в помещение
Отдельный
Доступ в помещение
Свободный
Удобства
Интернет
Вентиляция
Кухня
О здании
Тип коммерции
Отдельное здание
Год постройки
2017
Материал постройки
Блочный
Отопление
Индивидуальный котел
Этажей в доме
1
Парковка
Наземная
Расположение
Россия, Владимирская область, Суздальский район, муниципальное образование Боголюбовское, село Ославское, Прибрежная улица, 5
Ипотечный калькулятор
Заполните 1 анкету — получите предложения от десятков банков на специальных условиях
Программа ипотеки
Стоимость жилья, ₽
Первый взнос, ₽
Срок кредита
от 5.75%
Ставка
от 69 831 ₽
Платеж в месяц
Расчёт носит информационный характер и не является публичной офертой
Предложите свою цену
11 100 000 ₽
55 500 ₽/м²


















