Купить дом на улице Старосельская в Владимирской области
Россия, Владимирская область, Судогодский муниципальный округ, деревня Вольная Артёмовка, Старосельская улица
55.7 м²
Площадь дома
51 сот
Площадь участка
Деревянный
Материал постройки
1
Этажей
Описание
В продаже жилой просторный дом, который принадлежит одной семье долгие годы с момента постройки.
В доме: уютная терраса, кухня с русской печкой-лежанкой, столовая , большая комната и две небольшие которые отапливаются дополнительно печью "Голандкой"+ летняя комната, теплый с.у. (как в квартире)), высокая крыша, где можно оборудовать жилую мансарду. Есть два подпола для хранения сезонных припасов. Заведена центральная вода на кухню с выводом в автономную канализацию. Двор в прекрасном состоянии, новая крыша, множество мест для хранения, содержания домашнего скота.
На земельном участке 51 сотка, располагается баня, колодец, летняя кухня, теплицы. Участок с насаждениями плодово-ягодными, огорожен деревянным забором.
Участок заканчивается лесом богатым грибами, ягодами, ближайшие реки Судогда , Побойка.
Круглогодичный подъезд, близость дороги М12. В деревне есть действующий Храм, недалеко в п.Красное Эхо (7км.) есть школа, магазины, ФАП , ближайшие д. Данильцево, Дубенки, Прокунино, Бережки, Райки.
О доме
Год постройки
1958
Этажей в доме
1
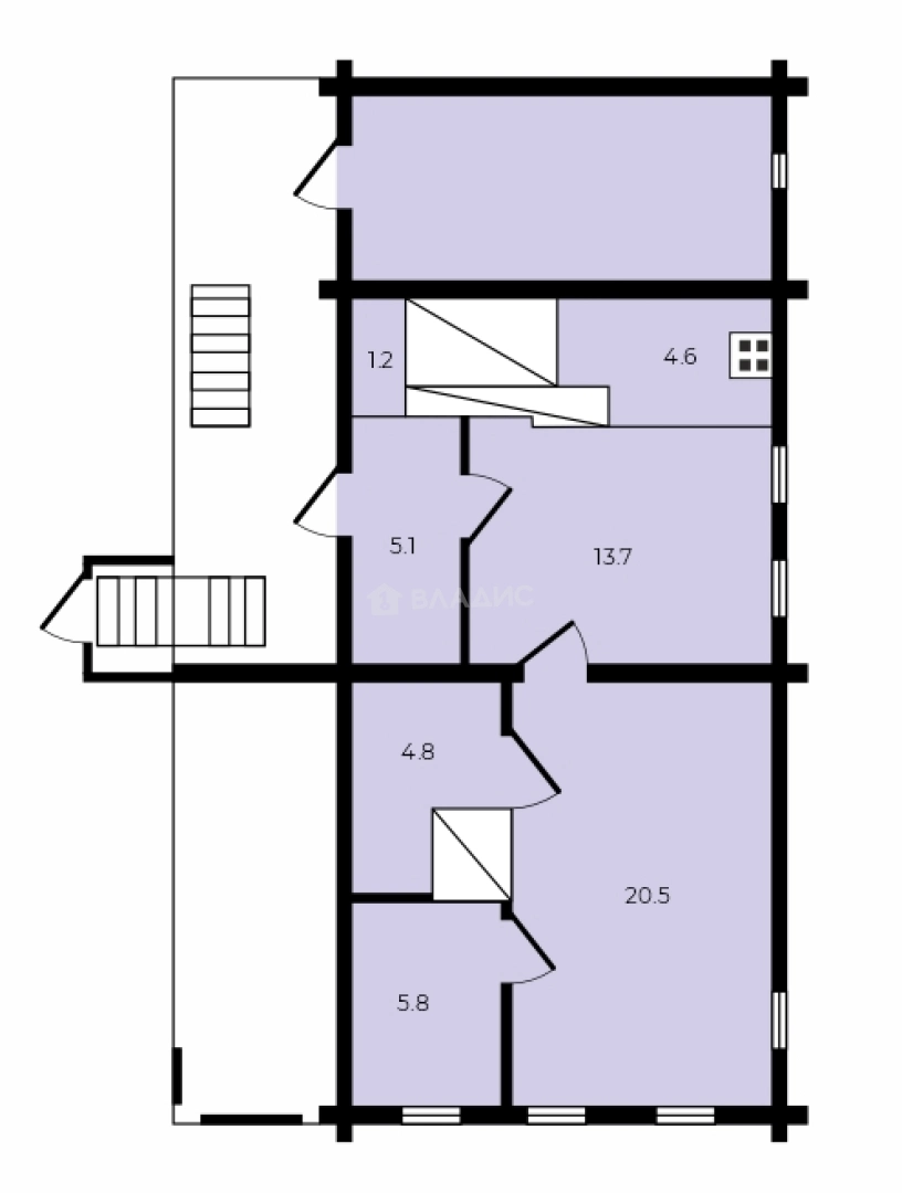
Общая площадь
55.7 м²
Жилая площадь
44.8 м²
Площадь кухни
4.6 м²
Площадь комнат
20,5+5,8+4,8+13,7 м²
Материал постройки
Деревянный
Материал перекрытий
Деревянные
Материал кровли
Шифер
Раздельных санузлов
1
Об участке
Площадь участка
51 сот.
Статус участка
Личное подсобное хозяйство
Электричество
Есть
Водоснабжение
Есть
Канализация
Есть
Баня
Есть
Подъезд к участку
Асфальт
Расположение
Россия, Владимирская область, Судогодский муниципальный округ, деревня Вольная Артёмовка, Старосельская улица
Ипотечный калькулятор
Заполните 1 анкету — получите предложения от десятков банков на специальных условиях
Программа ипотеки
Стоимость жилья, ₽
Первый взнос, ₽
Срок кредита
от 5.75%
Ставка
от 7 864 ₽
Платеж в месяц
Расчёт носит информационный характер и не является публичной офертой
Предложите свою цену
1 250 000 ₽
22 442 ₽/м²










































