Купить дом в районе Октябрьский в Владимирской области
Россия, городской округ Владимир, коттеджный посёлок Рождественское
73 м²
Площадь дома
8 сот
Площадь участка
Блочный
Материал постройки
1
Этажей
Описание
дом
КП "Рождественское"
общ.пл.73кв.м.
на участке 8 сот.
кадастровый номер участка
33:05:174110:1128
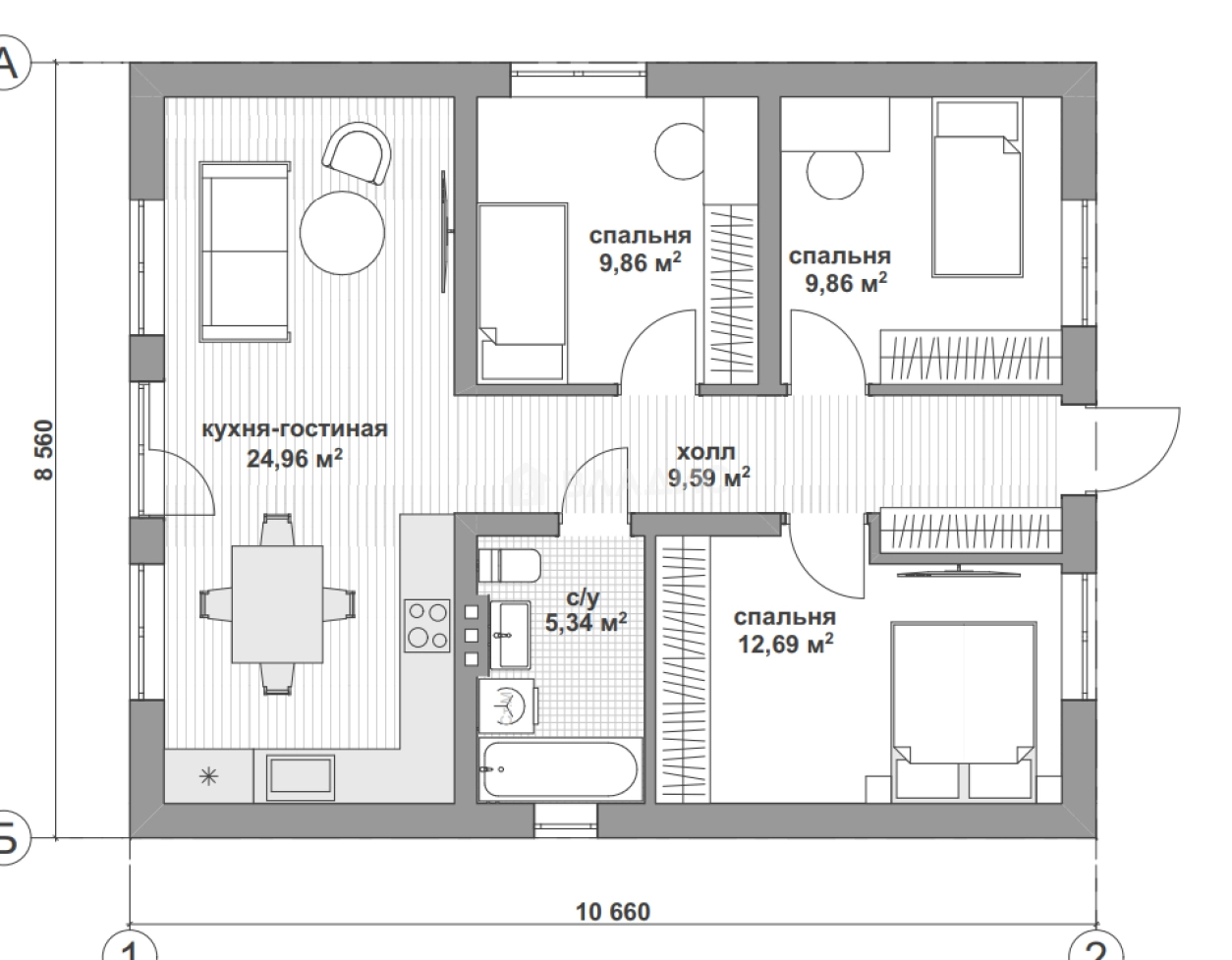
Общ.пл. дома 73 кв.м
кухня - гостинная 24.96 кв.м
3 спальни
Комплектация:
- Фундамент
- Отмостка бетонная,
утепление отмостки.
- Наружные стены.
- Несущие стены
- Окна ПВХ,
- Дверь входная
- Кровля-фальцевая кровля серого цвета,стропила - доска 50на 200,
утепление 200мм,кровельная мембрана,пароизоляция.
- Фасадная штукатурка " Короед" с отделкой по дереву по проекту
- свесы - софиты
- Кирпичный дымоход - выполняется кирпичной кладкой.
отдельно стоящие вет каналы выполняются пластиковыми трубами.
В стоимость входит участок земли.
Электричество:
Ввод электричества от столба в дом бронированным кабелем под землей ,не более 40 метров.
открытый монтаж в доме временного электрического шкафа с вводным автоматом и розеткой
на DIN рейке,заземление.
Водоснабжение:
Скважина на воду ( глубиной не более 40 метров) с подводом в дом ,не более 5 метров ,
адаптер,оголовок,глубинный насос,бак ДЖИ, краб 50 л.,труба ПНД,кран
Канализация:
Автономная очистительная станция ЭкоГранд (или аналог)
с переливным колодцем из трех ж\б колец, диаметром 1 метр,
ж/б крышка с композитным люком, с вводом в дом не более 5 м.
Поселок на 300 домов, 15 км от центра Владимира .
Съезд на южную объездную.
Автобусная остановка в 7 минутах ходьбы.
Подходит под " Семейную ипотеку",
помощь в оформлении.
По всем интересующим вопросам звоните, с удовольствием отвечу.
О доме
Год постройки
2024
Этажей в доме
1
Общая площадь
73 м²
Жилая площадь
32.41 м²
Площадь кухни
24.96 м²
Площадь комнат
9,86+9,86+12.69 м²
Материал постройки
Блочный
Материал перекрытий
Ж/б плиты
Материал кровли
Металлочерепица
Совмещенных санузлов
1
Об участке
Площадь участка
8 сот.
Статус участка
Индивидуальное жилищное строительство
Электричество
Есть
Газ
Есть
Водоснабжение
Есть
Канализация
Есть
Без благоустройства участка
Есть
Подъезд к участку
Грунтовка
Расположение
Россия, городской округ Владимир, коттеджный посёлок Рождественское
Ипотечный калькулятор
Заполните 1 анкету — получите предложения от десятков банков на специальных условиях
Программа ипотеки
Стоимость жилья, ₽
Первый взнос, ₽
Срок кредита
от 5.75%
Ставка
от 38 716 ₽
Платеж в месяц
Расчёт носит информационный характер и не является публичной офертой
Похожие объекты
Предложите свою цену
6 154 000 ₽
84 301 ₽/м²


















































