Купить дом на улице Сельская в Владимирской области
Россия, Владимирская область, Собинский муниципальный округ, село Бабаево, Сельская улица, 7
160 м²
Площадь дома
10.1 сот
Площадь участка
Блочный
Материал постройки
2
Этажей
Описание
Расположен в 30 минутах от города Владимир и в 10 минутах от г. Лакинск на участке 10,1 соток. Материал строительства: газоблок, облицовка кирпич, крыша мягкая кровля, отопление индивидуальный газовый котел. На первом этажи везде водяные теплые полы.
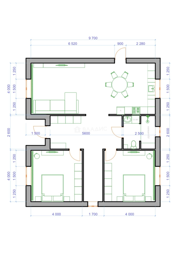
Площадь дома 160 кв. м, 2 этажа :
• Просторная кухня-гостиная площадью 40 кв. м — идеальное место для семейных встреч и праздников.
• Две уютные спальни для комфортного проживания.
• Второй этаж представляет собой единое пространство площадью 60 кв. м — возможность для создания дополнительной зоны отдыха или рабочего кабинета.
Первый этаж полностью отремонтирован(межкомнатные двери установлены)!
Участок ровный, правильной формы 27 метров по фасаду и 38 метров в длину — отличное место для создания сада или зоны для отдыха.
Дополнительные вопросы и условия покупки по телефону.
О доме
Год постройки
2023
Этажей в доме
2
Общая площадь
160 м²
Жилая площадь
96 м²
Площадь кухни
40 м²
Площадь комнат
18+18+60 м²
Материал постройки
Блочный
Материал перекрытий
Деревянные
Материал кровли
Мягкая черепица
Совмещенных санузлов
1
Об участке
Площадь участка
10.1 сот.
Статус участка
Индивидуальное жилищное строительство
Электричество
Есть
Газ
Есть
Водоснабжение
Есть
Без благоустройства участка
Есть
Расположение
Россия, Владимирская область, Собинский муниципальный округ, село Бабаево, Сельская улица, 7
Ипотечный калькулятор
Заполните 1 анкету — получите предложения от десятков банков на специальных условиях
Программа ипотеки
Стоимость жилья, ₽
Первый взнос, ₽
Срок кредита
от 5.75%
Ставка
от 42 780 ₽
Платеж в месяц
Расчёт носит информационный характер и не является публичной офертой
Предложите свою цену
6 800 000 ₽
42 500 ₽/м²







































