Купить дом на улице Большая Рахмановская в районе Октябрьский в Владимирской области
Россия, городской округ Владимир, деревня Уварово, Большая Рахмановская улица, 11
157.1 м²
Площадь дома
15 сот
Площадь участка
Блочный
Материал постройки
2
Этажей
Описание
Площадь участка составляет 15 соток, что делает этот дом отличным выбором для садоводства или создания уютного уголка для отдыха на свежем воздухе. Электричество и индивидуальный котел отопления обеспечивают комфорт в любое время года. Водоснабжение осуществляется через скважину, что исключает зависимость от централизованных систем.
Дом построен из качественных материалов: блочные стены, ж/б перекрытия и мягкая черепица на крыше гарантируют надёжность и долгий срок эксплуатации. Однако, стоит отметить, что отделка отсутствует, что открывает вам свободу реализовать свой дизайнерский замысел.
Расположение дома на Большой Рахмановской улице обеспечивает хорошую транспортную доступность и развитую инфраструктуру рядом. Окружающая природа идеально подходит для семейного отдыха и прогулок, а также создаёт приятные условия для жизни вдали от городской суеты.
Не упустите возможность стать владельцем этого привлекательного объекта. Позвоните нам прямо сейчас, чтобы договориться о просмотре! Мы гарантируем безопасную сделку и юридическую поддержку нашим Клиентам. Поможем одобрить ипотеку с сниженной ставкой.
О доме
Год постройки
2024
Этажей в доме
2
Общая площадь
157.1 м²
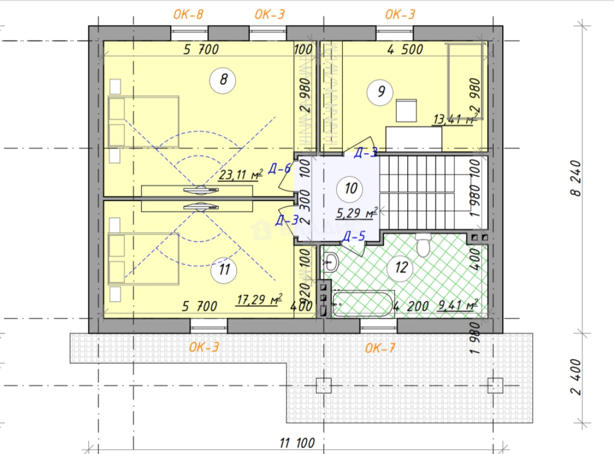
Жилая площадь
68 м²
Площадь кухни
40 м²
Площадь комнат
12+24+18+14 м²
Материал постройки
Блочный
Материал перекрытий
Ж/б плиты
Материал кровли
Мягкая черепица
Высота потолков
28 м
Об участке
Площадь участка
15 сот.
Статус участка
Индивидуальное жилищное строительство
Электричество
Есть
Без благоустройства участка
Есть
Подъезд к участку
Щебенка
Расположение
Россия, городской округ Владимир, деревня Уварово, Большая Рахмановская улица, 11
Ипотечный калькулятор
Заполните 1 анкету — получите предложения от десятков банков на специальных условиях
Программа ипотеки
Стоимость жилья, ₽
Первый взнос, ₽
Срок кредита
от 5.75%
Ставка
от 52 216 ₽
Платеж в месяц
Расчёт носит информационный характер и не является публичной офертой
Предложите свою цену
8 300 000 ₽
52 833 ₽/м²























