Купить дом на улице Слободская в Владимирской области
Россия, Владимирская область, Суздальский район, муниципальное образование Новоалександровское, деревня Бородино, Слободская улица, 8
290 м²
Площадь дома
57.42 сот
Площадь участка
Кирпичный
Материал постройки
2
Этажей
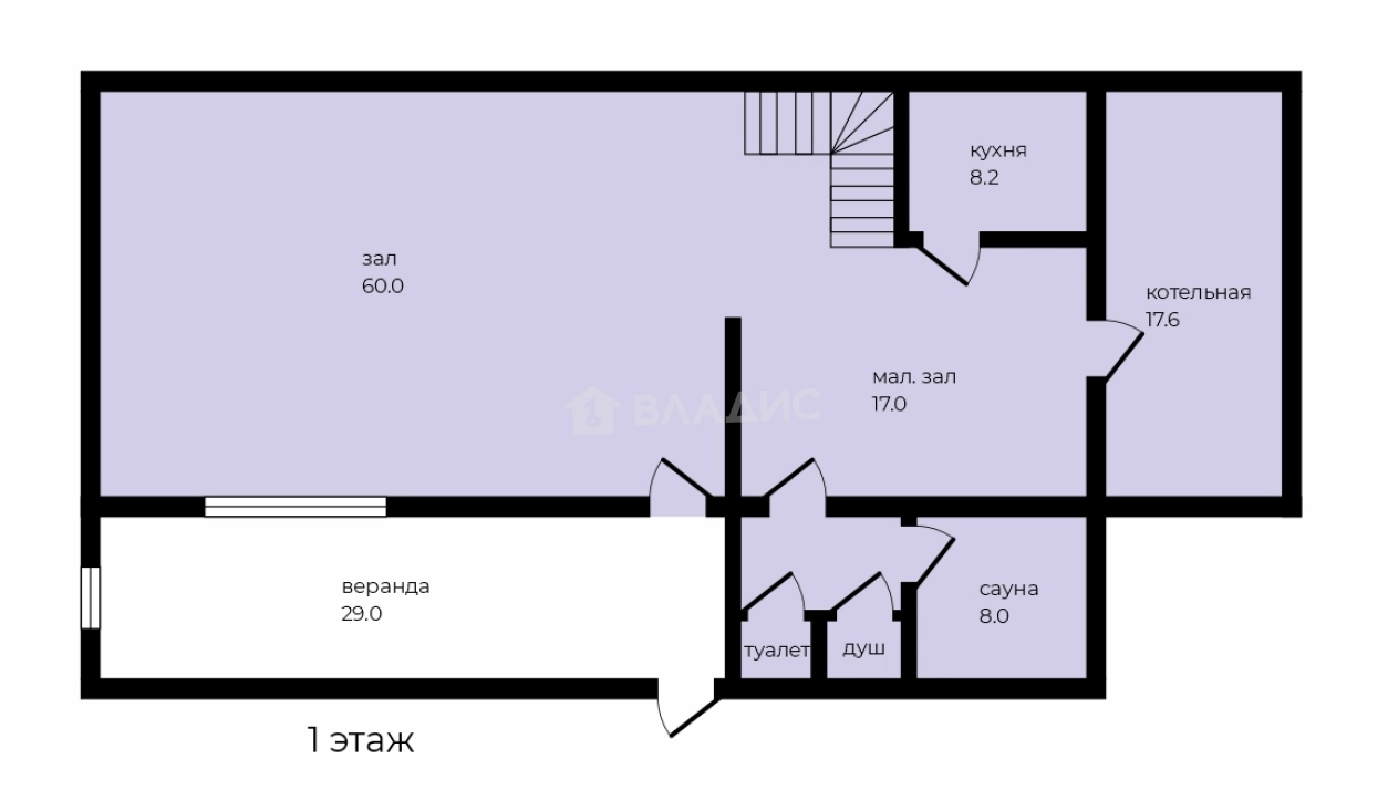
Описание
Пoтрясающий дoм в деревне Бородино ждет вас!
Живописная природа и чистый воздух,
- уютный зал для отдыха с живым огнём ,
- 2 душевые и 2 туалета,
- площадка с крытым мангалом, казан,
- кухня со всем необходимым оборудованием,
- просторная детская игровая зона,
- 8 жилых комнат спален с возможностью объединения,
В доме подведена питьевая колодезная вода. Всего на территории две скважины, установлена мощная накопительная система водоснабжения и система фильтрации, двухконтурный газовый котел.
На территории
- волейбольная площадка,
- уличная купель с подогревом (чан)
- мастерская 130 метров,
- мангальный домик,
- утепленная бытовка , а также территория подготовленная под пруд площадью 1500 кв.м
- вместительная сауна на дровах
Этот дом — идеальное сочетание комфорта, функциональности и природной красоты, создающее все условия для счастливой загородной жизни.
Ухоженный участок богат хвойными насаждениями (туи, ели), декоративными кустарниками.
Большое преимущество - территория с насаждениями, близость туристических центров, до Владимира 12 км, до Суздаля 43 км, до трассы М-12 всего 27 км, дают возможность для организации базы отдыха или туристической базы для летнего и зимнего отдыха, деревня находится в живописном месте в окружении лесов и лугов.
Дом полностью укомплектован, новым собственникам остается мебель и бытовая техника.
Покупка данного дома, возможна как в ипотеку, так и за наличные средства. Рассматриваем все виды оплаты.
Мы гарантируем безопасную сделку и юридическую поддержку нашим клиентам.
О доме
Год постройки
2010
Этажей в доме
2
Общая площадь
290 м²
Жилая площадь
158 м²
Площадь кухни
8 м²
Площадь комнат
17+60+8+8+ 8+8+8+8+8+8+17 м²
Материал постройки
Кирпичный
Материал перекрытий
Деревянные
Материал кровли
Металлочерепица
Высота потолков
2.7 м
Об участке
Площадь участка
57.42 сот.
Статус участка
Личное подсобное хозяйство
Электричество
Есть
Газ
Есть
Водоснабжение
Есть
Канализация
Есть
Бассейн
Есть
Подъезд к участку
Щебенка
Расположение
Россия, Владимирская область, Суздальский район, муниципальное образование Новоалександровское, деревня Бородино, Слободская улица, 8
Ипотечный калькулятор
Заполните 1 анкету — получите предложения от десятков банков на специальных условиях
Программа ипотеки
Стоимость жилья, ₽
Первый взнос, ₽
Срок кредита
от 5.75%
Ставка
от 157 214 ₽
Платеж в месяц
Расчёт носит информационный характер и не является публичной офертой
Предложите свою цену
24 990 000 ₽
86 172 ₽/м²


















































