Купить дом в Владимирской области
Россия, Владимирская область, Ковровский район, муниципальное образование Малыгинское, деревня Авдотьино
90 м²
Площадь дома
19.8 сот
Площадь участка
Блочный
Материал постройки
1
Этажей
Описание
на земельном участке
19 соток.
кадастровый номер участка 33:07:000136:380
деревня Авдотьино,
15 км от Коврова.
Прекрасное живописное место.
До деревни ведет заасфальтированная дорога.
К участку подведено электричество, на ближайшее время запланирована газификация.
На данном участке ,можно построить дом с проектом от подрядчика.
Дом будет построен из утепленного керамического блока или газоблока
на Ваш выбор,
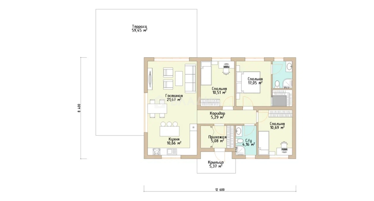
3 изолированные комнаты и
кухня гостиная 32,33 кв.м,
два совмещенных санузла, а так же помещение для котельной.
на железобетонной плите 300 мм.,
есть бетонная отмостка, кровля металлочерепица,
фасад дома отделан короедом.
Окна 58 профиль, входная утепленная дверь.
По желанию возможно заказать внутреннюю
отделку дома и полную разводку всех коммуникаций,
скважина ,септик.
По всем дополнительно интересующим вопросам с удовольствием отвечу по телефону.
О доме
Год постройки
2025
Этажей в доме
1
Общая площадь
90 м²
Жилая площадь
38.7 м²
Площадь кухни
32.33 м²
Площадь комнат
10,51+17,5+10,69 м²
Материал постройки
Блочный
Материал перекрытий
Деревянные
Материал кровли
Железо
Высота потолков
4 м
Об участке
Площадь участка
19.8 сот.
Статус участка
Личное подсобное хозяйство
Электричество
Есть
Без благоустройства участка
Есть
Подъезд к участку
Грунтовка
Расположение
Россия, Владимирская область, Ковровский район, муниципальное образование Малыгинское, деревня Авдотьино
Ипотечный калькулятор
Заполните 1 анкету — получите предложения от десятков банков на специальных условиях
Программа ипотеки
Стоимость жилья, ₽
Первый взнос, ₽
Срок кредита
от 5.75%
Ставка
от 29 380 ₽
Платеж в месяц
Расчёт носит информационный характер и не является публичной офертой
Предложите свою цену
4 670 000 ₽
51 889 ₽/м²



