Купить дом на улице Малая Уваровская в районе Октябрьский в Владимирской области
Россия, городской округ Владимир, деревня Уварово, Малая Уваровская улица, 17
117.2 м²
Площадь дома
13.9 сот
Площадь участка
Блочный
Материал постройки
1
Этажей
Описание
Дом 2024 года постройки, блочный.
Фундамент - монолитная плита, крыша - металлочерепица.
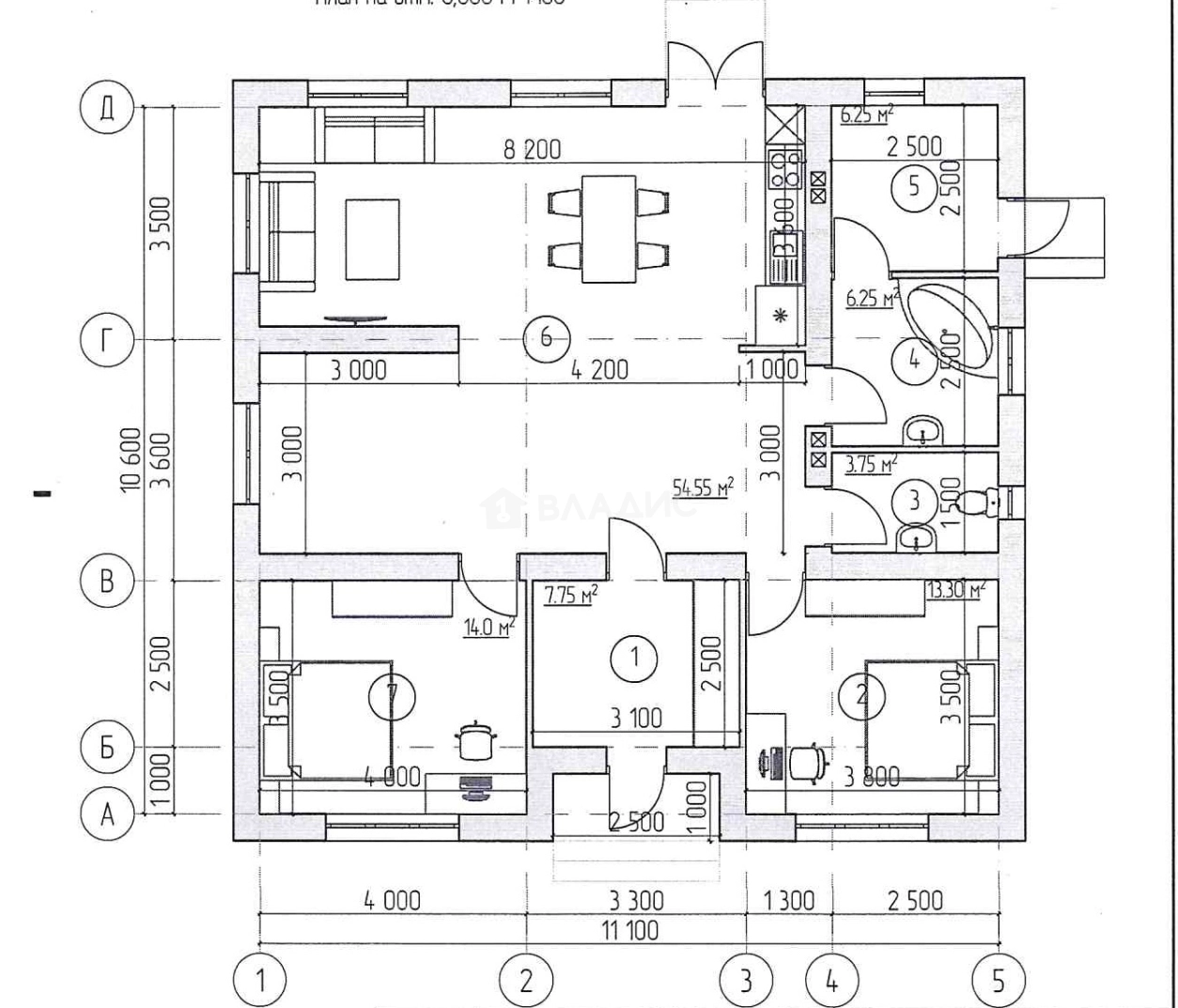
Отличная планировка - просторная кухня-гостиная, две спальни, с/у, котельная. Одноэтажный дом площадью 117,2 м кв является оптимальным выбором для постоянного проживания семьи из 3-5 человек.
Электричество заведено в дом, вода - колодец. Газификация населенного пункта - 2024 год.
Отличное местоположение дома.
В микрорайоне магазин, родник, озеро, рядом лес. Регулярное автобусное сообщение.
Рассмотрим продажу с использованием различных ипотечных программ, сертификатов.
О доме
Год постройки
2024
Этажей в доме
1
Общая площадь
117.2 м²
Жилая площадь
27.3 м²
Площадь кухни
54.5 м²
Площадь комнат
27,3 м²
Материал постройки
Блочный
Материал перекрытий
Ж/б плиты
Материал кровли
Металлочерепица
Раздельных санузлов
1
Об участке
Площадь участка
13.9 сот.
Статус участка
Индивидуальное жилищное строительство
Электричество
Есть
Водоснабжение
Есть
Канализация
Есть
Без благоустройства участка
Есть
Подъезд к участку
Грунтовка
Расположение
Россия, городской округ Владимир, деревня Уварово, Малая Уваровская улица, 17
Ипотечный калькулятор
Заполните 1 анкету — получите предложения от десятков банков на специальных условиях
Программа ипотеки
Стоимость жилья, ₽
Первый взнос, ₽
Срок кредита
от 5.75%
Ставка
от 51 902 ₽
Платеж в месяц
Расчёт носит информационный характер и не является публичной офертой
Похожие объекты













































Дом, 126 м², 8,7 сот.













































Дом, 115 м², 8,0 сот.













































Дом, 125 м², 8,0 сот.
Предложите свою цену
8 250 000 ₽
70 392 ₽/м²


























































