Купить дом на улице Молодёжная в Владимирской области
Россия, Владимирская область, Суздальский район, муниципальное образование Новоалександровское, село Богослово, Молодёжная улица, 13Б
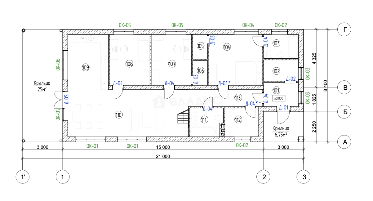
232 м²
Площадь дома
6 сот
Площадь участка
Газобетонный блок
Материал постройки
2
Этажей
Описание
Что внутри дома
Мы позаботились обо всём заранее: подведён газ и электричество, чтобы вам было комфортно круглый год. Асфальтовая дорога прямо до ваших ворот позволит легко добраться даже зимой. Остаётся лишь выбрать удобный маршрут и наслаждаться поездкой!
Особенности конструкции
Хотите жить в доме, который прослужит долго и надёжно? Мы предлагаем уникальный проект с использованием современных технологий:
Фундамент — монолитная железобетонная плита, способная выдержать любые погодные условия.
Стены выполнены из качественного газобетона, обеспечивающего отличную теплоизоляцию и звукоизоляцию.
Французское остекление с профилями Veka Softline 70 и ламинатом цвета «антрацит» придаст вашему жилищу особый шарм и элегантность.
Крыша покрыта прочной ПВХ-мембраной, защищающей вас от непогоды долгие годы.
Контроль качества
Наш приоритет — ваша безопасность и удовлетворение. Именно поэтому вам предоставлена гарантия на пять лет, а все этапы строительства контролирует проверенное бюро строительного контроля
Теперь вы знаете, почему наш новый дом в селе Богослово станет вашим идеальным выбором для комфортного проживания! Присоединяйтесь к числу счастливых обладателей собственного уголка спокойствия и гармонии Возможна покупка с использованием льготной ипотеки через Сбербанк или Россельхозбанк.
О доме
Год постройки
2025
Этажей в доме
2
Общая площадь
232 м²
Жилая площадь
42 м²
Площадь кухни
44.36 м²
Материал постройки
Газобетонный блок
Материал перекрытий
Деревянные
Материал кровли
Профнастил
Совмещенных санузлов
2
Отопление
Индивидуальный котел
Об участке
Площадь участка
6 сот.
Статус участка
Личное подсобное хозяйство
Электричество
Есть
Газ
Есть
Водоснабжение
Есть
Без благоустройства участка
Есть
Подъезд к участку
Асфальт
Расположение
Россия, Владимирская область, Суздальский район, муниципальное образование Новоалександровское, село Богослово, Молодёжная улица, 13Б
Ипотечный калькулятор
Заполните 1 анкету — получите предложения от десятков банков на специальных условиях
Программа ипотеки
Стоимость жилья, ₽
Первый взнос, ₽
Срок кредита
от 5.75%
Ставка
от 89 963 ₽
Платеж в месяц
Расчёт носит информационный характер и не является публичной офертой
Похожие объекты














































Дом, 243 м², 24 сот.






























Дом, 221 м², 10,5 сот.
Предложите свою цену
14 300 000 ₽
61 638 ₽/м²






































































































