Купить дом на улице Лесная в районе Октябрьский в Владимирской области
Россия, городской округ Владимир, деревня Злобино, Лесная улица
143 м²
Площадь дома
10.21 сот
Площадь участка
Блочный
Материал постройки
2
Этажей
Описание
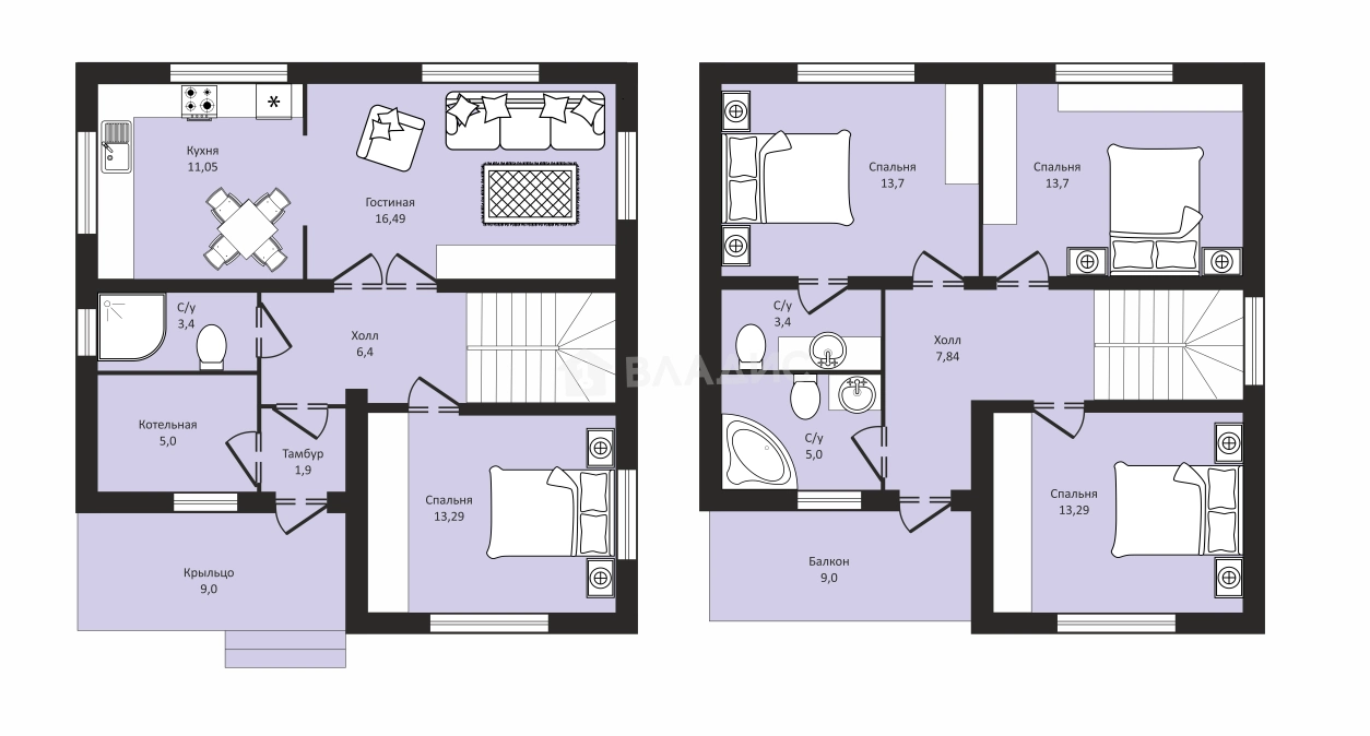
Двухэтажный дом построен из газобетонных блоков с железобетонными перекрытиями в доме 4 спальни по 13 кв.м., кухня гостиная 30кВ.м, 2 гостевых сан узла, а так же один санузел в мастер спальне, помещений для котельной 5 кв.м. в котором так же свободно разместится стиральная машина и сушилка для белья.
Дом построен на железобетонной плите 300 мм., есть бетонная отмостка, кровля металлочерепица, по Вашему желанию фасад дома может быть отделан штукатуркой или короедом. Окна 58 профиль, входная утепленная дверь.
Скважина ,септик, в 2024 году планируется газификация поселка.
Участок без перепада, 10,58 соток
Поселок на 300 домов, 15 км от цента Владимира . Съезд на южную объездную. Автобусная остановка в 7 минутах ходьбы.
По всем интересующим вопросам звоните с удовольствием отвечу.
О доме
Год постройки
2023
Этажей в доме
2
Общая площадь
143 м²
Жилая площадь
53.96 м²
Площадь кухни
27.54 м²
Площадь комнат
13,29+13,7+13,7+13,27 м²
Материал постройки
Блочный
Материал перекрытий
Ж/б плиты
Материал кровли
Металлочерепица
Раздельных санузлов
2
Об участке
Площадь участка
10.21 сот.
Статус участка
Индивидуальное жилищное строительство
Электричество
Есть
Газ
Есть
Водоснабжение
Есть
Канализация
Есть
Без благоустройства участка
Есть
Подъезд к участку
Щебенка
Расположение
Россия, городской округ Владимир, деревня Злобино, Лесная улица
Ипотечный калькулятор
Заполните 1 анкету — получите предложения от десятков банков на специальных условиях
Программа ипотеки
Стоимость жилья, ₽
Первый взнос, ₽
Срок кредита
от 5.75%
Ставка
от 49 458 ₽
Платеж в месяц
Расчёт носит информационный характер и не является публичной офертой
Похожие объекты













































Дом, 126 м², 8,7 сот.













































Дом, 125 м², 8,0 сот.










































Дом, 143 м², 8,3 сот.
Предложите свою цену
7 861 500 ₽
54 976 ₽/м²









































