Купить дом в Владимирской области
Россия, Владимирская область, Судогодский муниципальный округ, деревня Бараки
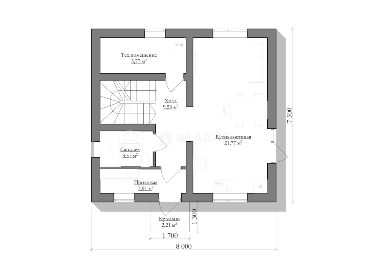
120 м²
Площадь дома
11.4 сот
Площадь участка
Блочный
Материал постройки
2
Этажей
Описание
Параметры:
-Монолитная утепленная фундаментная плита, гидроизоляция,
-Наружные и внутренние несущие стены, высота 1 и 2 этажа 2,7 м, высота мансардной стены 1,5 м,
-Межэтажное перекрытие ( утепление торцов плит, заделка швов),
-Антисептирование всех деревянных элементов биозащитой,
-Кровля металлочерепица,
-Двухкамерные стеклопакеты (3 стекла) Rehau, подоконники пластиковые, отливы металлические,
-Входная метеллическая дверь с зимним утеплением, производство Россия, 4 класс взломостойкости.
Данный объект возможно приобрести в ипотеку по льготным программам с участием материнского капитала.
О доме
Год постройки
2025
Этажей в доме
2
Общая площадь
120 м²
Жилая площадь
31.01 м²
Площадь кухни
21.77 м²
Площадь комнат
10,97+10,48+9,56 м²
Материал постройки
Блочный
Материал перекрытий
Ж/б плиты
Материал кровли
Металлочерепица
Высота потолков
2.7 м
Об участке
Площадь участка
11.4 сот.
Статус участка
Индивидуальное жилищное строительство
Электричество
Есть
Газ
Есть
Без благоустройства участка
Есть
Подъезд к участку
Грунтовка
Расположение
Россия, Владимирская область, Судогодский муниципальный округ, деревня Бараки
Ипотечный калькулятор
Заполните 1 анкету — получите предложения от десятков банков на специальных условиях
Программа ипотеки
Стоимость жилья, ₽
Первый взнос, ₽
Срок кредита
от 5.75%
Ставка
от 38 424 ₽
Платеж в месяц
Расчёт носит информационный характер и не является публичной офертой
Предложите свою цену
6 107 560 ₽
50 896 ₽/м²















































