Купить дом на улице Новая в Владимирской области
Россия, Владимирская область, Суздальский район, муниципальное образование Павловское, село Улово, Новая улица, 9
200 м²
Площадь дома
15 сот
Площадь участка
Кирпичный
Материал постройки
2
Этажей
Описание
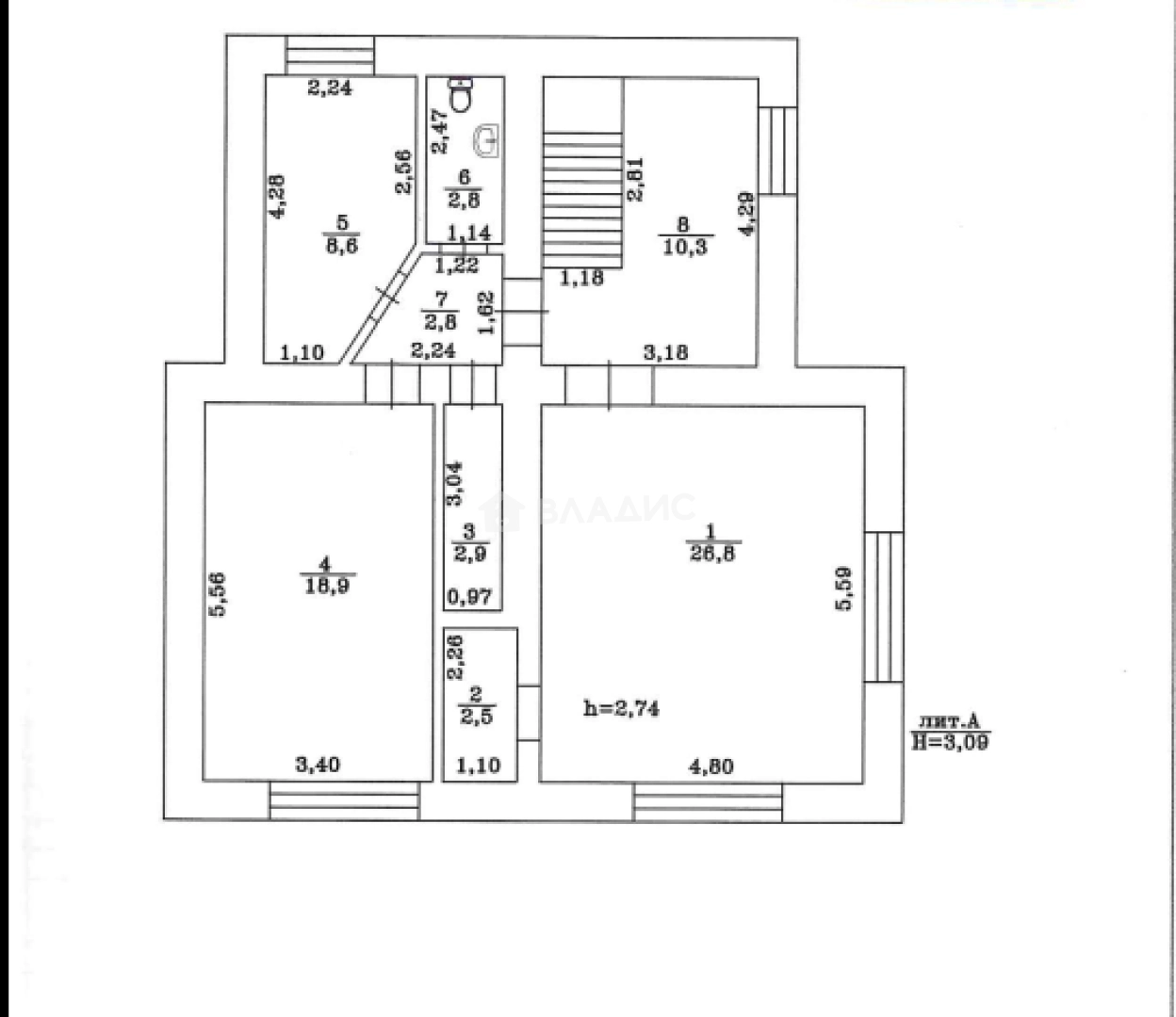
Этот двухэтажный дом общей площадью 200 кв. м построен в 1992 году и включает в себя четыре комнаты с жилой площадью 80,9 кв. м и просторную кухню площадью 19 кв. м. Высота потолков в 3 метра создаёт ощущение свободы и пространства. Дом оборудован всем необходимым для комфортного проживания: электричеством, водоснабжением из скважины, газом, канализацией и индивидуальным котлом для отопления.
На участке площадью 15 соток имеется гараж, что является дополнительным преимуществом для владельцев автомобилей. .
Дом подходит для круглогодичного проживания и станет прекрасным местом для семьи, ценящей комфорт и уют.
Звоните нам прямо сейчас, чтобы узнать больше и записаться на просмотр! Мы гарантируем безопасную сделку и юридическую поддержку нашим клиентам.
О доме
Год постройки
1992
Этажей в доме
2
Общая площадь
200 м²
Жилая площадь
80.9 м²
Площадь кухни
19 м²
Площадь комнат
26,6+26,8+18,9+8,6 м²
Материал постройки
Кирпичный
Материал перекрытий
Ж/б плиты
Материал кровли
Железо
Высота потолков
3 м
Об участке
Площадь участка
15 сот.
Статус участка
Личное подсобное хозяйство
Электричество
Есть
Газ
Есть
Водоснабжение
Есть
Канализация
Есть
Гараж
Есть
Расположение
Россия, Владимирская область, Суздальский район, муниципальное образование Павловское, село Улово, Новая улица, 9
Ипотечный калькулятор
Заполните 1 анкету — получите предложения от десятков банков на специальных условиях
Программа ипотеки
Стоимость жилья, ₽
Первый взнос, ₽
Срок кредита
от 5.75%
Ставка
от 47 813 ₽
Платеж в месяц
Расчёт носит информационный характер и не является публичной офертой
Предложите свою цену
7 600 000 ₽
38 000 ₽/м²




























