Купить дом на улице Большая Рахмановская в районе Октябрьский в Владимирской области
Россия, городской округ Владимир, деревня Уварово, Большая Рахмановская улица, 39
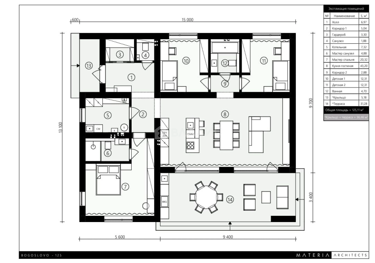
138.6 м²
Площадь дома
10.64 сот
Площадь участка
Блочный
Материал постройки
1
Этажей
Описание
Дом построен в 2025 году из блочного материала, имеет три комнаты (12,5 + 12,5 + 20 кв. м), просторную кухню площадью 43,2 кв. м и жилую площадь 45 кв. м. Участок площадью 10,64 соток находится в статусе индивидуального жилищного строительства, с удобным подъездом из щебёнки.
Коммуникации полностью подведены: электричество, водоснабжение из скважины, канализация, газ по границе участка .
Шикарная планировка !
Это отличное предложение для семей, желающих начать жизнь в своём доме с чистого листа. Участок и дом предлагаются без отделки, что даёт возможность новым владельцам воплотить свои дизайнерские идеи.
Звоните нам прямо сейчас, чтобы узнать больше и записаться на просмотр!
Мы гарантируем безопасную сделку и юридическую поддержку нашим Клиентам. Поможем одобрить ипотеку с сниженной ставкой.
О доме
Год постройки
2025
Этажей в доме
1
Общая площадь
138.6 м²
Жилая площадь
45 м²
Площадь кухни
43.2 м²
Площадь комнат
12,5+12,5+20 м²
Материал постройки
Блочный
Материал перекрытий
Ж/б плиты
Материал кровли
Металлочерепица
Раздельных санузлов
3
Об участке
Площадь участка
10.64 сот.
Статус участка
Индивидуальное жилищное строительство
Электричество
Есть
Газ
Есть
Водоснабжение
Есть
Канализация
Есть
Без благоустройства участка
Есть
Подъезд к участку
Щебенка
Расположение
Россия, городской округ Владимир, деревня Уварово, Большая Рахмановская улица, 39
Ипотечный калькулятор
Заполните 1 анкету — получите предложения от десятков банков на специальных условиях
Программа ипотеки
Стоимость жилья, ₽
Первый взнос, ₽
Срок кредита
от 5.75%
Ставка
от 65 428 ₽
Платеж в месяц
Расчёт носит информационный характер и не является публичной офертой
Предложите свою цену
10 400 000 ₽
75 036 ₽/м²
























































































