Купить дом в Владимирской области
Россия, Владимирская область, Суздальский район, муниципальное образование Боголюбовское, СНТ Суромна, 194
179.7 м²
Площадь дома
6 сот
Площадь участка
Блочный
Материал постройки
2
Этажей
Описание
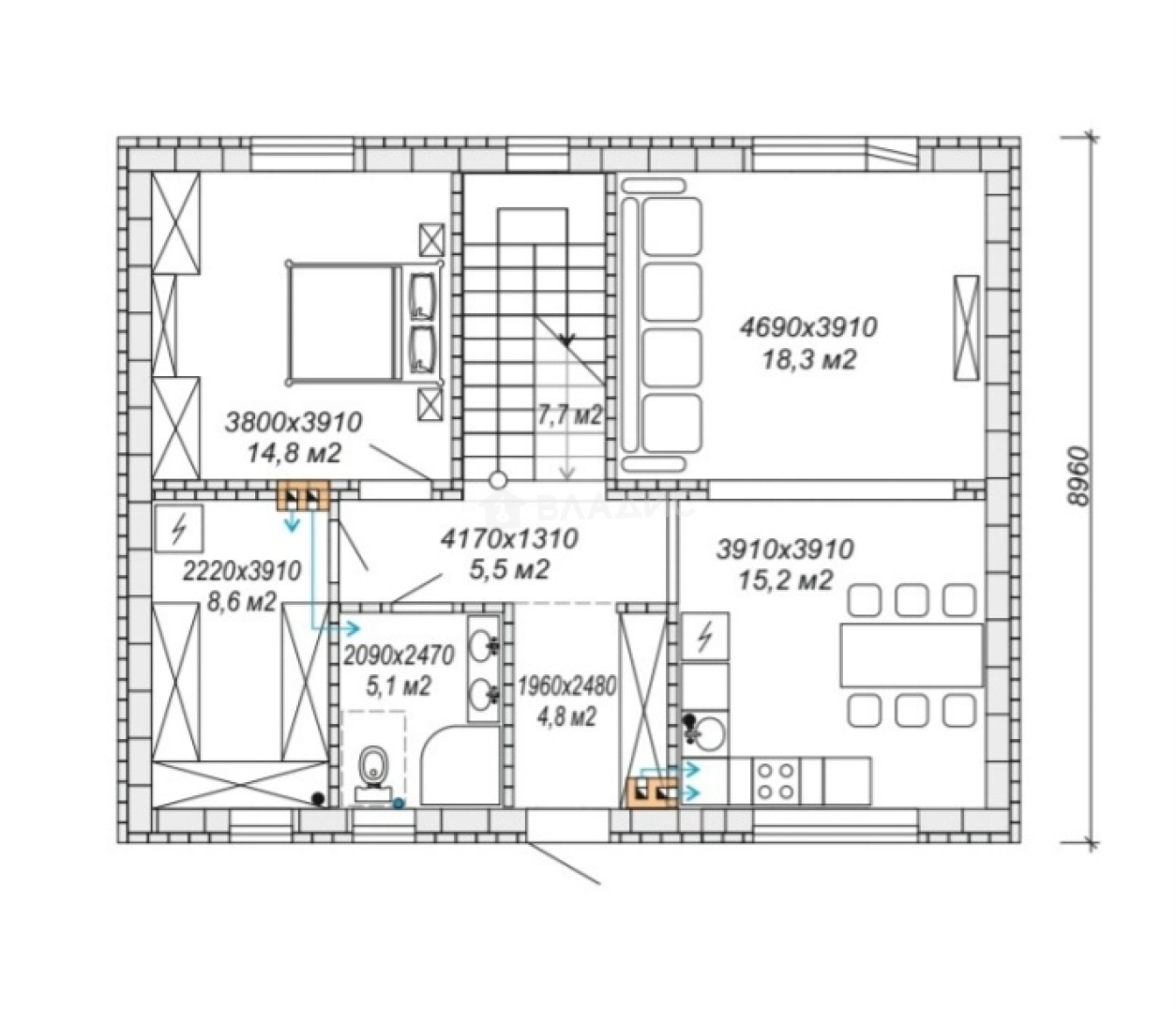
Продаётся уютный двухэтажный дом площадью 179,6 м² — гармоничное сочетание простора, комфорта и продуманной архитектуры, созданное специально для счастливой семейной жизни.
✨ Почему именно этот дом?
🔹 Простор и свобода
Свободная планировка позволяет воплотить любые дизайнерские идеи — от минимализма до уютного кантри. Каждая комната наполнена светом и воздухом, а общая площадь идеально подходит для семьи любого размера.
🔹 Надёжность на годы вперёд
Дом построен из качественных строительных блоков — проверенного материала, который обеспечивает стабильный микроклимат: тепло зимой, прохладно летом.
🔹 Ваш личный оазис на 6 сотках
Участок — не просто земля, а пространство для жизни:
— уютная зона отдыха с беседкой,
— детская площадка под открытым небом,
— или плодородный сад с ягодами и цветами — решать вам!
🔹 Близость к городу — без городской суеты
Всего несколько минут до цивилизации, но при этом — тишина, чистый воздух и живописные виды. Школы, магазины, поликлиники и транспорт — всё под рукой.
🔹 Полностью готов к жизни
✅ Газ и электричество подключены
✅ Современные коммуникации
✅ Никаких скрытых расходов — заезжайте и наслаждайтесь!
🔹 Живое, дружелюбное сообщество
Соседи уже заселились и создали тёплую, дружескую атмосферу. Здесь хочется жить круглый год!
---
💖 Это не просто дом — это ваше будущее в гармонии, уюте и стабильности.
Не упустите шанс создать свой идеальный уголок счастья!
📞 Свяжитесь с нами прямо сейчас, чтобы записаться на просмотр или задать любые вопросы.
Ваш дом мечты уже ждёт — осталось только открыть дверь! 🗝️
О доме
Год постройки
2024
Этажей в доме
2
Общая площадь
179.7 м²
Жилая площадь
100 м²
Площадь кухни
30 м²
Площадь комнат
100 м²
Материал постройки
Блочный
Материал перекрытий
Ж/б плиты
Материал кровли
Керамическая черепица
Раздельных санузлов
1
Об участке
Площадь участка
6 сот.
Статус участка
Садоводство
Электричество
Есть
Газ
Есть
Водоснабжение
Есть
Канализация
Есть
Без благоустройства участка
Есть
Подъезд к участку
Асфальт
Расположение
Россия, Владимирская область, Суздальский район, муниципальное образование Боголюбовское, СНТ Суромна, 194
Ипотечный калькулятор
Заполните 1 анкету — получите предложения от десятков банков на специальных условиях
Программа ипотеки
Стоимость жилья, ₽
Первый взнос, ₽
Срок кредита
от 5.75%
Ставка
от 57 249 ₽
Платеж в месяц
Расчёт носит информационный характер и не является публичной офертой
Предложите свою цену
9 100 000 ₽
50 640 ₽/м²



















































