Продается 3-комн. квартира, 88.12 м²
Россия, Владимирская область, Ковровский район, муниципальное образование Доброград, посёлок Доброград, улица Благополучия, 2к1
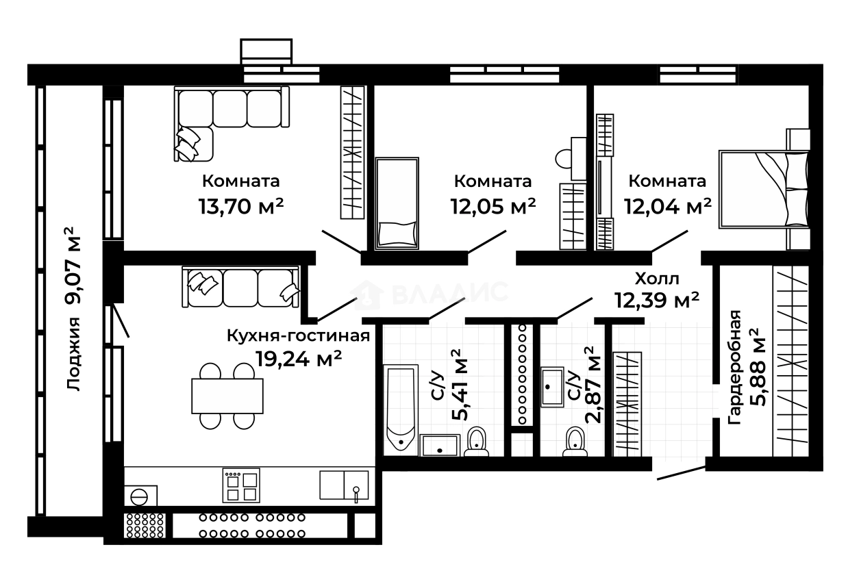
88.12 м²
Общая площадь
37.79 м²
Жилая площадь
19.24 м²
Площадь кухни
2 из 5
Этаж
Описание
Квартира сдается с отделкой в трех возможных вариантах: черновая, White box и чистовая с кухней и техникой.
Квартира с удобной планировкой, большой кухней-гостиной, гардеробной, лоджией с панорамным остеклением, с которых открывается отличный вид на центральную часть города.
Квартира с удобной планировкой, большой кухней-гостиной, гардеробной, лоджией с панорамным остеклением, с которых открывается отличный вид на центральную часть города.
Современная инженерная инфраструктура: водоснабжение, водоотведение, энергетика, газ, ІТ.
Разветвленная дорожная сеть и общественный транспорт.
Многофункциональные общественные пространства и безбарьерная городская среда.
Образование: в городе работает образовательный комплекс «МИР» (школа и детский сад).
Государственные школа и детский сад начнут работать в 2026 г.
Экология: архитектура города грамотно встраивается в окружающую среду, адаптируется, а не подстраивает природу под себя.
О квартире
Общая площадь
88.12 м²
Жилая площадь
37.79 м²
Площадь кухни
19.24 м²
Подъезд
1
Этаж
2
Окна выходят
На улицу
Ремонт
White box
О доме
Год постройки
2024
Этажность
5
Количество подъездов
1
Материал постройки
Монолитный
Материал перекрытий
Ж/б плиты
Отопление
Индивидуальный котел
Грузовых лифтов
1
Парковка
Наземная
Расположение
Россия, Владимирская область, Ковровский район, муниципальное образование Доброград, посёлок Доброград, улица Благополучия, 2к1
Ипотечный калькулятор
Заполните 1 анкету — получите предложения от десятков банков на специальных условиях
Программа ипотеки
Стоимость жилья, ₽
Первый взнос, ₽
Срок кредита
от 5.75%
Ставка
от 87 222 ₽
Платеж в месяц
Расчёт носит информационный характер и не является публичной офертой
Похожие объекты



3-комн. квартира, 88 м², 3/5 эт.




3-комн. квартира, 88,0 м², 2/5 эт.




3-комн. квартира, 89,1 м², 3/5 эт.




3-комн. квартира, 88,0 м², 1/5 эт.
Консультант по новостройкам
13 864 398 ₽
157 336 ₽/м²







