Купить таунхаус на улице Нерлинская в Владимирской области
Россия, Владимирская область, Суздальский район, муниципальное образование Боголюбовское, село Ославское, Нерлинская улица, 9
108 м²
Площадь дома
9.1 сот
Площадь участка
Блочный
Материал постройки
2
Этажей
Описание
Половина двухэтажного таунхауса 108 кв.м с ремонтом под ключ, дом уже готов к проживанию.
с. Ославское( рядом с.Новое, Боголюбово, Суромна), ул. Нерлинская.
Дом в живописном экологически чистом месте, рядом с береговой линией р. Нерль, в 10 км. от города Владимир. Район с развитой инфраструктурой, до остановки общественного транспорта 150 м маршрут №152, 150, школа и детский сад в с.Новое (1 км).
Дом с отделкой и работающими коммуникациями, готов для проживания.
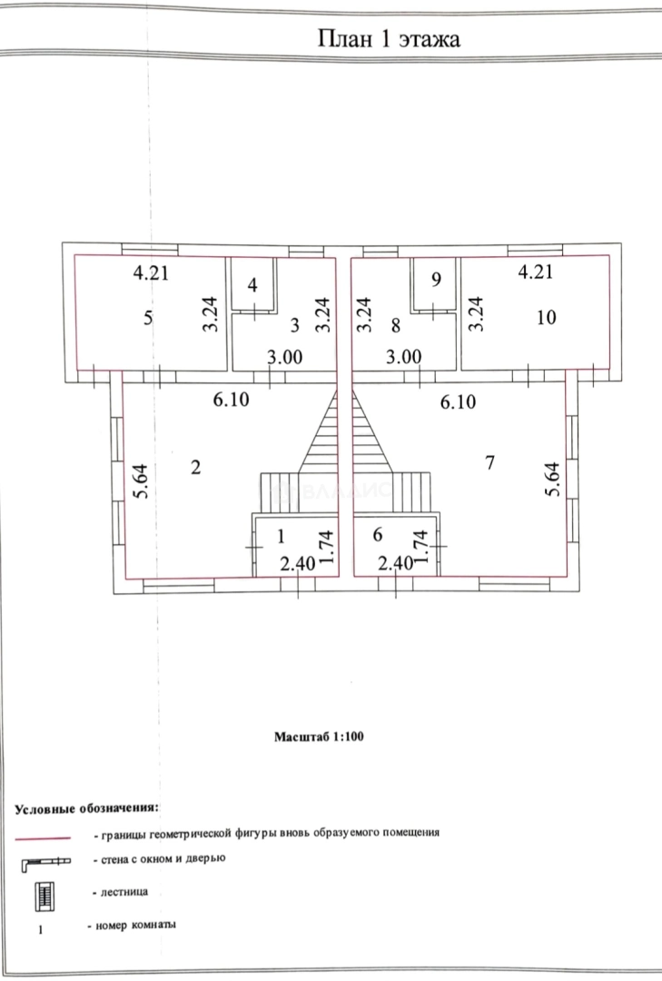
В доме на первом этаже - 1 большая гостиная комната, просторная кухня, коридор, сан.узел с ванной
На втором этаже - 2 комнаты, есть возможность сделать гардеробную комнату, сан.узел, коридор, планировка одинаковая в двух половинках дома.
В доме, есть все работающие коммуникации - газовый котел, канализация, вода из своего колодца, электричество, теплые полы и радиаторы отопления под окнами.
Участок 4,6 соток огорожен забором.
Дом построен в 2023 году, материал постройки — газобаллонный, перекрытия выполнены из железобетонных плит. Кровля сделана из металлочерепицы. Наружная штукатурка - короед.
Общая площадь таунхауса составляет 217 кв. м, две половины по 108 кв.м у каждой свой отдельный вход. Можно купить дом целиком на две семьи. Подъезд к участку осуществляется по грунтовке. Коммуникации проведены: газ, вода, канализация.
Если вы ищите большую квартиру и хотите, что бы ваши родители или дети жили рядом с вами, то этот дом для вас, по цене трехкомнатной квартиры с ремонтом.
Не упустите шанс стать владельцем этого прекрасного дома!
О доме
Год постройки
2023
Этажей в доме
2
Общая площадь
108 м²
Жилая площадь
70.7 м²
Площадь кухни
14 м²
Площадь комнат
34+19,8+16,9 м²
Материал постройки
Блочный
Материал перекрытий
Ж/б плиты
Материал кровли
Металлочерепица
Высота потолков
3 м
Об участке
Площадь участка
9.1 сот.
Статус участка
Индивидуальное жилищное строительство
Электричество
Есть
Газ
Есть
Водоснабжение
Есть
Канализация
Есть
Без благоустройства участка
Есть
Подъезд к участку
Грунтовка
9 500 000 ₽
87 963 ₽/м²
















