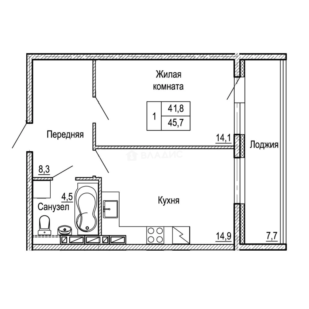
Продается 1-комн. квартира, 45.7 м²
Россия, Приморский край, Владивосток, жилой квартал На Черняховского
45.7 м²
Общая площадь
22 из 24
Этаж
Описание
Жилой комплекс расположен в самом сердце 71 микрорайона, в районе ул. Ладыгина. Комплекс сочетает в себе практичность и масштабность, состоит из двух отдельно стоящих домов с паркингом, кладовыми и коммерческими помещениями. Архитектурное решение и цветовая гамма наружной отделки позволяют органично вписаться в окружающий облик города. Проект предусматривает въезды на придомовую территорию с ул. Черняховского и Ладыгина, предлагая варианты выезда на городскую трассу. В непосредственной близости к жилому комплексу расположена автобусная остановка.
Район, в котором расположен ЖК, обжит давно. Здесь есть все, что может потребоваться: детские сады, поликлиника, аптеки, школы. Супермаркет «САМБЕРИ» и Торговый центр находятся в шаговой доступности от дома.
Жилой комплекс имеет закрытую территорию. Двор без машин позволяет создать единое пространство для отдыха, которое разделяется на несколько зон: детская, спортивная, площадки для отдыха взрослых. Детские площадки выполнены из современных экологических материалов.
Свободная планировка позволяет выполнить и согласовать иную планировку квартиры, воплотить самые креативные идеи дизайна квартиры.
О квартире
Общая площадь
45.7 м²
Подъезд
1
Этаж
22
Окна выходят
На улицу
О доме
Год постройки
2026
Этажность
24
Количество подъездов
1
Материал постройки
Кирпично-монолитный
Материал перекрытий
Монолитные
Отопление
Электрическое
Парковка
Подземная
Расположение
Россия, Приморский край, Владивосток, жилой квартал На Черняховского
Ипотечный калькулятор
Заполните 1 анкету — получите предложения от десятков банков на специальных условиях
Программа ипотеки
Стоимость жилья, ₽
Первый взнос, ₽
Срок кредита
от 5.75%
Ставка
от 46 602 ₽
Платеж в месяц
Расчёт носит информационный характер и не является публичной офертой
Похожие объекты











1-комн. квартира, 45,7 м², 20/24 эт.












1-комн. квартира, 45,7 м², 21/24 эт.












1-комн. квартира, 45,9 м², 11/24 эт.














1-комн. квартира, 45,7 м², 22/24 эт.
Консультант по новостройкам
7 407 554 ₽
162 091 ₽/м²












