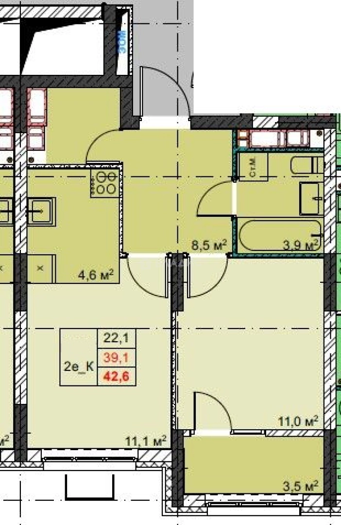
Продается 2-комн. квартира, 42.6 м²
Россия, Приморский край, Владивосток, Первореченский район, микрорайон Бам
42.6 м²
Общая площадь
22.1 м²
Жилая площадь
17 из 24
Этаж
Описание
Жилой комплекс располагается в удобном районе БАМ, в котором уже есть
все необходимое для комфортной жизни - развитая инфраструктура и отличная транспортная доступность.
Особое внимание уделено панорамным видам на Амурский залив. В ЖК
большой выбор форматов квартир: от просторных студий с двумя
окнами до евро-трехкомнатных с мастер-спальнями, а также новый формат
жизни в городе – квартиры с террасами.
Приватный двор-парк включает игровые площадки для маленьких жителей, спортивные площадки и зоны для отдыха и место для проведения ваших мероприятий.
Для автолюбителей оборудован тёплый подземный паркинг с
автомойкой. Круглосуточная охрана и видеонаблюдение.
В домах комплекса предусмотрены помещение для хранения колясок и
велосипедов, место для мойки лап домашних животных.
Сейчас премиальная отделка "White Box" – в подарок при покупке
квартиры. В эту отделку входит: остекление балконов, лоджий, оконных
проемов 5-камерной профильной системой с двухкамерным стеклопакетом,
установка радиаторов с терморегуляторами, полусухая стяжка пола,
установленные поквартирные водяные, тепловые и электросчетчики с
подключением системы "Телеметрия", разводка электрики с установкой
выключателей и розеток.
О квартире
Общая площадь
42.6 м²
Жилая площадь
22.1 м²
Этаж
17
Окна выходят
На улицу
О доме
Год постройки
2025
Этажность
24
Количество подъездов
1
Материал постройки
Монолитный
Материал перекрытий
Монолитные
Отопление
Центральное
Парковка
Подземная
Расположение
Россия, Приморский край, Владивосток, Первореченский район, микрорайон Бам
Ипотечный калькулятор
Заполните 1 анкету — получите предложения от десятков банков на специальных условиях
Программа ипотеки
Стоимость жилья, ₽
Первый взнос, ₽
Срок кредита
от 5.75%
Ставка
от 67 456 ₽
Платеж в месяц
Расчёт носит информационный характер и не является публичной офертой
Похожие объекты
















1-комн. квартира, 47,7 м², 20/27 эт.














1-комн. квартира, 39,8 м², 12/27 эт.
Консультант по новостройкам
10 722 420 ₽
251 700 ₽/м²














































