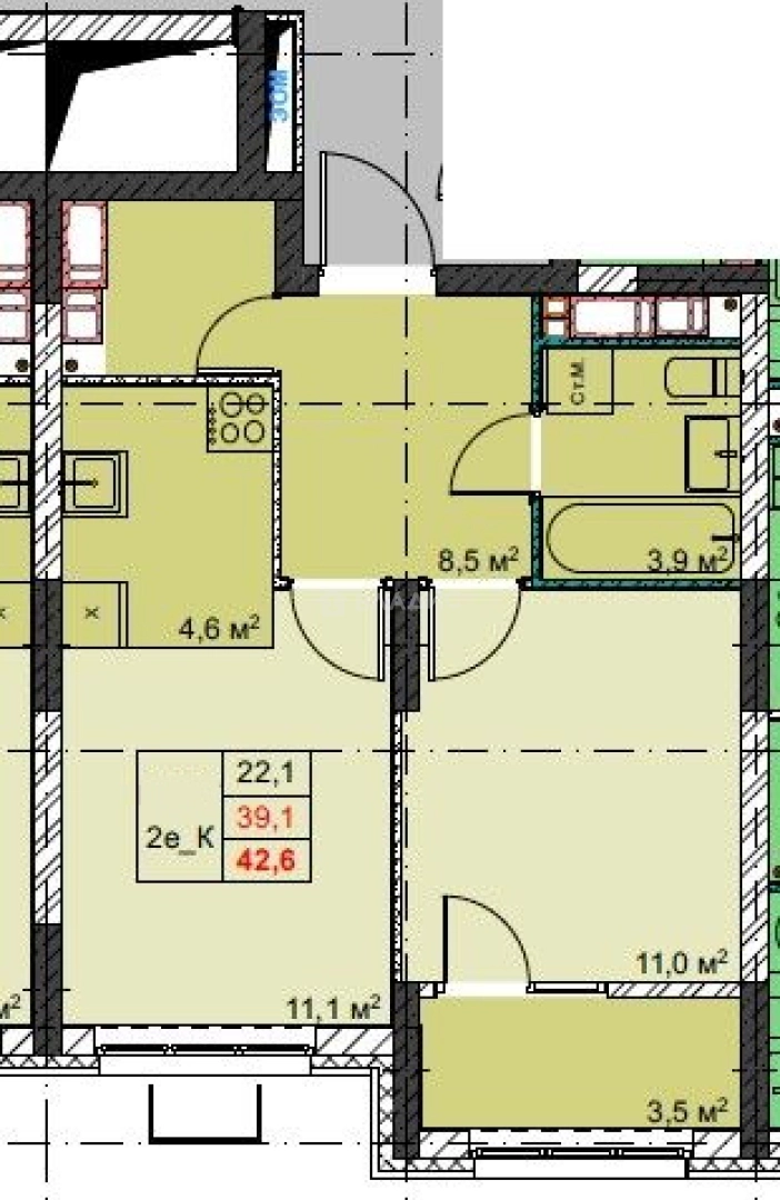
Продается 2-комн. квартира, 42.6 м²
Россия, Приморский край, Владивосток, Первореченский район, микрорайон Бам
42.6 м²
Общая площадь
22.1 м²
Жилая площадь
24 из 24
Этаж
Описание
Жилой комплекс располагается в удобном районе БАМ, в котором уже есть
все необходимое для комфортной жизни - развитая инфраструктура и отличная транспортная доступность.
Особое внимание уделено панорамным видам на Амурский залив. В ЖК
большой выбор форматов квартир: от просторных студий с двумя
окнами до евро-трехкомнатных с мастер-спальнями, а также новый формат
жизни в городе – квартиры с террасами.
Приватный двор-парк включает игровые площадки для маленьких жителей, спортивные площадки и зоны для отдыха и место для проведения ваших мероприятий.
Для автолюбителей оборудован тёплый подземный паркинг с
автомойкой. Круглосуточная охрана и видеонаблюдение.
В домах комплекса предусмотрены помещение для хранения колясок и
велосипедов, место для мойки лап домашних животных.
Сейчас премиальная отделка "White Box" – в подарок при покупке
квартиры. В эту отделку входит: остекление балконов, лоджий, оконных
проемов 5-камерной профильной системой с двухкамерным стеклопакетом,
установка радиаторов с терморегуляторами, полусухая стяжка пола,
установленные поквартирные водяные, тепловые и электросчетчики с
подключением системы "Телеметрия", разводка электрики с установкой
выключателей и розеток.
О квартире
Общая площадь
42.6 м²
Жилая площадь
22.1 м²
Этаж
24
Окна выходят
На улицу
О доме
Год постройки
2025
Этажность
24
Количество подъездов
1
Материал постройки
Монолитный
Материал перекрытий
Монолитные
Отопление
Центральное
Парковка
Подземная
Похожие объекты


2-комн. квартира, 45,0 м², 14/16 эт.


1-комн. квартира, 41,6 м², 14/16 эт.


1-комн. квартира, 41,6 м², 13/16 эт.


1-комн. квартира, 41,6 м², 12/16 эт.
11 233 620 ₽
263 700 ₽/м²



















